Commercial building/Office in Lachute

1,699,000 $ +GST/QST
Description
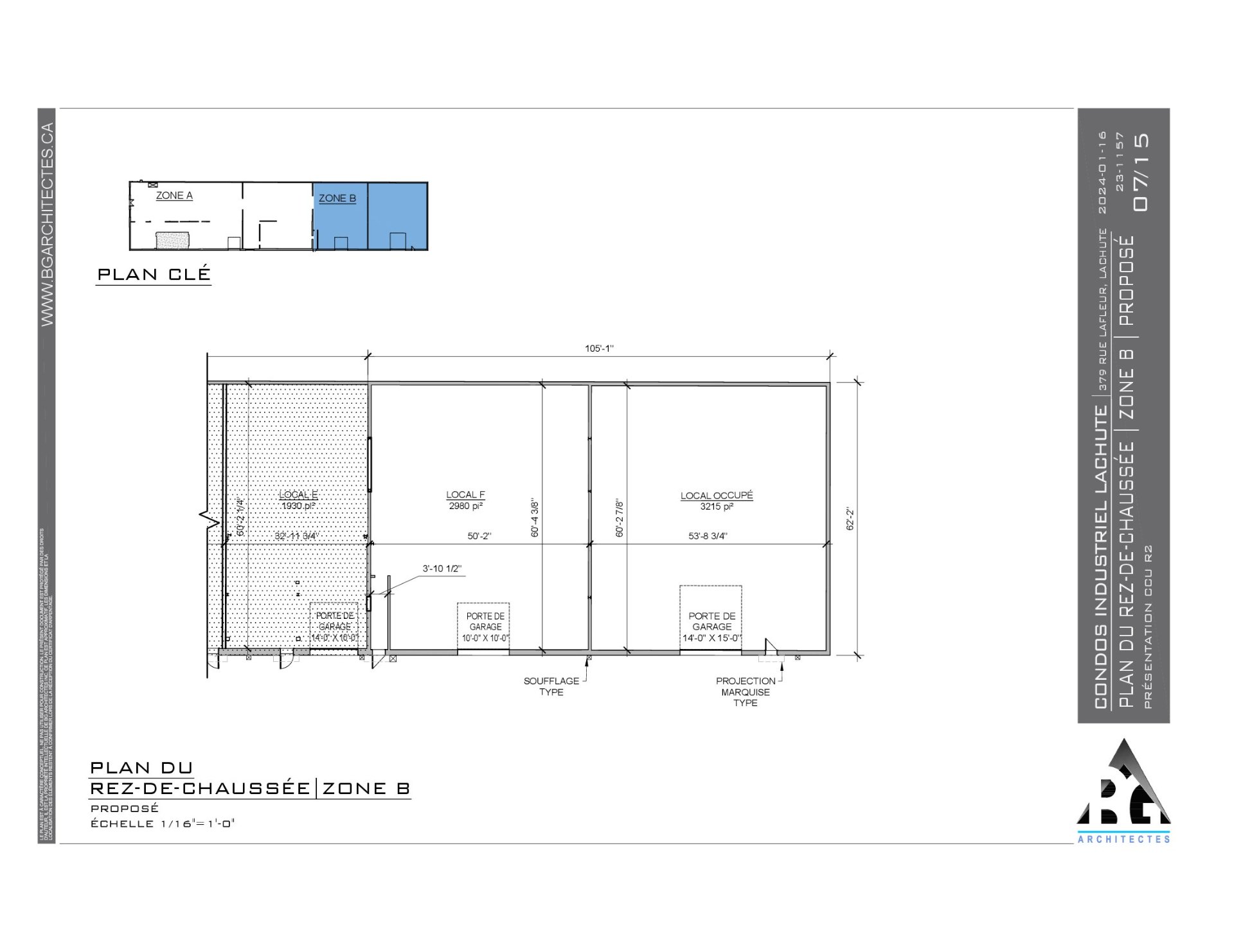
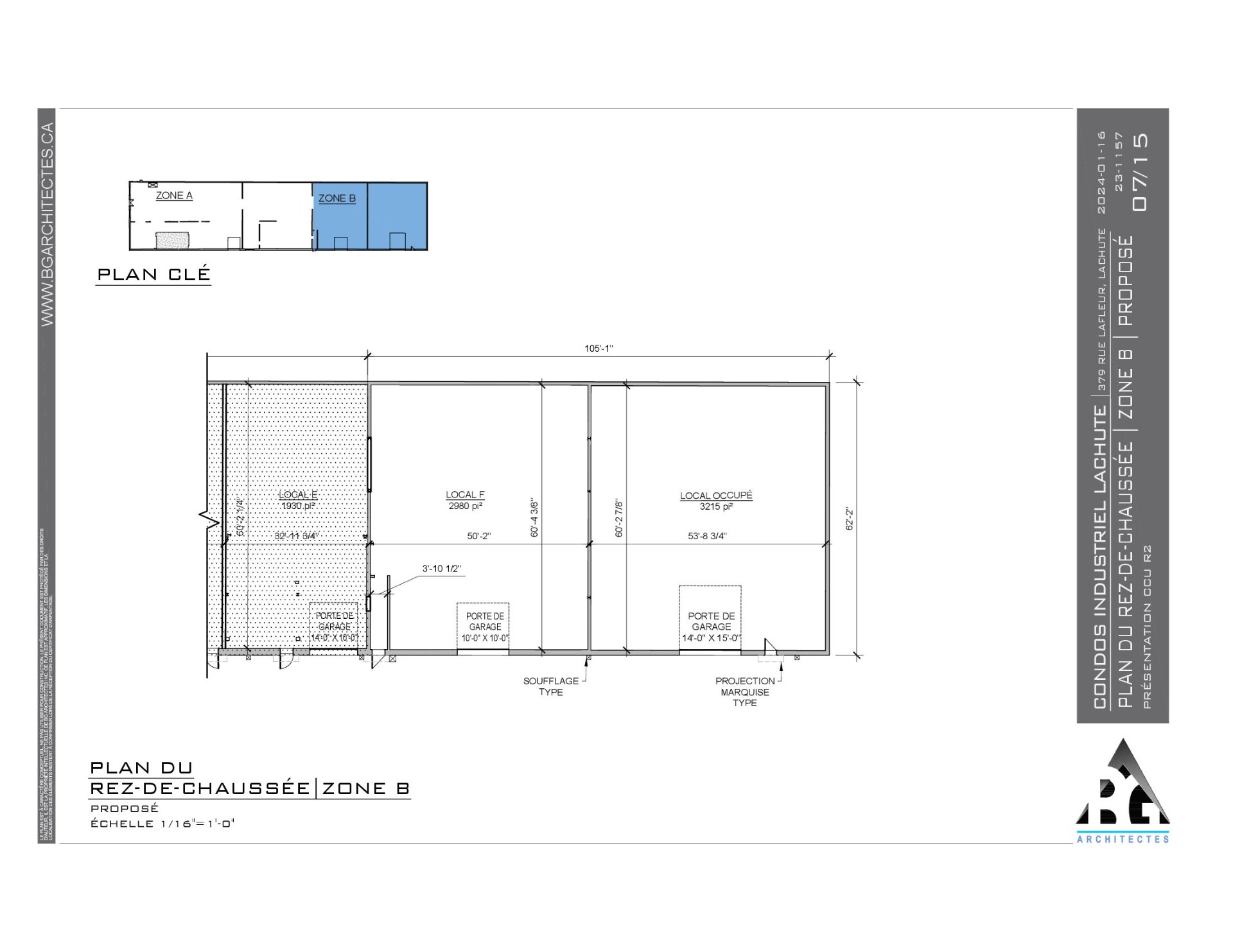
Located in the heart of Lachute, this commercial and industrial building offers strong repositioning potential. Strategic location with quick access to major highways. Flexible spaces ranging from ±1,800 to ±2,980 sq. ft. per unit, with the possibility to combine up to ±12,800 sq. ft. Clear height between 13 and 20 feet. Multiple renovation scenarios possible, including a mini-storage project (plans available). Ideal for an investor or entrepreneur seeking a value-add opportunity.
Highlights
Located in the heart of Lachute, this commercial and industrial building benefits from a strategic location with quick access to major roadways, facilitating logistics and ensuring strong accessibility for clients and operations.
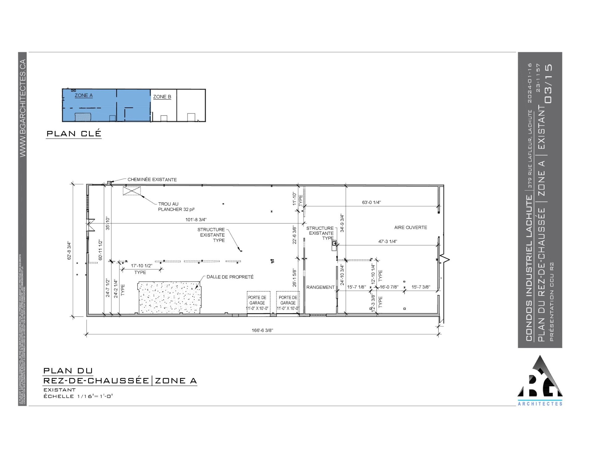
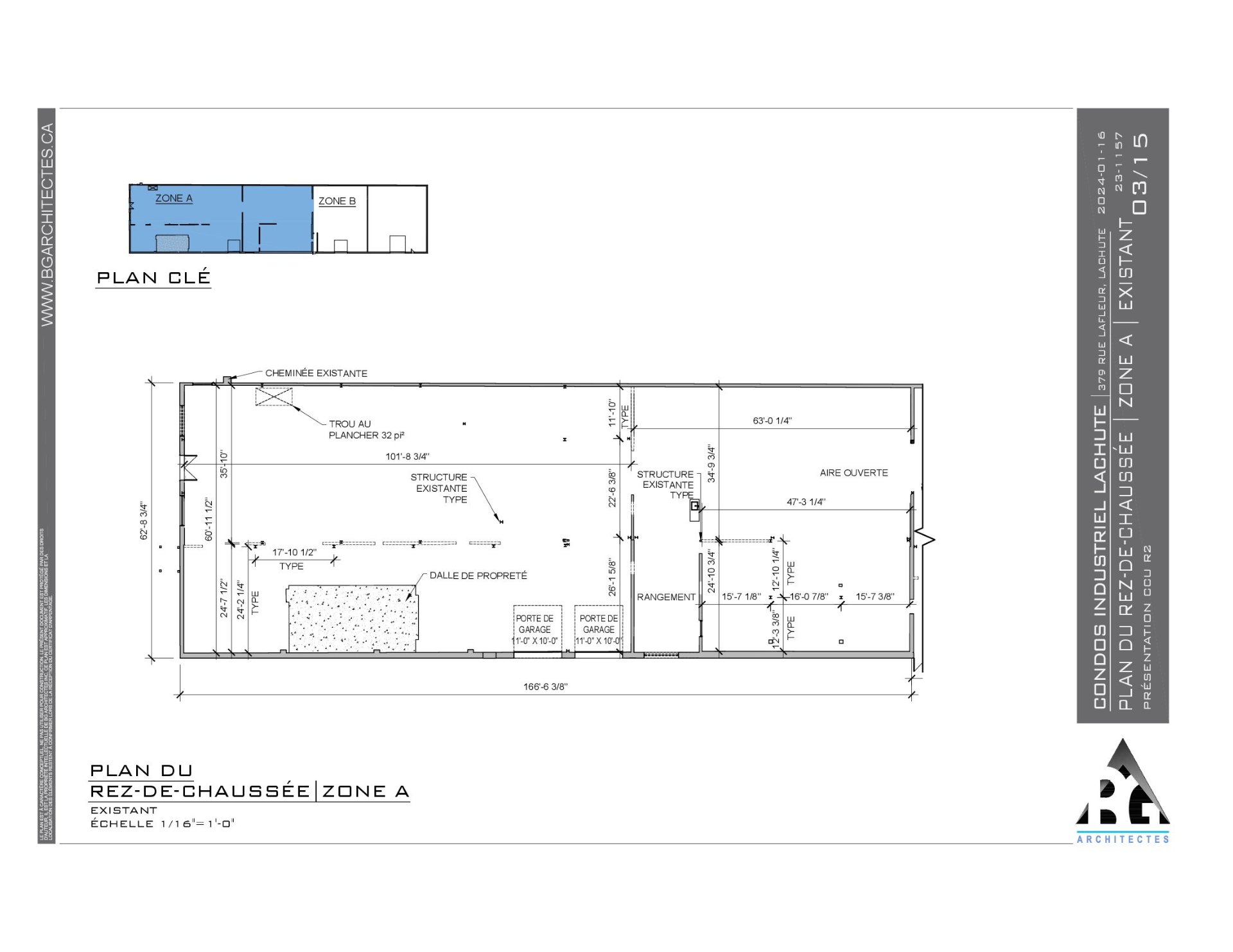
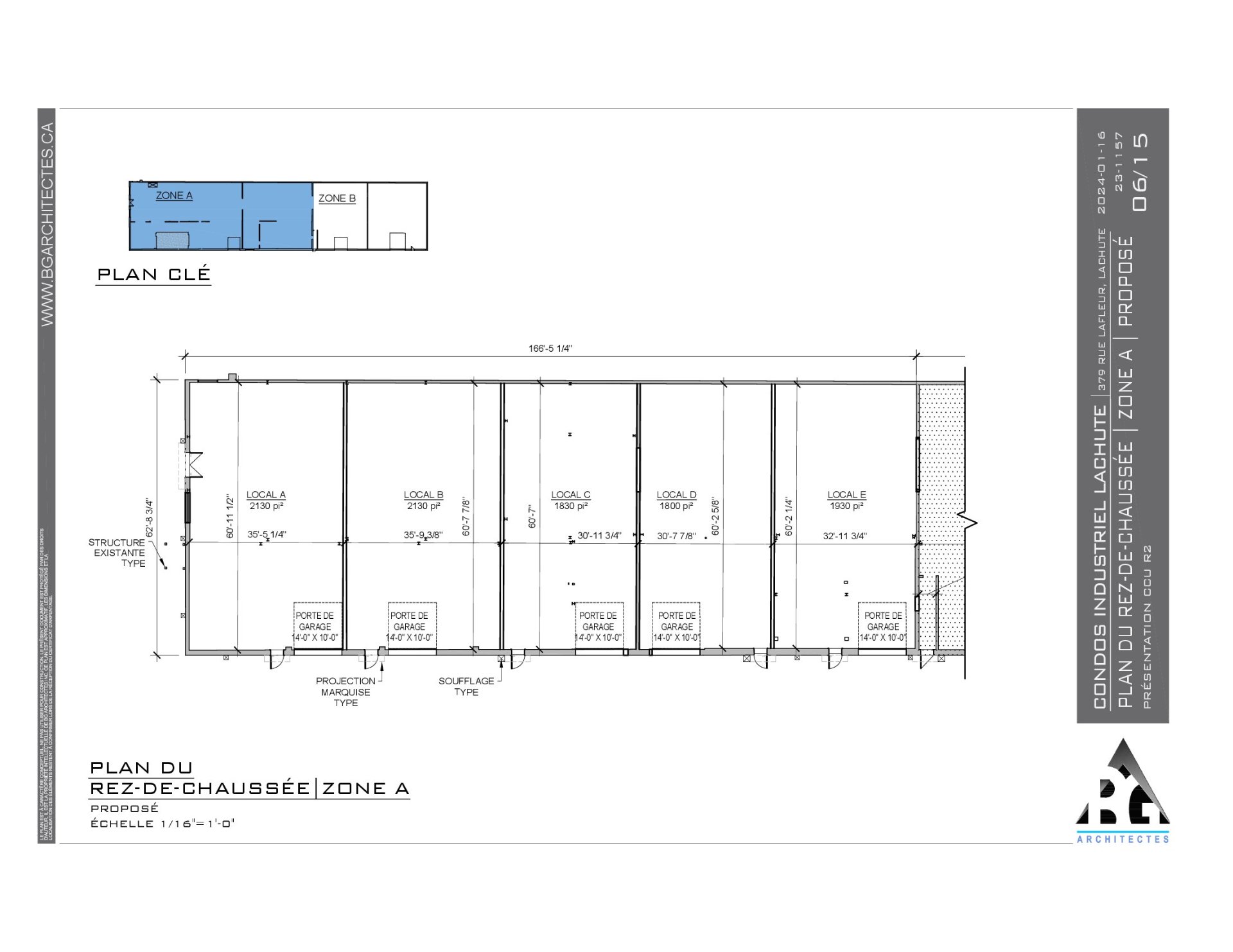
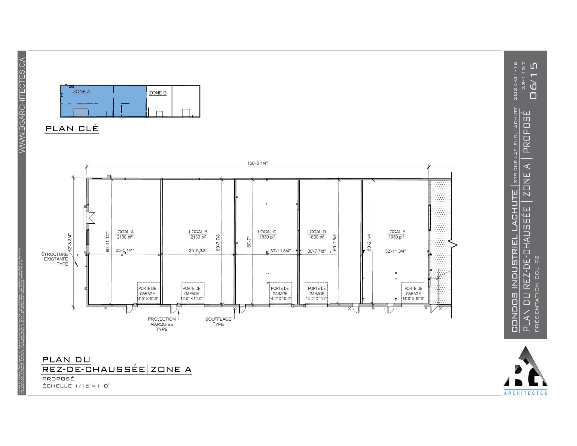
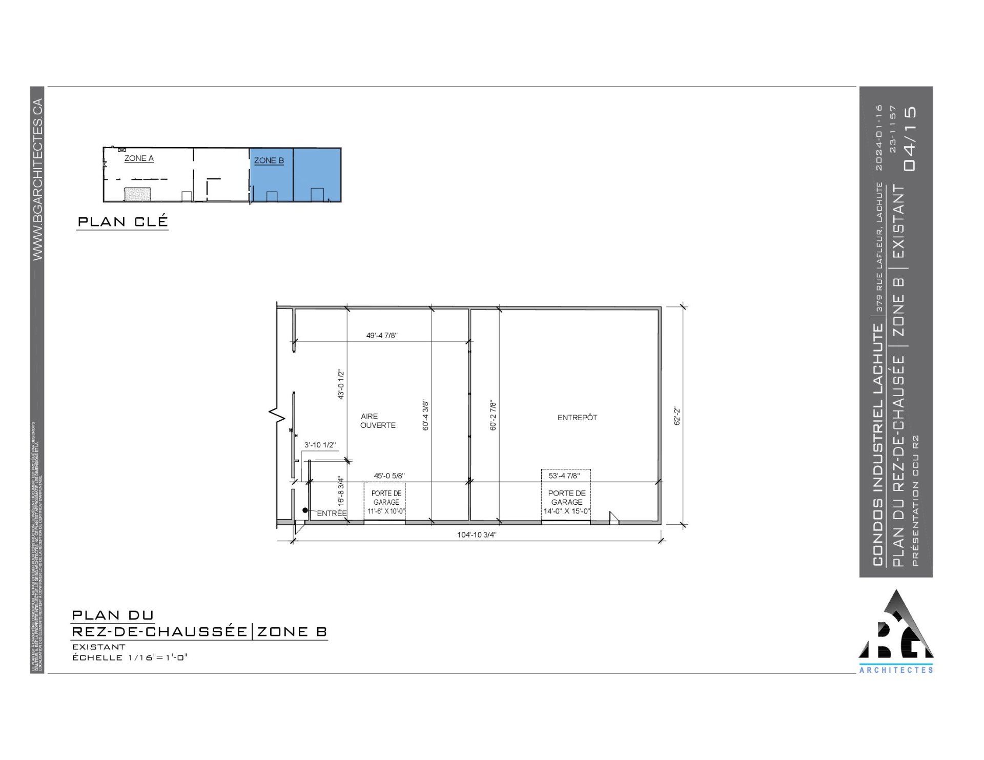
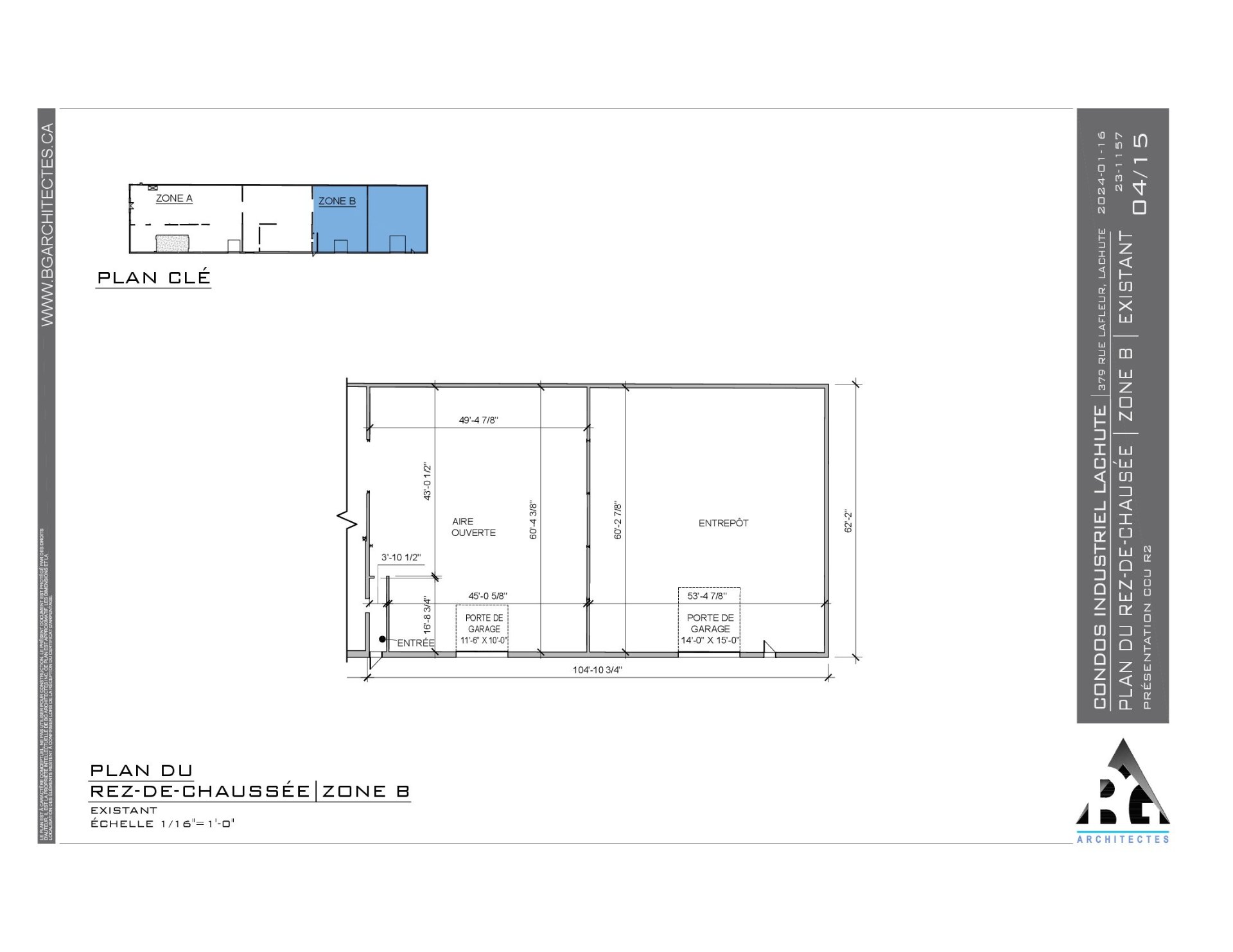
The property offers flexible and adaptable spaces ranging from approximately ±1,800 to ±2,980 sq. ft. per unit, with the possibility of combining multiple units for a total area of up to ±16,804 sq. ft. This configuration allows for a wide range of uses and can be tailored to the specific needs of an owner-occupant or investor.
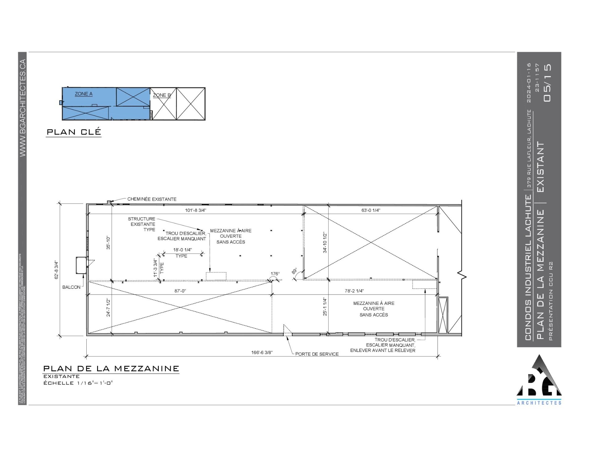
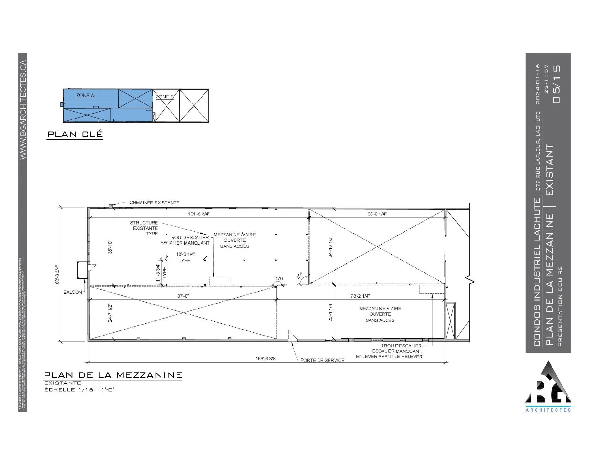
The building stands out for its generous size and clear ceiling height ranging between approximately 13 and 20 feet, making it suitable for various uses, including storage, light manufacturing, distribution, and commercial operations. Certain units also allow for efficient loading and delivery logistics.
The property represents a compelling repositioning and value-add opportunity. It offers the potential to be customized and optimized according to a clear vision, whether for an owner-occupant or an investor.
Several redevelopment scenarios are possible, including a conversion into mini-storage units, for which conceptual layout plans are available for review. These plans help illustrate the full potential of the building and various space optimization strategies.
The seller is open to collaborating with the buyer regarding potential improvements to the property, including renovations, roofing, parking, or other work, providing additional flexibility in the execution of the project.
A strategic opportunity for an investor or entrepreneur seeking a high-potential asset, or for an occupant looking to tailor a space to their operations within a growing area.
Life Style
Suggested properties
The more it is seen, the faster it is sold!
Activi-T
Views on the internet: 3,443
Visibili-T
Seen by over a million potential buyers every month, your property is displayed FREE of charge on over 100 websites across the country and around the world.
Suggested properties












