Bungalow in L'Assomption
43


649,900 $
3|
1
Description
Highlights
Year built
2010
Garage
Attached, Heated
Equipment available
Central vacuum cleaner system installation, Ventilation system, Electric garage door, Alarm system, Wall-mounted heat pump
Basement
6 feet and over, Finished basement
Siding
Brick, Vinyl
Roofing
Asphalt shingles
Zoning
Residential
Heating system
Space heating baseboards, Electric baseboard units
Garage
Attached, Heated
Hearth stove
Gaz fireplace
Sewage system
Municipal sewer
Parking (total)
Outdoor, Garage
Heating energy
Electricity, Propane
Water supply
Municipality
Driveway
Asphalt
Topography
Flat
Foundation
Poured concrete
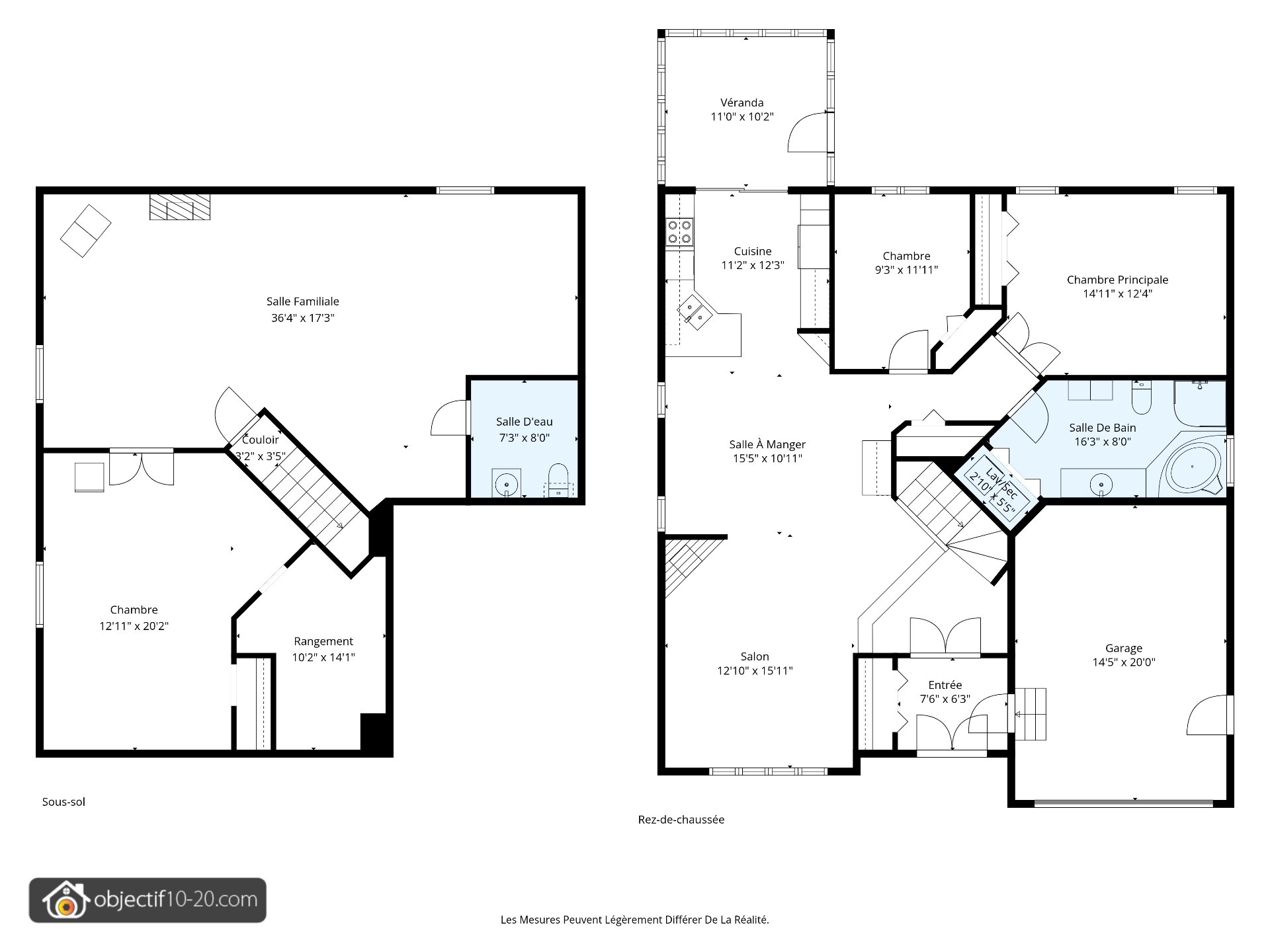
Hallway
1st level/Ground floor
7.10x5.10 P
Ceramic tiles
7.10x5.10 P
Ceramic tiles
Living room
1st level/Ground floor
15.6x12.9 P
Wood
15.6x12.9 P
Wood
Dining room
1st level/Ground floor
12.6x15.5 P
Wood
12.6x15.5 P
Wood
Kitchen
1st level/Ground floor
10.11x11 P
Wood
10.11x11 P
Wood
Primary bedroom
1st level/Ground floor
11.11x14.8 P
Wood
11.11x14.8 P
Wood
Bedroom
1st level/Ground floor
12x9.5 P
Wood
12x9.5 P
Wood
Bathroom
1st level/Ground floor
16.6x8.9 P
Ceramic tiles
16.6x8.9 P
Ceramic tiles
Family room
Basement
36.11x11.8 P
Floating floor
36.11x11.8 P
Floating floor
Bedroom
Basement
20.8x17.2 P
Floating floor
20.8x17.2 P
Floating floor
Washroom
Basement
7.9x7.4 P
Ceramic tiles
7.9x7.4 P
Ceramic tiles
Taxes
Municipal Taxes (2026)
4 554 $
School taxes (2025)
334 $
Total
4 888 $
Municipal evaluation(2026)
Land
183 400 $
Building
361 700 $
545 100 $
Life Style
Suggested properties
519,999 $
198, Rue Nelligan
Gatineau (Carrefour et Centre ville)
Bungalow
3|
1|
996 pc
№ Centris 9677029
1,149,900 $
2736, Rue de Bonaventure
Saint-Lazare (Maple/Héritage/Birdsdale/Cèdres)
Bungalow
5|
3
№ Centris 28265082
629,900 $
1930, Boul. des Seigneurs
Terrebonne (Saint-Louis/Hauteville)
Bungalow
3|
2
№ Centris 19922567
The more it is seen, the faster it is sold!
Activi-T
Views on the internet: 5,776
Visibili-T
Seen by over a million potential buyers every month, your property is displayed FREE of charge on over 100 websites across the country and around the world.
Suggested properties
519,999 $
198, Rue Nelligan
Gatineau (Carrefour et Centre ville)
Bungalow
3|
1|
996 pc
№ Centris 9677029
1,149,900 $
2736, Rue de Bonaventure
Saint-Lazare (Maple/Héritage/Birdsdale/Cèdres)
Bungalow
5|
3
№ Centris 28265082
629,900 $
1930, Boul. des Seigneurs
Terrebonne (Saint-Louis/Hauteville)
Bungalow
3|
2
№ Centris 19922567










































