Triplex in Montréal (Villeray/Saint-Michel/Parc-Extension)
10


1,150,000 $
3|
1|
357.0 mc
Description
Highlights
Year built
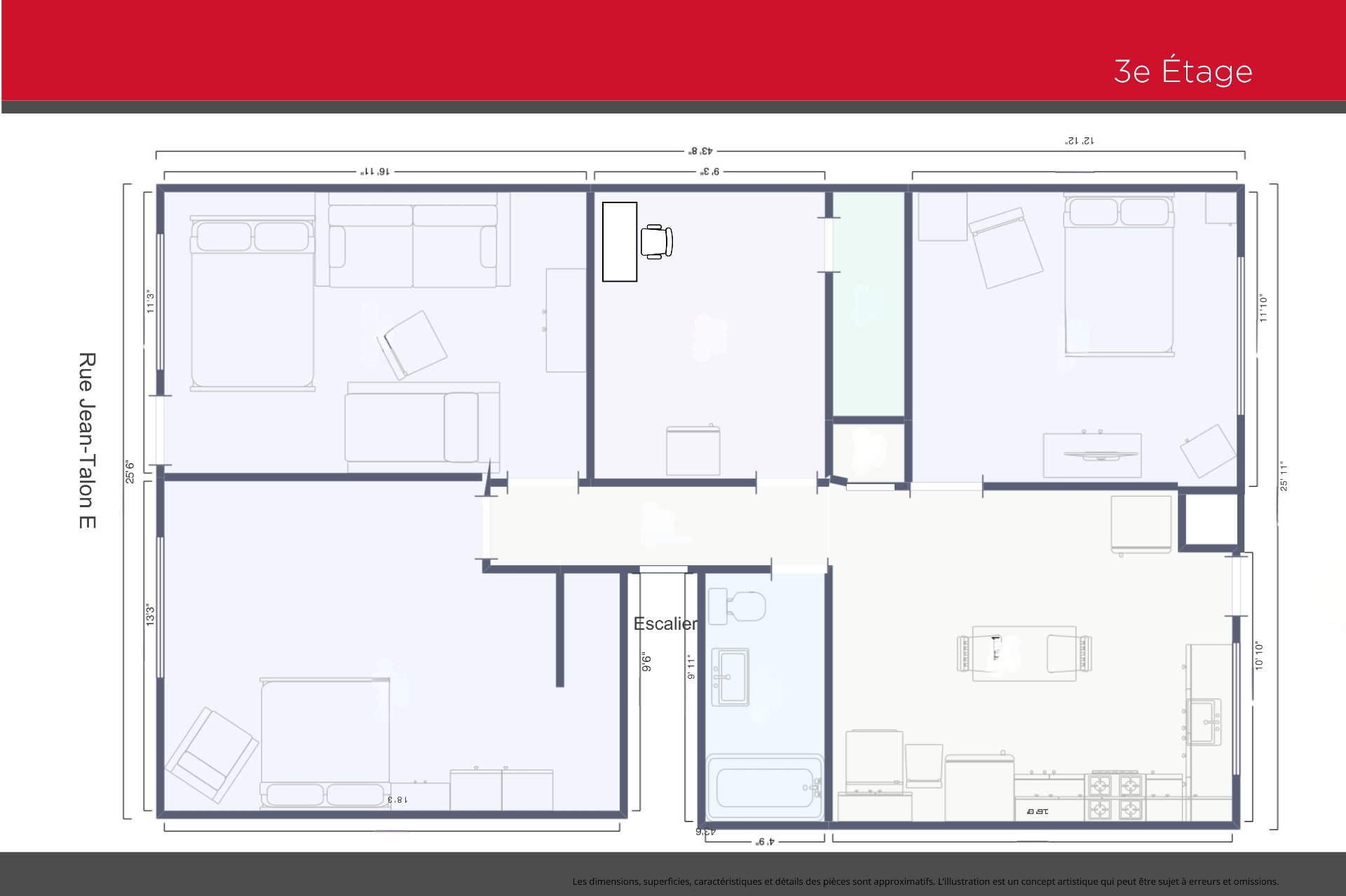
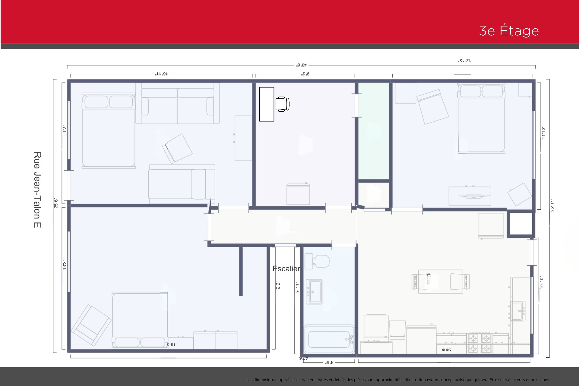
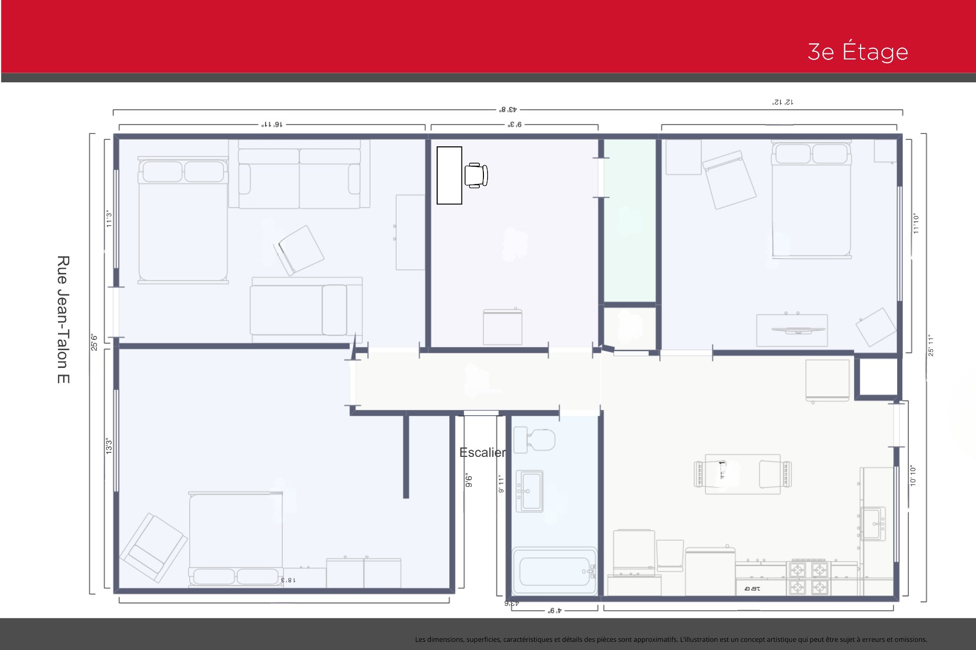
1963
Living area
357.0 mc
Potential gross revenue
106,800 $
Basement
6 feet and over, Finished basement
Roofing
Asphalt and gravel
Zoning
Commercial, Residential
Heating system
Air circulation, Electric baseboard units
Heating energy
Electricity
Water supply
Municipality
Foundation
Poured concrete
Sewage system
Municipal sewer
Taxes
Municipal Taxes (2025)
12 449 $
School taxes (2025)
716 $
Total
13 165 $
Municipal evaluation(2024)
Land
252 800 $
Building
779 100 $
1 031 900 $
Life Style
Suggested properties
The more it is seen, the faster it is sold!
Activi-T
Views on the internet: 20,860
Visibili-T
Seen by over a million potential buyers every month, your property is displayed FREE of charge on over 100 websites across the country and around the world.









