Split-level in Vaudreuil-Dorion

749,900 $
Description
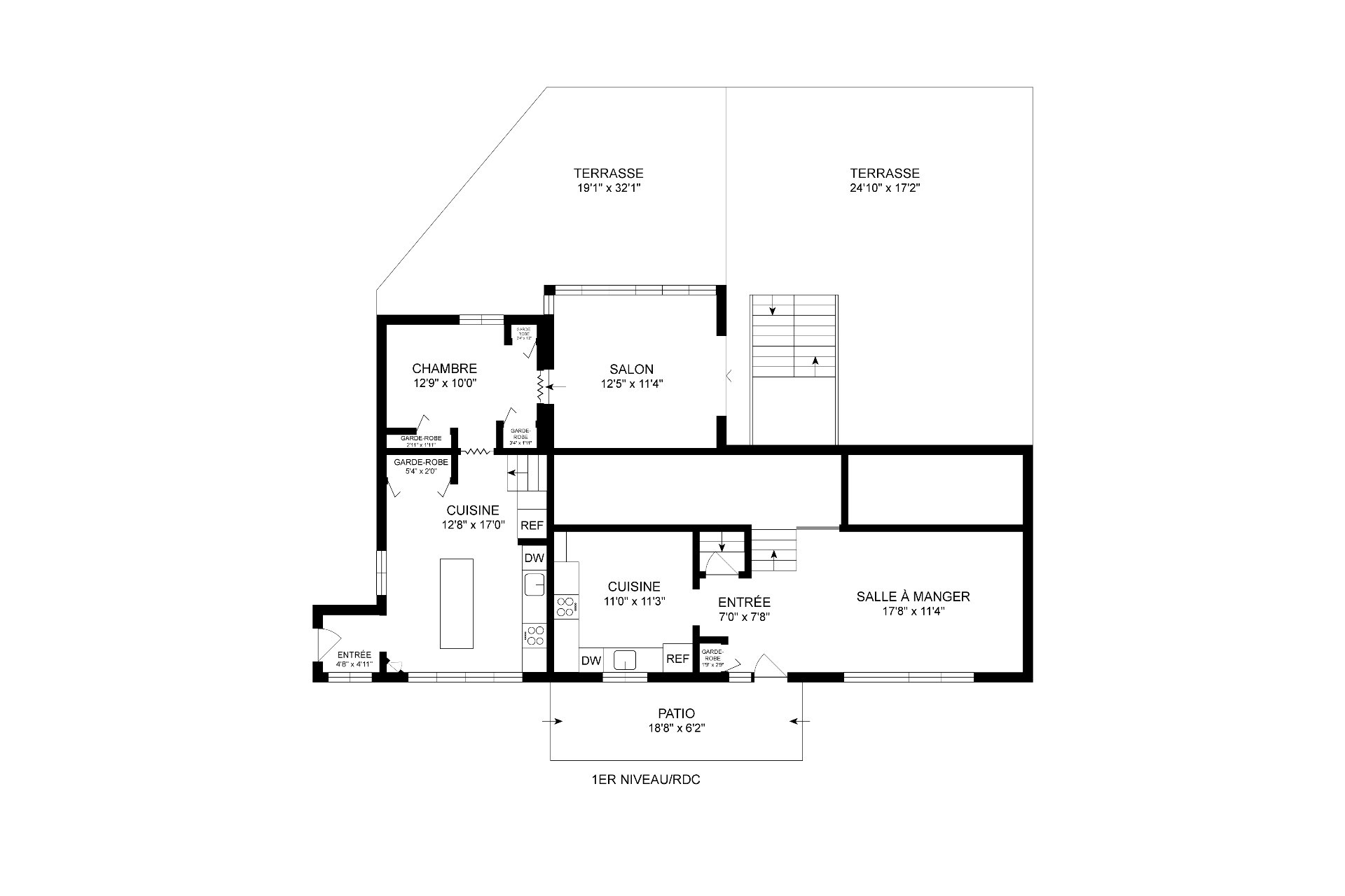
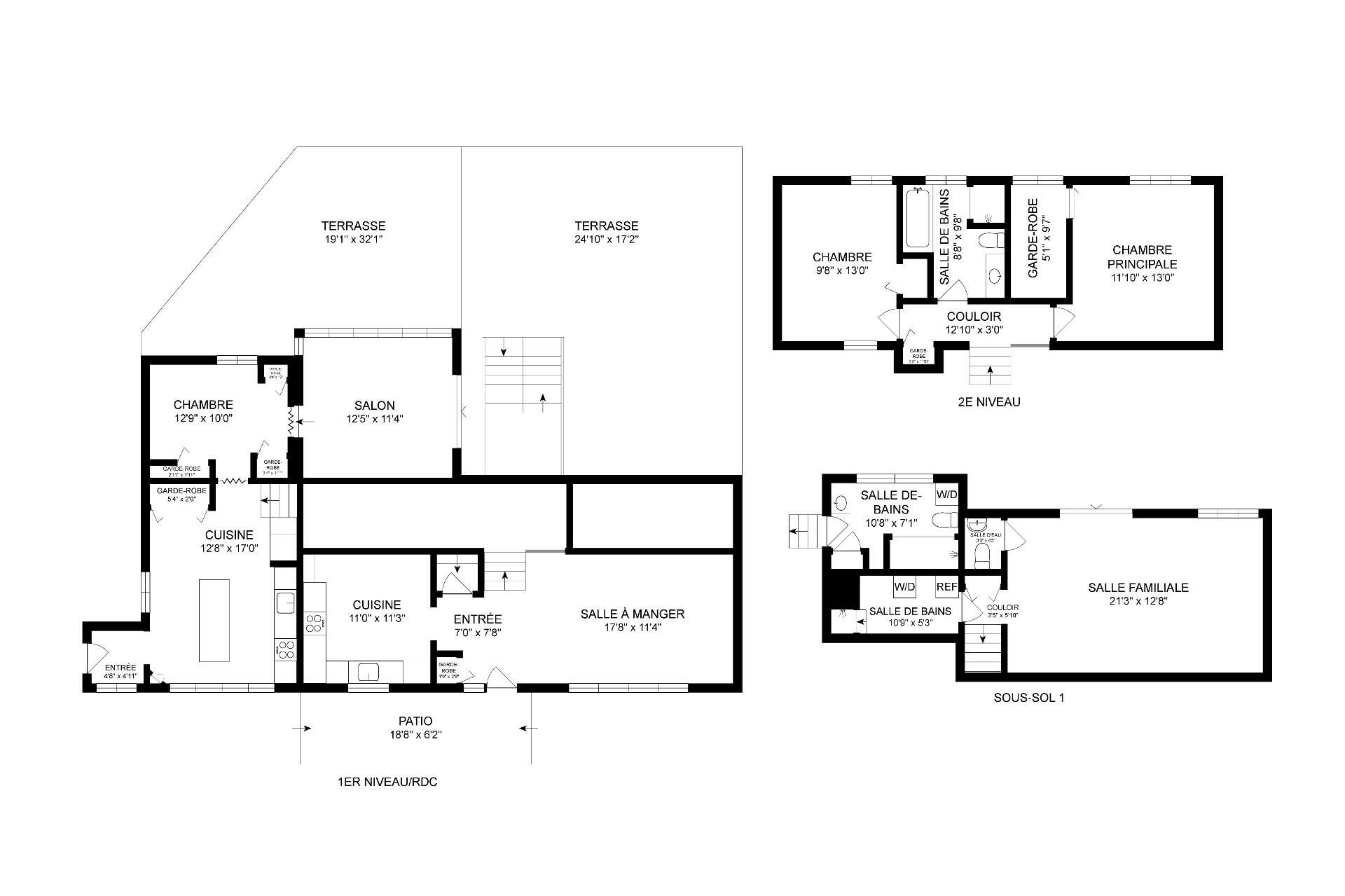
RARE OPPORTUNITY! Intergenerational house side by side with 2 addresses. The main dwelling at 399 is a 5 1/2 with 2 bedrooms, 1 bathroom, 1 powder room, an additional bedroom could be added in the basement. The second dwelling at 401 is a 3 1/2 fully furnished and equipped for rental (currently rented monthly). Each dwelling has its own patio door, terrace, parking spaces and wall-mounted heat pump. The house is located on a quiet crescent street close to the highways and all amenities. OPEN HOUSE SUNDAY THE 9TH!
Highlights
4.8x4.11 P
PVC
7x7.8 P
PVC
12.8x17 P
PVC
11x11.3 P
PVC
12.9x10 P
PVC
17.8x11.4 P
Wood
12.8x11.4 P
PVC
11.10x13 P
Wood
10.8x7.1 P
PVC
5.1x9.7 P
Wood
9.8x13 P
Wood
8.8x9.8 P
PVC
21.3x12.8 P
PVC
10.9x5.3 P
Ceramic tiles
3x4.5 P
PVC
32x11.4 P
Concrete
Inclusions at 401: 3 televisions, fridge, dishwasher, stove, washer/dryer, electric bed with mattress, 2 extra chairs, sofa bed, bedroom furniture, portable air conditioner, 4 island stools, 2 wooden benches, dishes, bedding, light fixtures, outdoor table with 6 chairs, umbrella, glass table.
RARE on the market: Intergenerational Home / Duplex - 2 separate addresses in Vaudreuil-Dorion (Parc Bélair) An investment or owner-occupant opportunity. Located at 399 Phaneuf Street, this building offers flexibility with its two side-by-side locations. Whether you wish to rent out one or both units, this property represents an attractive investment. The main unit at 399 includes two bedrooms, a large dining room, two bathrooms, and a bright, finished basement. Unit 401 is a fully furnished and equipped 3 1/2 (furniture, appliances, dishes, bedding, etc.). It is currently rented month-to-month and generates an income of $1,450 per month. Each unit has its own patio door, terrace, wall-mounted heat pump, and two parking spaces. For owner-occupants, this is a golden opportunity to reduce costs while living in a spacious property.Its layout is also perfect for a family looking for a bi-generational lifestyle thanks to the basement connection between the units. Each room in the building is beautiful and spacious, and the interiors feature neutral colors, ready to accommodate your personal style. Ideally located, you'll be close to all Vaudreuil-Dorion amenities and the highways. Many inclusions are possible since the owners will be downsizing for their retirement. This could include appliances, patio furniture, tools, and much more! It's important to note that the unit's inclusions represent an approximate value of $8,000 included in the sale price.
Financial Details - Example: $759,900 (Purchase Price) $75,990 (10% Down Payment) $683,910 (Mortgage) 4% - 25 years $3,610 (Monthly Payment) $1,450 (Home Income) $2,160 (Actual Homeowner Payment -- Equivalent to $410,000 Mortgage)
This is a must-see property to appreciate all its benefits!
Intergenerational house with 2 addresses but only one Hydro Québec meter. The city has confirmed to the sellers that both appartments can be rented.
The main apartment at 399 is occupied by the sellers. The second apartment at 401 is rented monthly for $1,550 per month, all-inclusive.
Life Style
Suggested properties
The more it is seen, the faster it is sold!
Activi-T
Views on the internet: 15,318
Visibili-T
Seen by over a million potential buyers every month, your property is displayed FREE of charge on over 100 websites across the country and around the world.
















































