Apartment in Mont-Saint-Hilaire
42


347,900 $
2|
1|
95.2 mc
Description
Highlights
Year built
2004
Living area
95.2 mc
Floor
Garden level
Condo fee
317 $ / month
Parking (total)
Outdoor
Equipment available
Détecteur monoxyde de carbone, Ventilation system, Wall-mounted heat pump
Roofing
Asphalt shingles
Zoning
Residential
Heating system
Electric baseboard units
View
Mountain
Hearth stove
Gaz fireplace
Sewage system
Municipal sewer
Bathroom / Washroom
Separate shower
Parking (total)
Outdoor
Heating energy
Electricity, Natural gas
Windows
PVC
Distinctive features
Street corner
Water supply
Municipality
Driveway
Asphalt
Window type
Crank handle
Available services
Fire detector
Topography
Flat
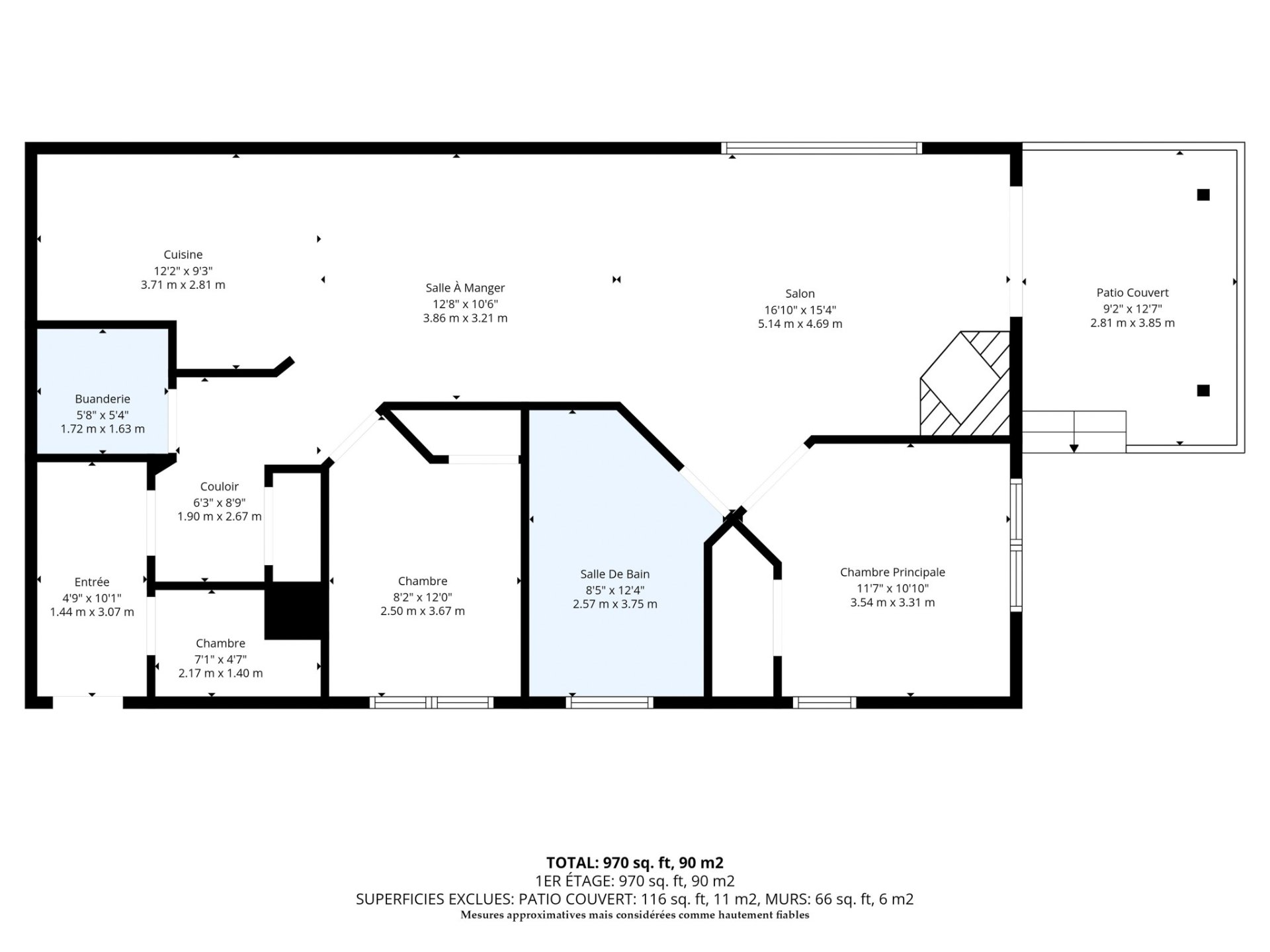
Hallway
Garden level
3.28x1.35 M
Ceramic tiles
3.28x1.35 M
Ceramic tiles
Storage
Garden level
1.91x1.68 M
Floating floor
1.91x1.68 M
Floating floor
Living room
Garden level
5.23x3.66 M
Floating floor
5.23x3.66 M
Floating floor
Dining room
Garden level
3.78x3.3 M
Floating floor
3.78x3.3 M
Floating floor
Kitchen
Garden level
3.99x2.87 M
Ceramic tiles
3.99x2.87 M
Ceramic tiles
Primary bedroom
Garden level
3.66x3.51 M
Floating floor
3.66x3.51 M
Floating floor
Bedroom
Garden level
3.76x2.62 M
Floating floor
3.76x2.62 M
Floating floor
Bathroom
Garden level
3.96x2.13 M
Ceramic tiles
3.96x2.13 M
Ceramic tiles
Laundry room
Garden level
1.65x1.52 M
Ceramic tiles
1.65x1.52 M
Ceramic tiles
Taxes
Municipal Taxes (2025)
2 272 $
School taxes (2025)
100 $
Total
2 372 $
Municipal evaluation(2025)
Land
1 $
Building
242 600 $
242 601 $
Life Style
Suggested properties
1,795 $ /M
46, 1re Rue E., 203
Rimouski (Saint-Pie X)
Apartment
2|
1|
1282 pc
№ Centris 17636265
285,000 $
5342, Rue du Bocage, 302
Terrebonne (Laurier/Chartrand)
Apartment
2|
1|
75.3 mc
№ Centris 28268675
2,400 $ /M
326, Rue Beaubien E.
Montréal (Little Italy)
Apartment
3|
1|
900 pc
№ Centris 18276564
1,300 $ /M
508, Rue Jacques-Cartier, 4
Salaberry-de-Valleyfield (Salaberry-de-Valleyfield)
Apartment
1|
1|
1000 pc
№ Centris 28924719
389,000 $
3970, Boul. Gareau
Longueuil (Street names (L-P+))
Apartment
2|
1|
1102 pc
№ Centris 19400545
The more it is seen, the faster it is sold!
Activi-T
Views on the internet: 10,416
Visibili-T
Seen by over a million potential buyers every month, your property is displayed FREE of charge on over 100 websites across the country and around the world.
Suggested properties
1,795 $ /M
46, 1re Rue E., 203
Rimouski (Saint-Pie X)
Apartment
2|
1|
1282 pc
№ Centris 17636265
285,000 $
5342, Rue du Bocage, 302
Terrebonne (Laurier/Chartrand)
Apartment
2|
1|
75.3 mc
№ Centris 28268675
2,400 $ /M
326, Rue Beaubien E.
Montréal (Little Italy)
Apartment
3|
1|
900 pc
№ Centris 18276564
1,300 $ /M
508, Rue Jacques-Cartier, 4
Salaberry-de-Valleyfield (Salaberry-de-Valleyfield)
Apartment
1|
1|
1000 pc
№ Centris 28924719
389,000 $
3970, Boul. Gareau
Longueuil (Street names (L-P+))
Apartment
2|
1|
1102 pc
№ Centris 19400545









































