Bungalow in Sainte-Sophie

325,000 $
Description
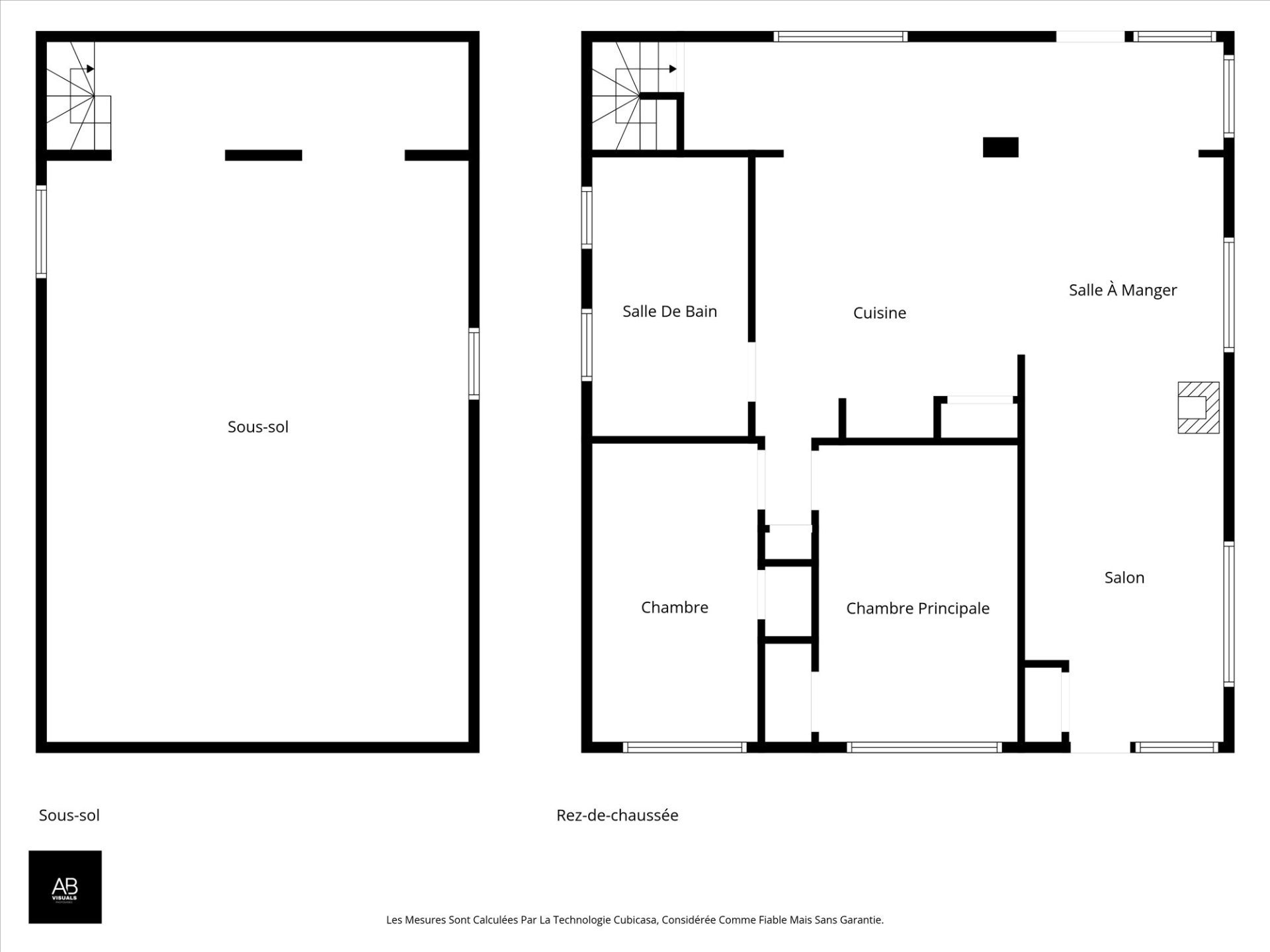
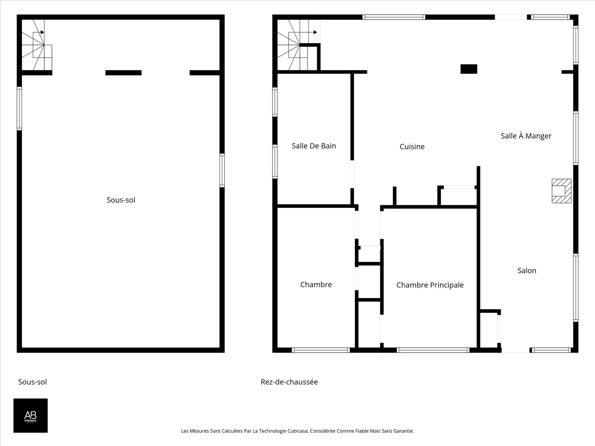
This home is an incredible opportunity for buyers, offering a large lot with direct access to a lake. Its cottage-style design creates a warm and inviting atmosphere, featuring a wood-burning fireplace and a new heat pump. The spacious kitchen, with a direct view of the lake, flows seamlessly into an open-concept living area that includes the dining room and living room. It's the perfect home for a couple or even a small family. The neighbors are wonderful, courteous, and very friendly. Located 6 min. from a grocery store, 15 min. from Highway 15, and 10 min. from a school, this property is close to amenities while retain its natural charm.
Highlights
28.9x9.6 P
Tiles
10.0x6.2 P
Tiles
13.0x14.0 P
Tiles
17.4x5.0 P
Tiles
8.0x13.7 P
Linoleum
10.0x15.0 P
Floating floor
9.0x15.2 P
Floating floor
33.0x20.5 P
Concrete
Located in the heart of Sainte-Sophie, this property offers a peaceful living environment where nature and comfort blend harmoniously. Set on a secluded 7,736-square-foot lot, it enjoys exclusive access to Lake Dion, providing a soothing view and a rejuvenating setting for everyday life.
As soon as you walk in, you'll be charmed by the bright and inviting open-concept living area. The spacious living room, featuring a wood-burning stove, creates a warm and inviting atmosphere. The dining room blends seamlessly into the space and opens onto a functional kitchen with a central island, offering a direct view of the lake--an undeniable asset for both daily life and entertaining.
The property features two spacious bedrooms and a well-appointed bathroom, making it ideal for a couple or a small family. A wall-mounted heat pump ensures optimal comfort year-round while also improving energy efficiency.
Outside, the landscaped lot, with no neighbors behind, guarantees privacy and tranquility. The neighborhood is known for being friendly and welcoming, adding to the area's quality of life.
Located just 6 minutes from a grocery store, 15 minutes from Highway 15, and about 10 minutes from an elementary school, this property offers easy access to essential amenities while maintaining a natural, welcoming, and peaceful setting.
A true haven of peace, perfect for those seeking comfort, warmth, and access to the water.
Improvements made:
2024: Replacement of the roof covering (asphalt shingles). 2023: Interior paint refreshed (living room, kitchen, dining room, and bedrooms). 2012: Addition of a rear beam to stabilize the foundation of the addition.
Life Style
Suggested properties
The more it is seen, the faster it is sold!
Activi-T
Views on the internet: 8,455
Visibili-T
Seen by over a million potential buyers every month, your property is displayed FREE of charge on over 100 websites across the country and around the world.

































