Triplex in Saint-Jérôme
49


650,000 $
2|
1
Description
Highlights
Year built
1969
Potential gross revenue
42,000 $
Equipment available
Wall-mounted heat pump
Roofing
Asphalt and gravel
Zoning
Residential
Heating system
Electric baseboard units
Sewage system
Municipal sewer
Parking (total)
Outdoor
Heating energy
Electricity
Windows
PVC
Water supply
Municipality
Driveway
Asphalt
Topography
Flat
Foundation
Poured concrete
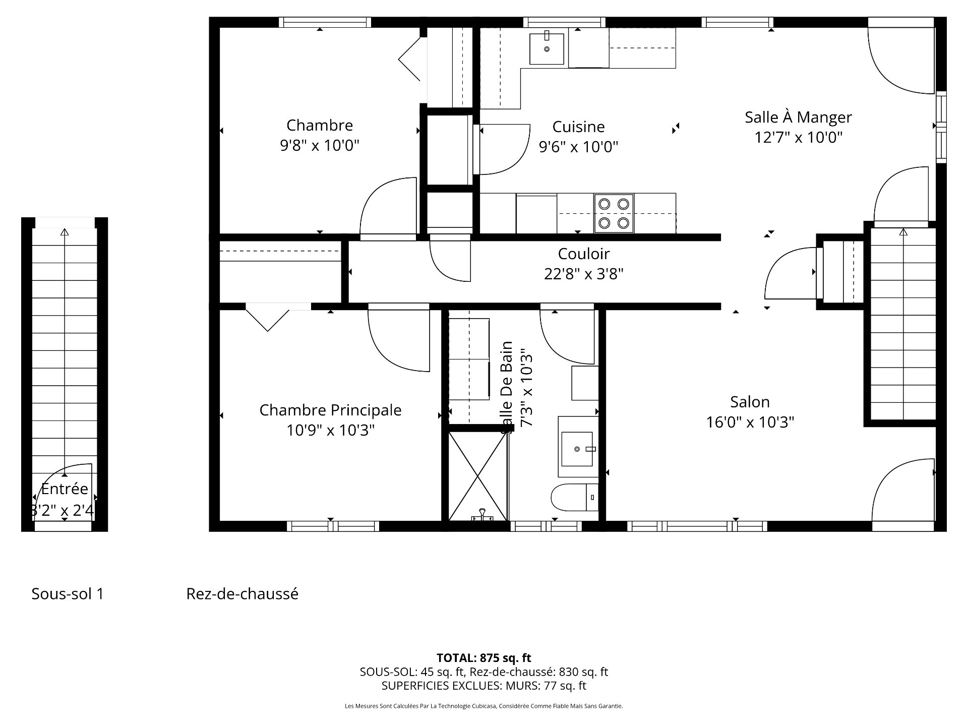
Living room
1st level/Ground floor
12.8x10.5 P
Floating floor
12.8x10.5 P
Floating floor
Living room
2nd floor
10.3x13.4 P
Floating floor
10.3x13.4 P
Floating floor
Hallway
Basement
3.9x3.6 P
Flexible floor coverings
3.9x3.6 P
Flexible floor coverings
Dining room
2nd floor
12.9x10.2 P
Floating floor
12.9x10.2 P
Floating floor
Living room
Basement
12.10x13.3 P
Flexible floor coverings
12.10x13.3 P
Flexible floor coverings
Dining room
1st level/Ground floor
12.1x10.1 P
Floating floor
12.1x10.1 P
Floating floor
Kitchen
2nd floor
9.8x10.2 P
Floating floor
9.8x10.2 P
Floating floor
Primary bedroom
Basement
11.0x11.3 P
Flexible floor coverings
11.0x11.3 P
Flexible floor coverings
Kitchen
1st level/Ground floor
10.0x10.1 P
Floating floor
10.0x10.1 P
Floating floor
Bathroom
1st level/Ground floor
6.11x10.5 P
Linoleum
6.11x10.5 P
Linoleum
Bedroom
Basement
10.4x9.9 P
Flexible floor coverings
10.4x9.9 P
Flexible floor coverings
Bathroom
2nd floor
7.0x10.3 P
Ceramic tiles
7.0x10.3 P
Ceramic tiles
Primary bedroom
1st level/Ground floor
10.5x10.4 P
Floating floor
10.5x10.4 P
Floating floor
Primary bedroom
2nd floor
10.3x10.3 P
Floating floor
10.3x10.3 P
Floating floor
Kitchen
Basement
13.4x9.5 P
Flexible floor coverings
13.4x9.5 P
Flexible floor coverings
Bedroom
1st level/Ground floor
9.6x10.4 P
Floating floor
9.6x10.4 P
Floating floor
Bedroom
2nd floor
10.3x9.9 P
Floating floor
10.3x9.9 P
Floating floor
Bathroom
Basement
9.11x6.10 P
Flexible floor coverings
9.11x6.10 P
Flexible floor coverings
Storage
Basement
9.11x15.9 P
contreplaqué
9.11x15.9 P
contreplaqué
Taxes
Municipal Taxes (2025)
4 115 $
School taxes (2025)
315 $
Total
4 430 $
Municipal evaluation(2026)
Land
162 400 $
Building
320 800 $
483 200 $
Life Style
Suggested properties
The more it is seen, the faster it is sold!
Activi-T
Views on the internet: 11,940
Visibili-T
Seen by over a million potential buyers every month, your property is displayed FREE of charge on over 100 websites across the country and around the world.
















































