Split-level in Saint-Jérôme

Description
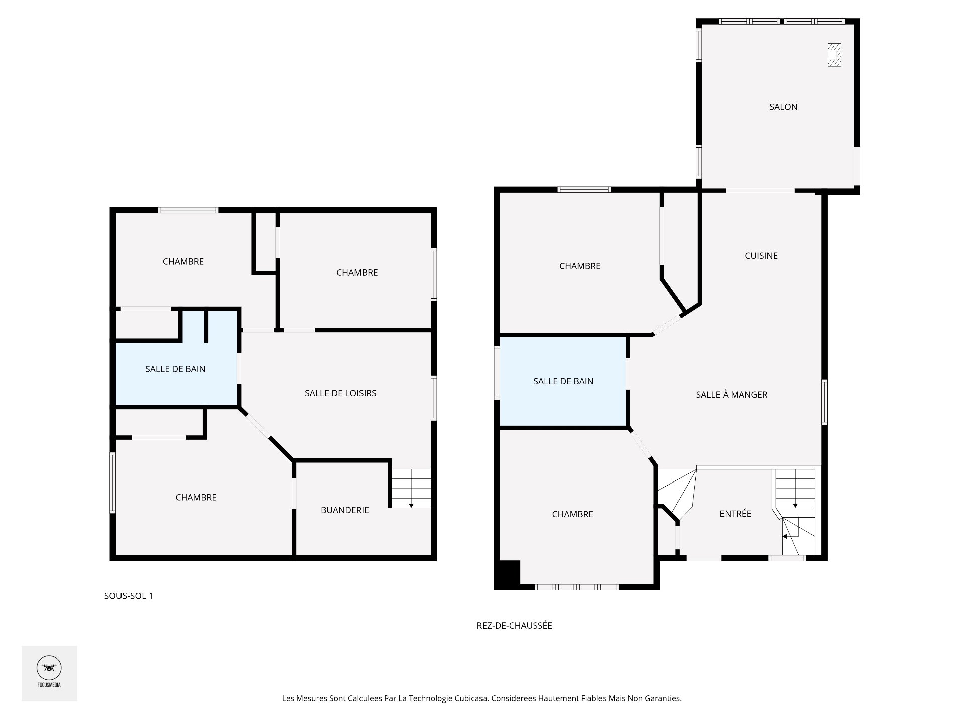
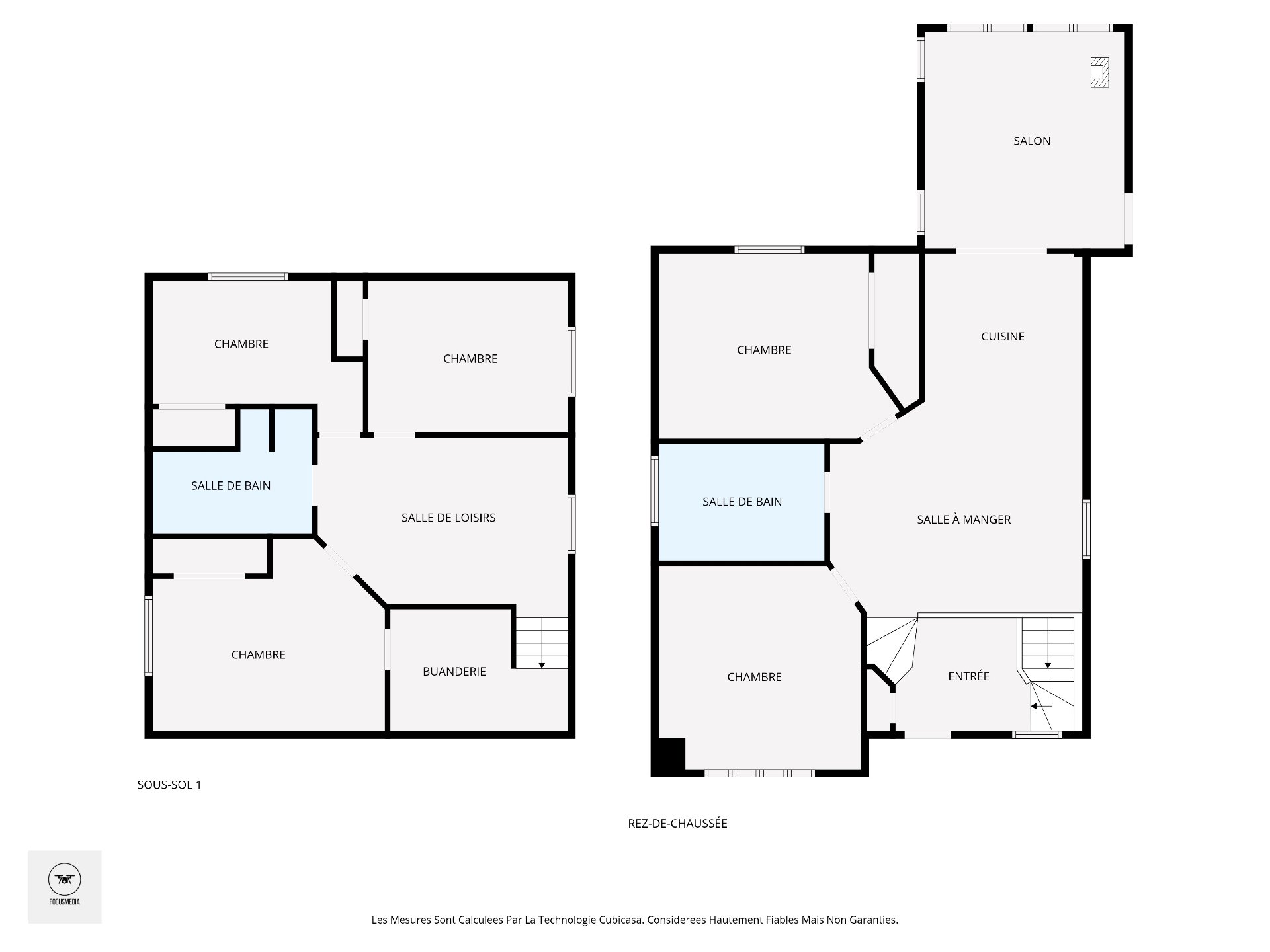
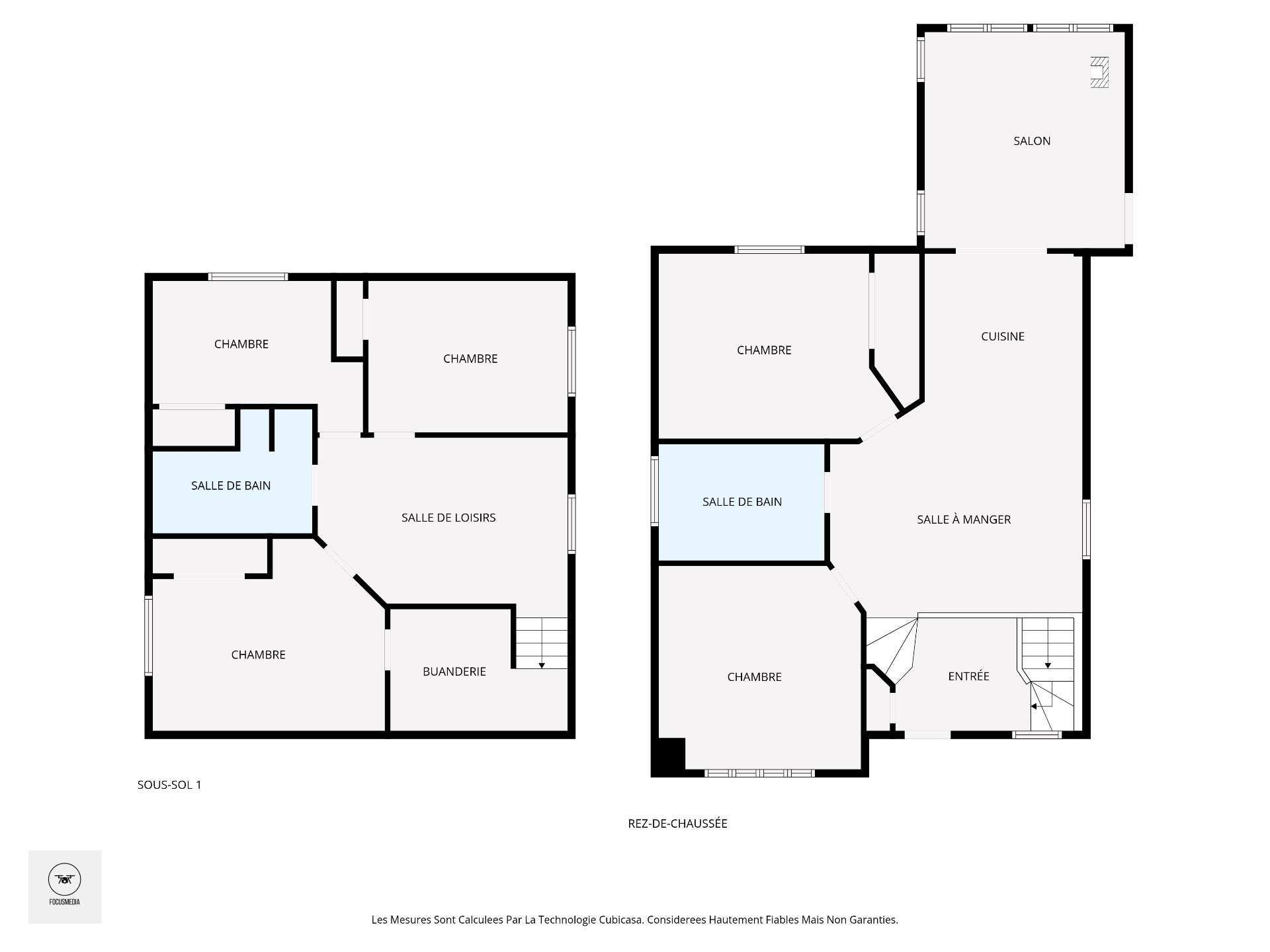
This charming single-story home in Saint-Jérôme will appeal to families looking for space and comfort. With 5 bedrooms and 2 bathrooms, it offers an ideal layout for a young family. Its superb extension reveals a huge living room bathed in light, perfect for relaxing moments. Enjoy a welcoming backyard with a pool, ideal for the summer months. Four parking spaces complete the package. Close to essential amenities and shops, this is an opportunity not to be missed!
Highlights
7.1x7.5 P
Ceramic tiles
17.6x12.1 P
Floating floor
12.5x13.9 P
Floating floor
8.1x10.11 P
Ceramic tiles
14.2x11.5 P
Floating floor
11.10x11.1 P
Ceramic tiles
13.10x14.4 P
Wood
17x12 P
Floating floor
13.6x11.6 P
Floating floor
10x8 P
Flexible floor coverings
13.7x9.3 P
Floating floor
9.10x13.7 P
Floating floor
Designed to meet the needs of an active family lifestyle, this bungalow located in Saint-Jérôme offers a well-balanced combination of space, comfort, and versatility.
The property features five bedrooms and two full bathrooms, providing a flexible layout ideal for family living, remote work, or multifunctional spaces tailored to your needs.
The 2021 extension (15 x 15 on screw piles) is a standout feature of the home. It offers a spacious and light-filled living room that quickly becomes the heart of the residence -- a welcoming gathering space perfect for family time and entertaining.
Outside, the landscaped yard with a pool allows you to fully enjoy the summer season. Four parking spaces add to the property's everyday practicality.
Conveniently located near essential services and amenities, the home offers a strategic setting that combines residential tranquility with urban accessibility.
Renovations and Improvements:
2025:
Installation of a wall-mounted heat pump
2023:
Full interior repainting
2021:
15 x 15 extension built on screw piles
Complete renovation of one bathroom
Installation of hardwood flooring in the extension
Addition of a wood stove
Replacement of exterior siding
Full roof replacement
Replacement of the rear entry door and patio door
Installation of gutters
Addition of new light fixtures (kitchen, dining room, and two bathrooms)
A property that has benefited from significant upgrades, now offering a functional and well-maintained living environment.
Life Style
Suggested properties
The more it is seen, the faster it is sold!
Activi-T
Views on the internet: 10,020
Visibili-T
Seen by over a million potential buyers every month, your property is displayed FREE of charge on over 100 websites across the country and around the world.
Suggested properties



































