One-and-a-half-storey house in Morin-Heights
52


449,000 $
2|
2|
1200 pc
Description
Highlights
Year built
1960
Living area
1200 pc
Basement
Partially finished
Roofing
Tin
Parking (total)
Outdoor
Zoning
Residential
Heating energy
Electricity
Distinctive features
Street corner, Wooded
Water supply
Municipality
Hearth stove
Wood fireplace
Landscaping
Fenced
Topography
Sloped, Flat
Sewage system
Unknown
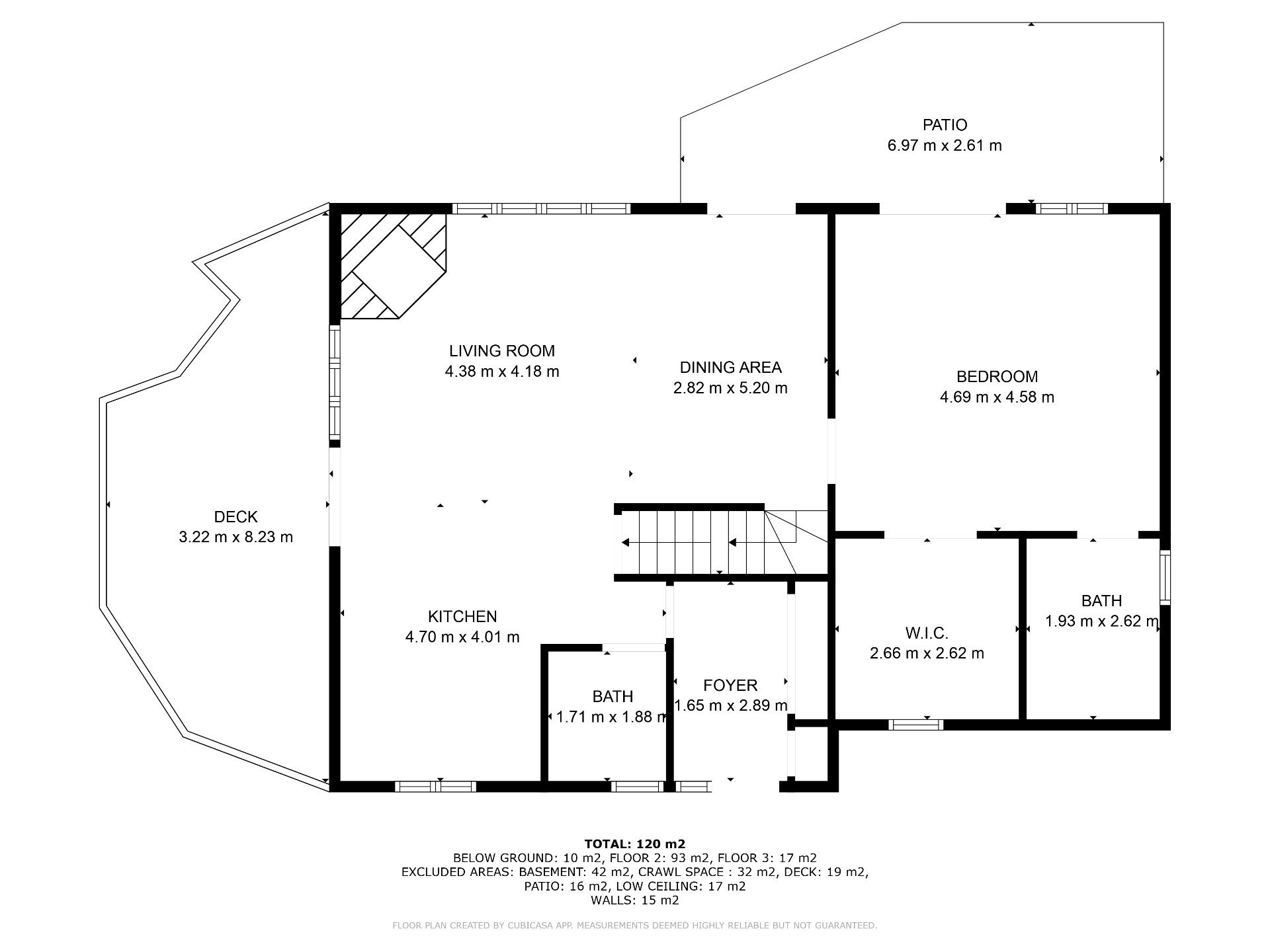
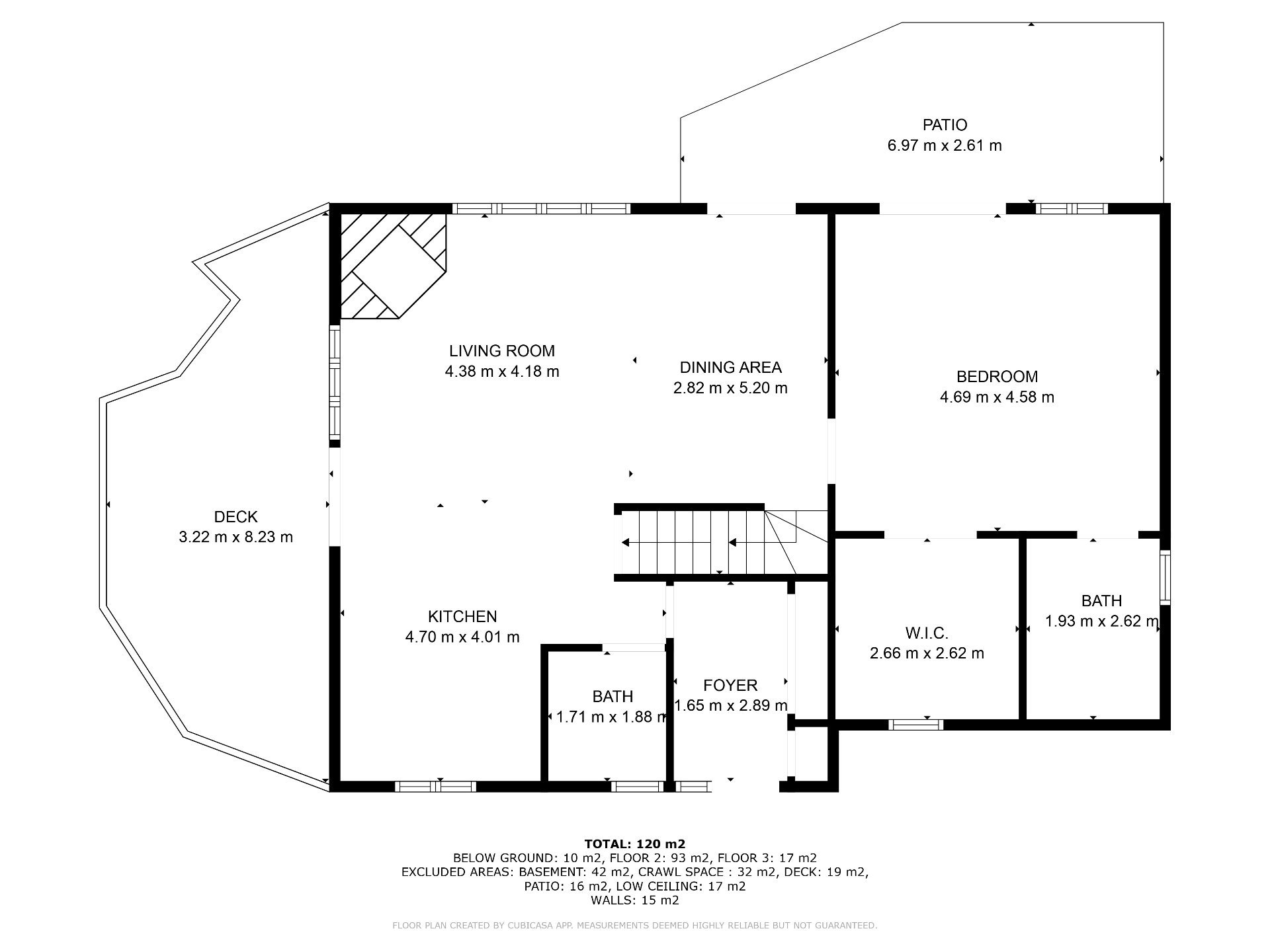
Hallway
1st level/Ground floor
9.4x5.4 P
9.4x5.4 P
Bathroom
1st level/Ground floor
6x5.6 P
6x5.6 P
Kitchen
1st level/Ground floor
13.2x11.4 P
13.2x11.4 P
Living room
1st level/Ground floor
15.10x13.9 P
15.10x13.9 P
Dining room
1st level/Ground floor
14x9.10 P
14x9.10 P
Primary bedroom
1st level/Ground floor
15x15 P
15x15 P
Walk-in closet
1st level/Ground floor
8x8.5 P
8x8.5 P
Bathroom
1st level/Ground floor
8.3x6 P
8.3x6 P
Bedroom
2nd floor
22.5x15.6 P
22.5x15.6 P
vide sanitaire
Basement
23x15 P
23x15 P
Storage
Basement
26x21.10 P
26x21.10 P
Laundry room
Basement
8x8 P
8x8 P
Taxes
Municipal Taxes (2025)
3 144 $
School taxes (2025)
213 $
Total
3 357 $
Municipal evaluation(2023)
Land
153 300 $
Building
240 300 $
393 600 $
Life Style
Suggested properties
839,900 $
524, Rue de Condora
Saint-Lazare (Vallée Chaline)
One-and-a-half-storey house
5|
2|
1445 pc
№ Centris 17134712
549,000 $
891, Ch. Principal
Saint-Joseph-du-Lac (North)
One-and-a-half-storey house
3|
1
№ Centris 23677021
749,000 $
7465, Ch. du Lac-Pilon
Sainte-Adèle (Mont Rolland)
One-and-a-half-storey house
3|
1
№ Centris 26955145
389,900 $
1, Ch. du Cimetière
Petite-Rivière-Saint-François
One-and-a-half-storey house
2|
1|
91.5 mc
№ Centris 23771537
429,000 $
15, Rue des Battures
La Malbaie
One-and-a-half-storey house
3|
1
№ Centris 20090622
239,000 $
21, Ch. du Lac-d'Argent
Sainte-Anne-du-Lac
One-and-a-half-storey house
2|
1
№ Centris 13930616
The more it is seen, the faster it is sold!
Activi-T
Views on the internet: 0
Visibili-T
Seen by over a million potential buyers every month, your property is displayed FREE of charge on over 100 websites across the country and around the world.
Suggested properties
839,900 $
524, Rue de Condora
Saint-Lazare (Vallée Chaline)
One-and-a-half-storey house
5|
2|
1445 pc
№ Centris 17134712
549,000 $
891, Ch. Principal
Saint-Joseph-du-Lac (North)
One-and-a-half-storey house
3|
1
№ Centris 23677021
749,000 $
7465, Ch. du Lac-Pilon
Sainte-Adèle (Mont Rolland)
One-and-a-half-storey house
3|
1
№ Centris 26955145
389,900 $
1, Ch. du Cimetière
Petite-Rivière-Saint-François
One-and-a-half-storey house
2|
1|
91.5 mc
№ Centris 23771537
429,000 $
15, Rue des Battures
La Malbaie
One-and-a-half-storey house
3|
1
№ Centris 20090622
239,000 $
21, Ch. du Lac-d'Argent
Sainte-Anne-du-Lac
One-and-a-half-storey house
2|
1
№ Centris 13930616



















































