Commercial building/Office in Lachute

15.50 $ /PC /Y +GST/QST
Description
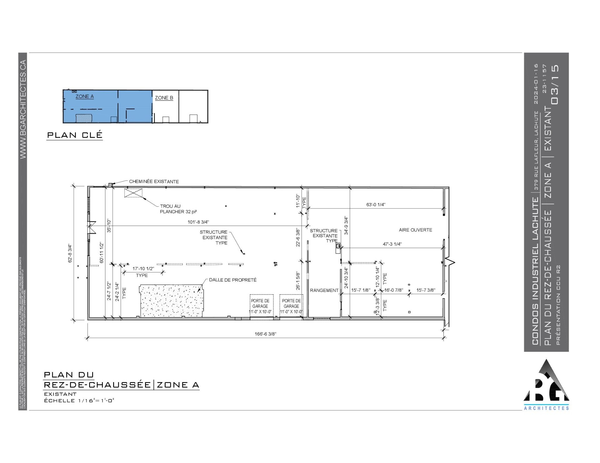
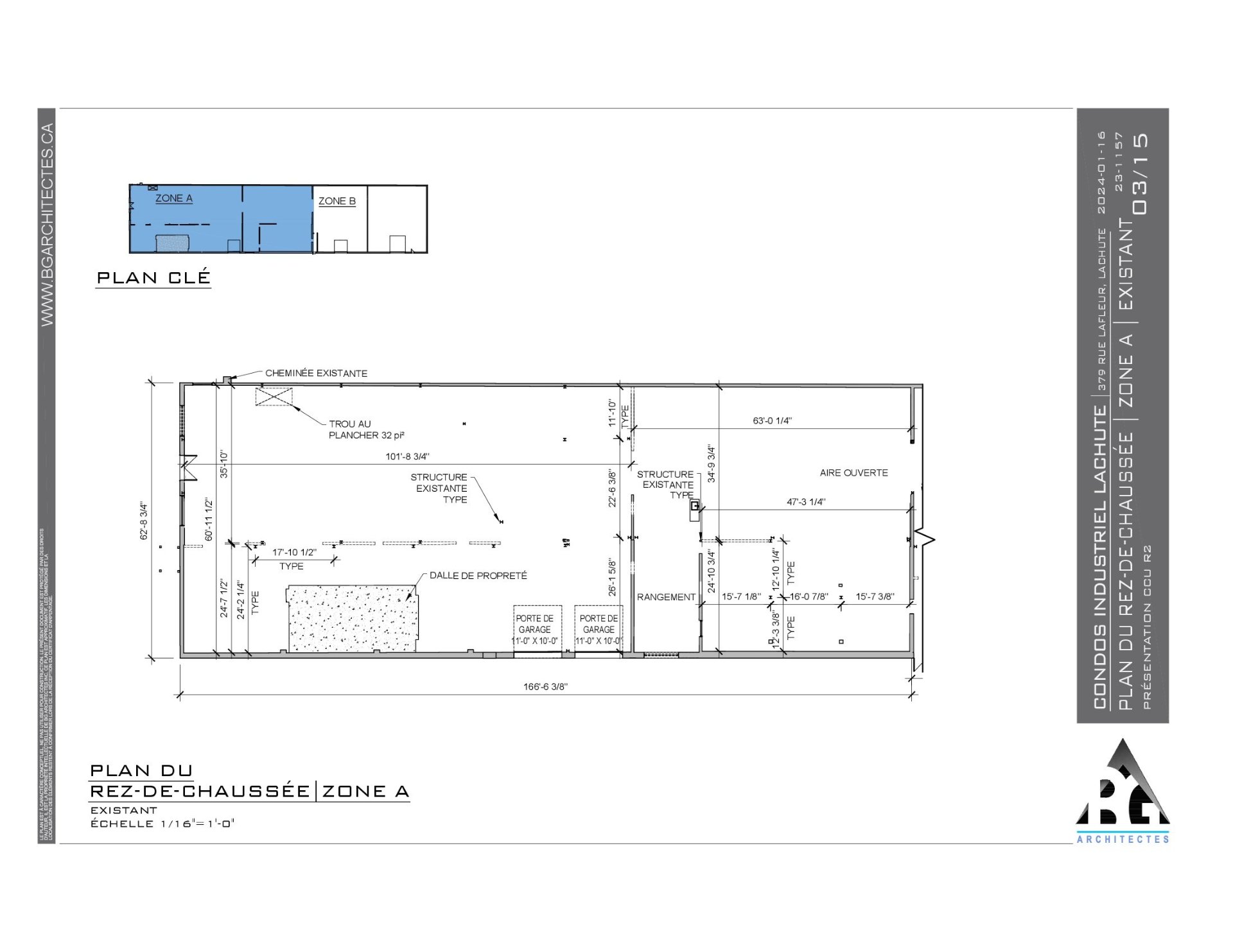
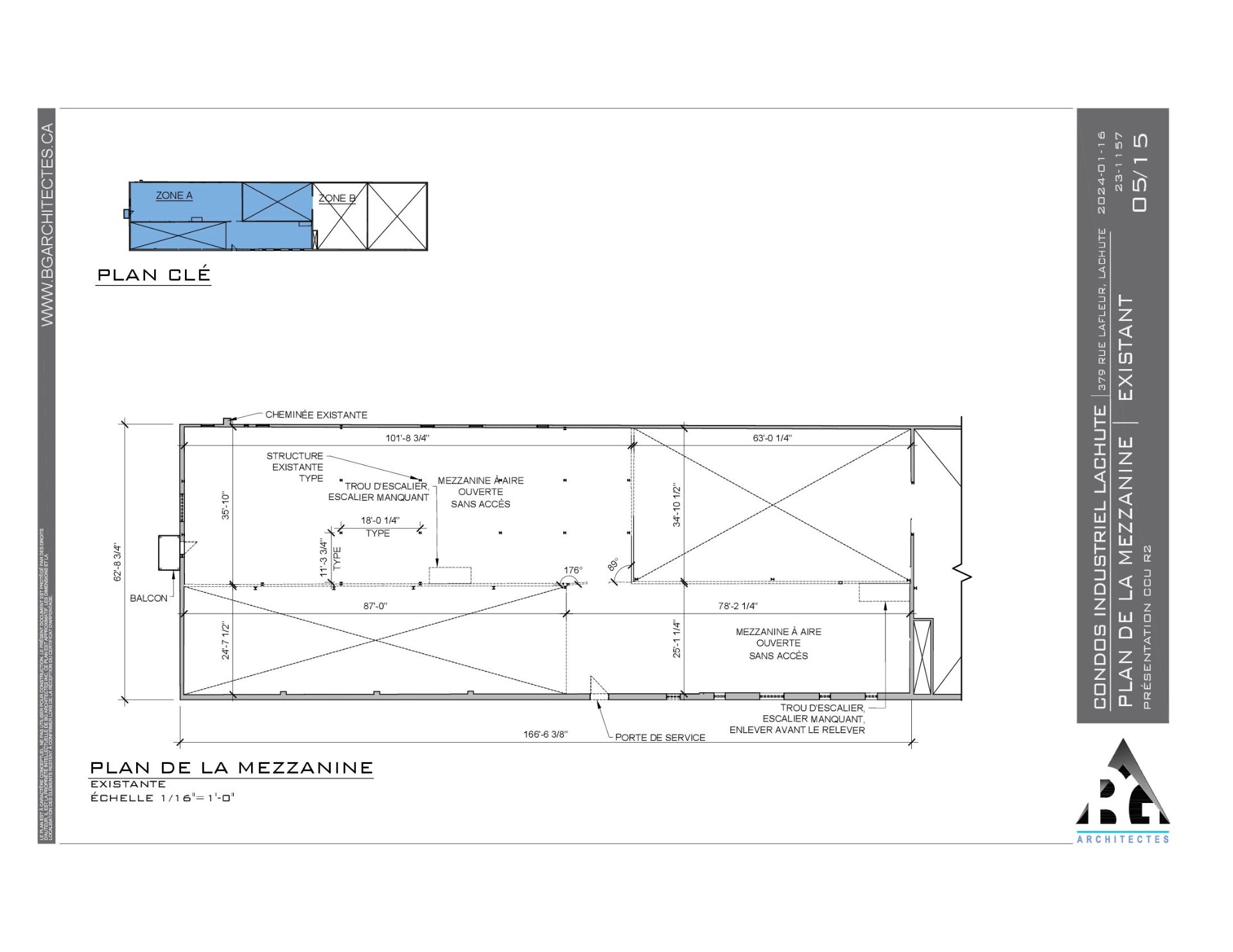
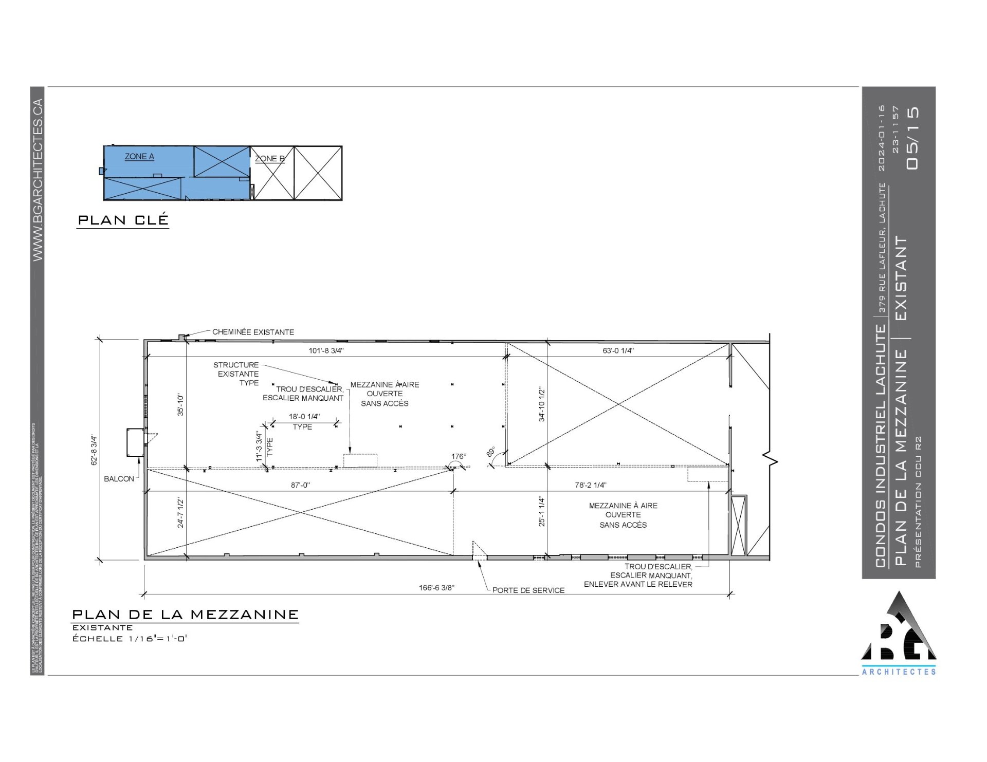
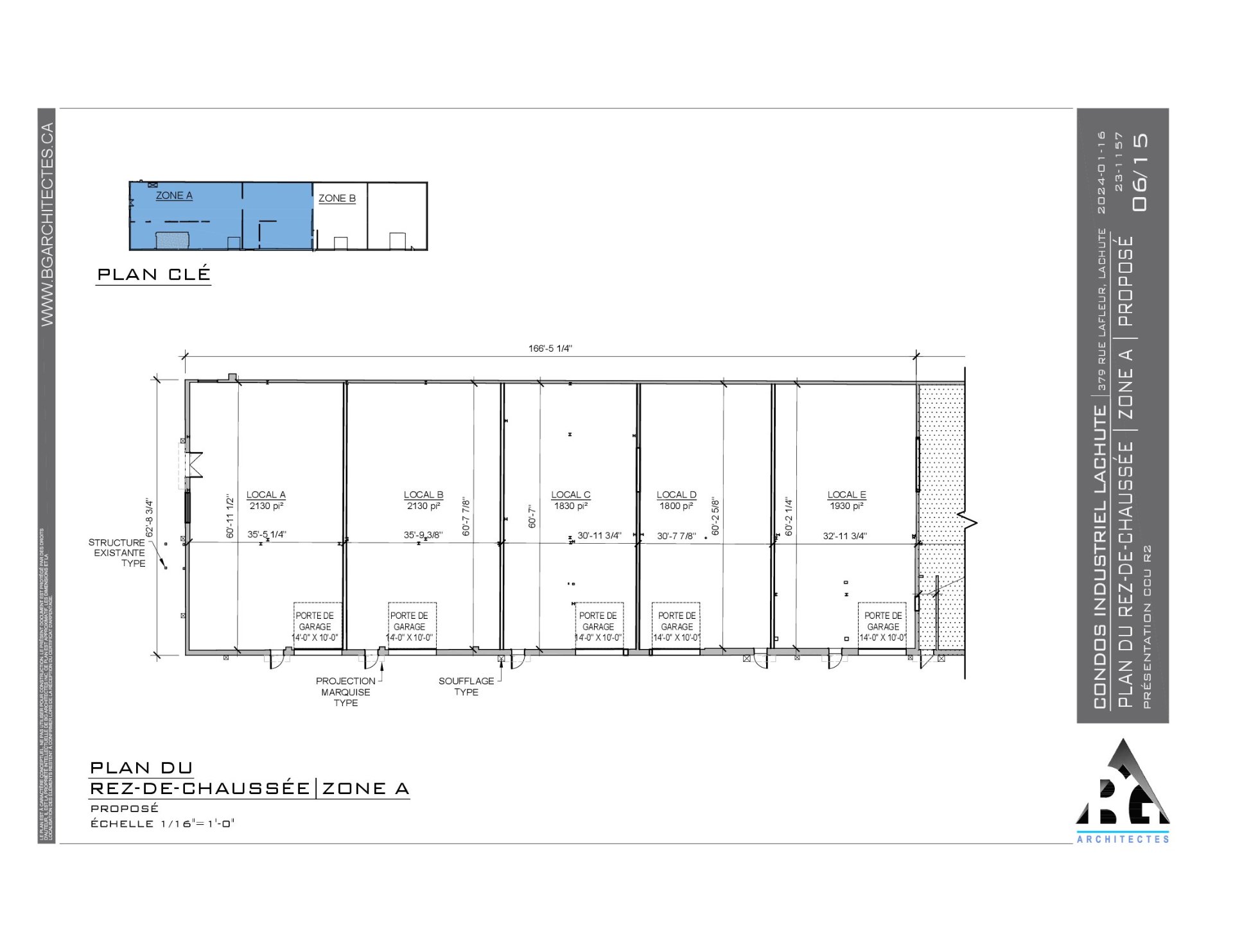
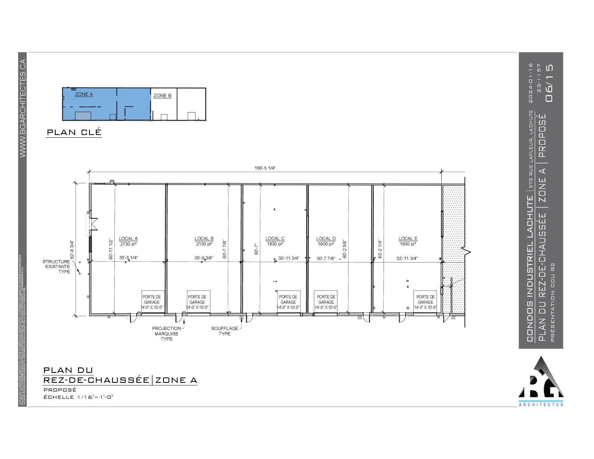
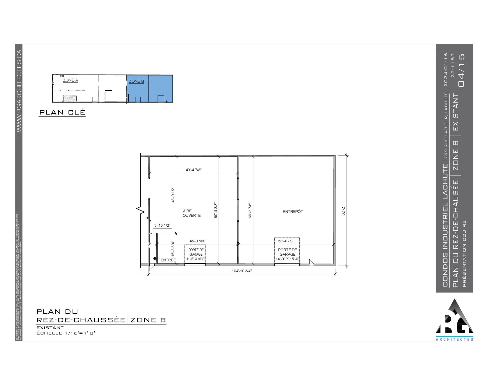
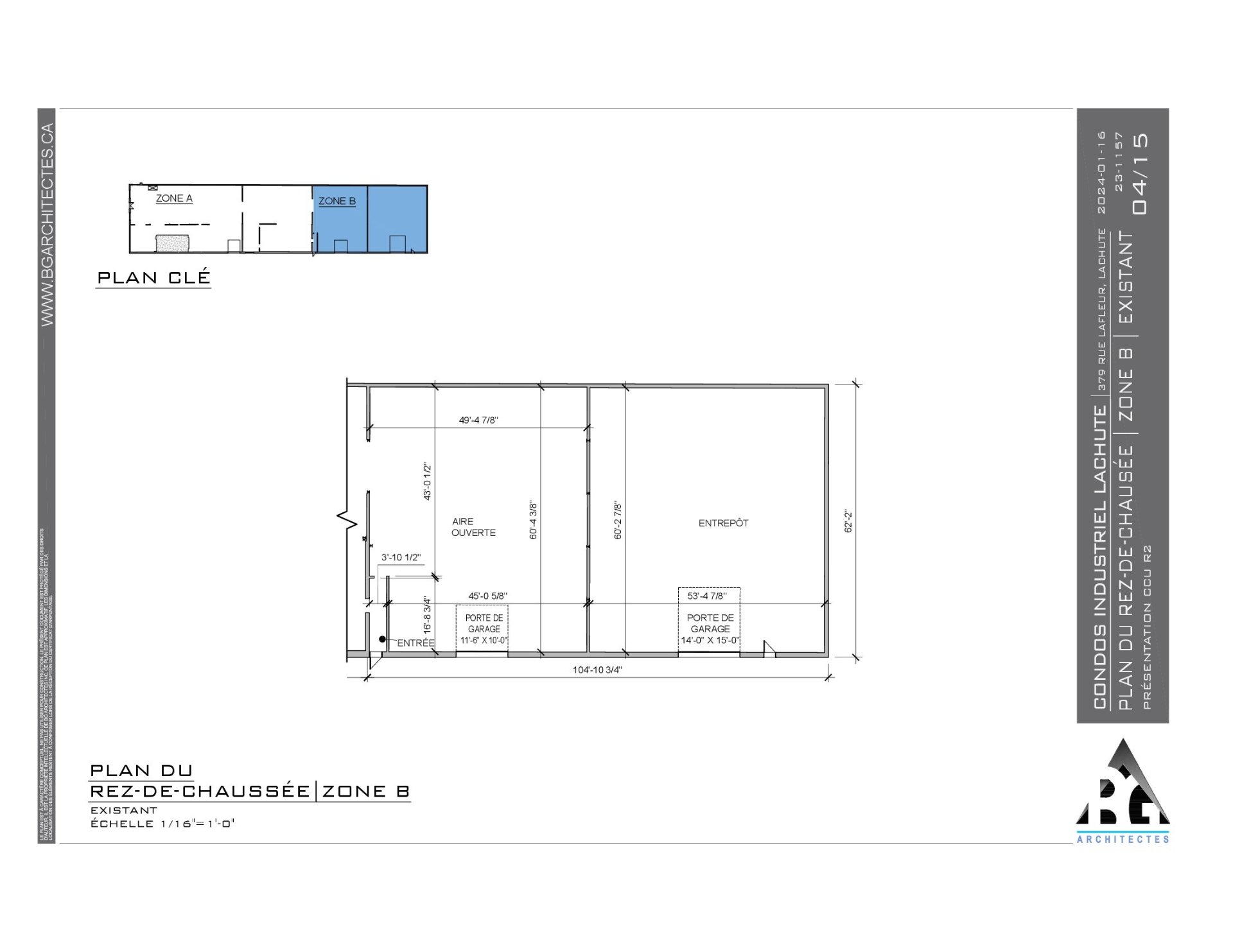
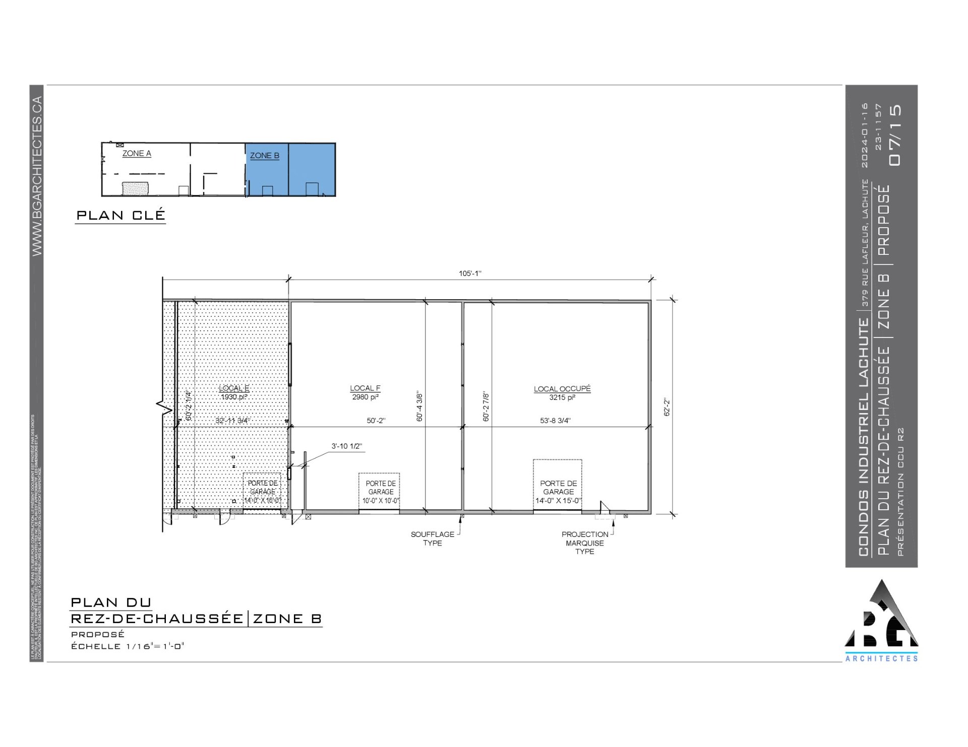
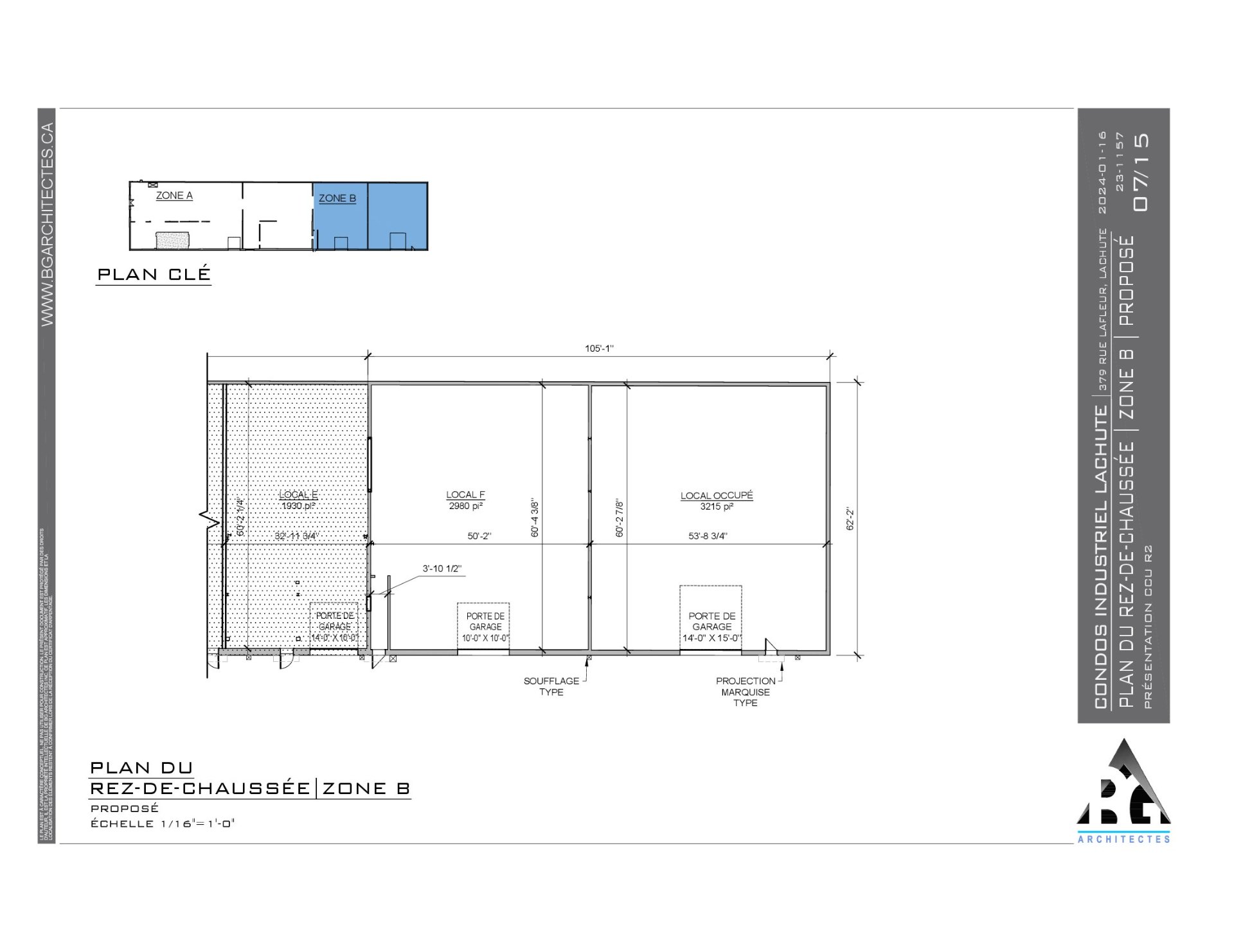
In the heart of Lachute, commercial and industrial space offering flexibility and strong potential. Picture your operations in units with generous volumes and clear heights ranging from 13 to 20 feet. Flexible layouts from ±1,800 to over 2,980 sq. ft., with the possibility to combine spaces up to ±12,800 sq. ft. Ideal for a growing business or expansion project. Refer to the plans to visualize the post-renovation layout.
Highlights
The building requires renovations, presenting an excellent opportunity for customization based on the tenant's specific needs. The available spaces offer great flexibility in layout, with the possibility of combining multiple units for a total area of up to ±12,800 sq. ft.
The units feature clear heights ranging from approximately 13 to 20 feet, suitable for a variety of uses, including storage, light manufacturing, or commercial activities. Some units are equipped with garage doors, allowing for efficient loading and delivery operations.
Availability:
Unit A: ±2,130 sq. ft., to be renovated, occupancy to be determined Unit B: ±2,130 sq. ft., to be renovated, occupancy to be determined Unit C: ±1,830 sq. ft., to be renovated, occupancy to be determined Unit D: ±1,800 sq. ft., to be renovated, occupancy to be determined Unit E: ±1,930 sq. ft., to be renovated, occupancy to be determined Unit F: ±2,980 sq. ft., available immediately
Additional rent is estimated at $3.00 per sq. ft.
Proposed layout plans are available for review. An ideal opportunity for a tenant looking to tailor a space to their vision in a strategic location.
Life Style
Suggested properties
The more it is seen, the faster it is sold!
Activi-T
Views on the internet: 3,088
Visibili-T
Seen by over a million potential buyers every month, your property is displayed FREE of charge on over 100 websites across the country and around the world.
Suggested properties









