Bungalow in Lac-Supérieur

669,800 $
Description
Magnificent cottage located in Lac Supérieur with CITQ permit, perfect for short-term rental or to enjoy with family in a peaceful and private environment. This charming cottage is fully equipped, ready to welcome your guests or to generate an annual rental income that can exceed $60,000. It offers notarized access to Lake Supérieur, ideal for swimming and water activities. The cottage has 3 bedrooms, 2 bathrooms, a wood fireplace for cold winter evenings, as well as a spa for relaxation. The wooded and intimate lot, located on a quiet lane, is plowed and maintained all year round.
Highlights
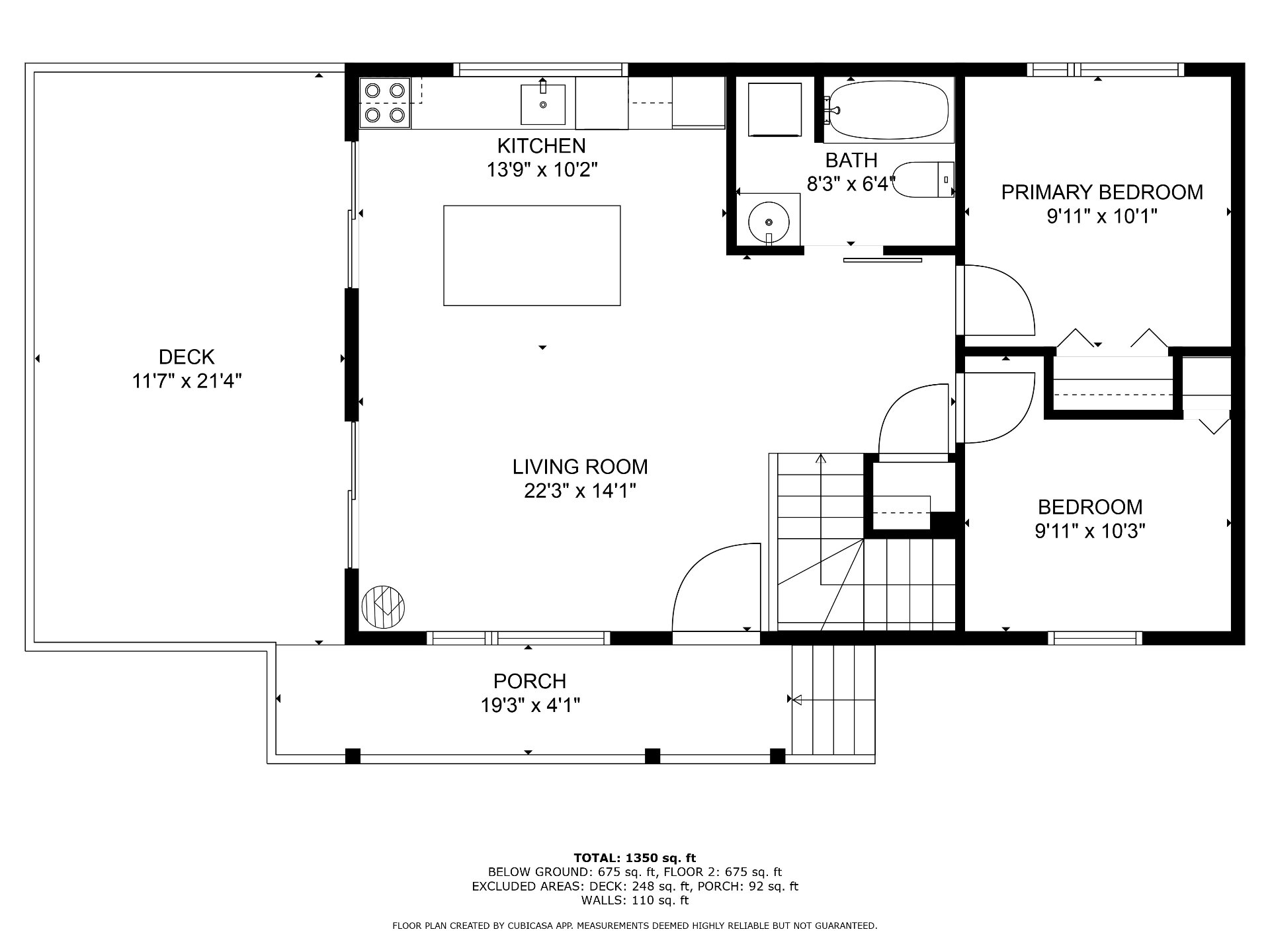
13.9x10.2 P
Wood
22.3x14.1 P
Wood
9.11x10.1 P
Wood
9.11x10.3 P
Wood
8.3x6.4 P
Vinyle
11.0x20.9 P
Floating floor
10.2x7.0 P
Floating floor
4.9x7.0 P
Floating floor
21.3x13.5 P
Floating floor
Life Style
Suggested properties
The more it is seen, the faster it is sold!
Activi-T
Views on the internet: 17,576
Visibili-T
Seen by over a million potential buyers every month, your property is displayed FREE of charge on over 100 websites across the country and around the world.
Suggested properties














































