Two or more storey in Amherst

875,000 $
Description
Stunning property located on the shores of lac de la Grange, a head lake navigable by electric motor only. Built in 2004, the home sits on a spacious 95,820 sq. ft. south-facing lot. A true off-grid retreat, it seamlessly blends nature, self-sufficiency, and modern comfort. The warm house, features heated floors, a wood-burning stove, and distinctive finishes crafted from trees sourced directly from the property. A 13 kW solar power system supported by a generator ensures reliable energy autonomy, while satellite internet enables comfortable remote work.
Highlights
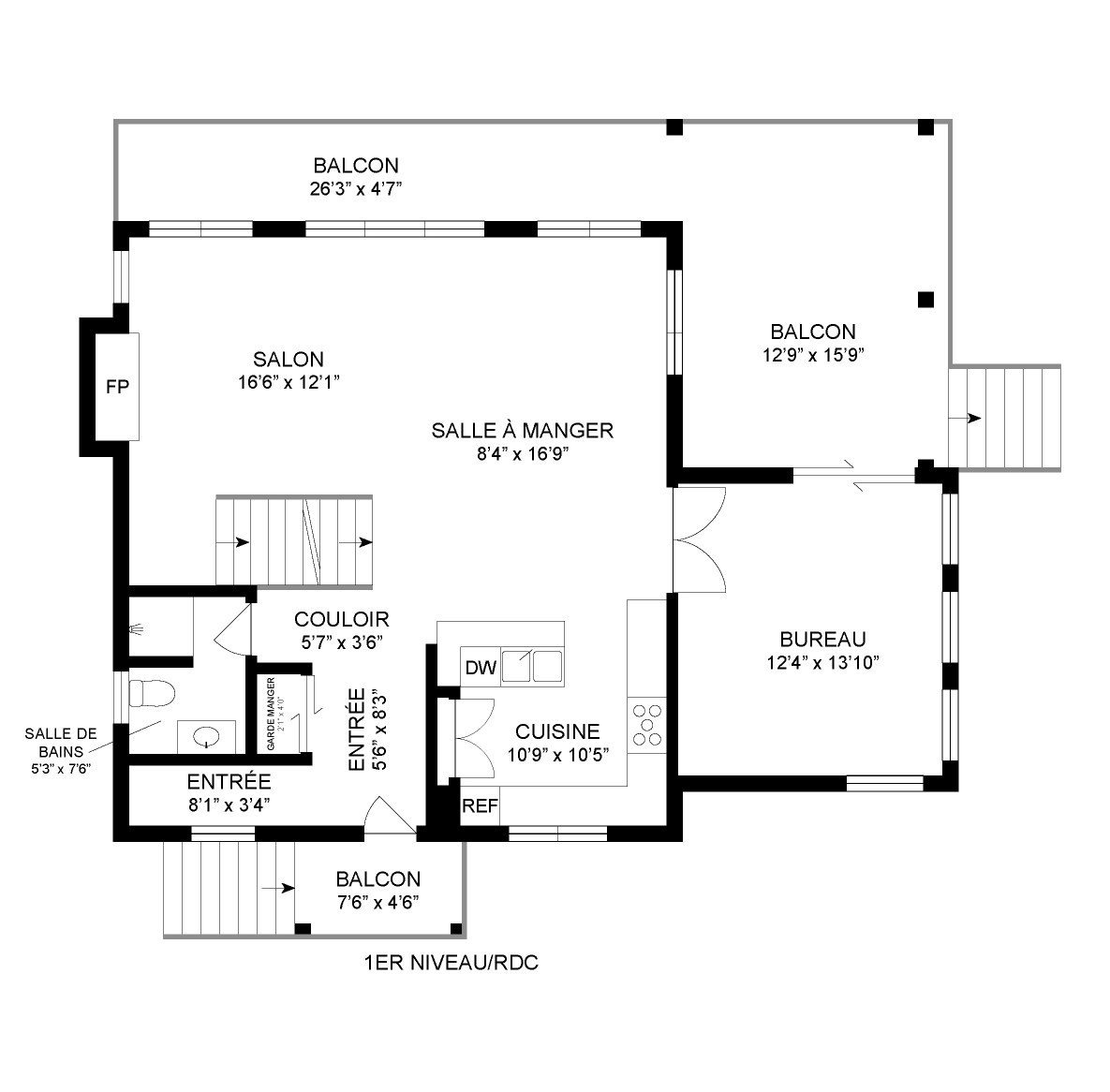
5.7x3.6 P
Ceramic tiles
10.9x10.5 P
Ceramic tiles
8.4x16.9 P
Ceramic tiles
16.6x12.1 P
Ceramic tiles
12.4x13.10 P
Ceramic tiles
5.3x7.6 P
Ceramic tiles
18.0x11.8 P
Floating floor
13.3x11.2 P
Floating floor
5.7x3.11 P
Floating floor
4.7x6.11 P
Floating floor
7.10x3.11 P
Ceramic tiles
12.10x4.8 P
Concrete
9.4x2.0 P
Ceramic tiles
12.10x11.1 P
Ceramic tiles
10.1x14.7 P
Ceramic tiles
10.1x10.6 P
Ceramic tiles
28.0x30.0 P
Concrete
The adjacent lot is also available for purchase separately (Centris #26980935) or as part of a package (Centris #23428174). Possibility to convert in bigeneration.
Discover this enchanting estate where nature, self-sufficiency, and serenity come together beautifully. An exceptional setting: lovely house nestled in a mature forest along Lac-de-la-Grange -- a pristine, motorboat-free lake known for its outstanding water quality.
Off-grid comfort and complete autonomy - Fully off the grid, the property is powered by a 13 KW solar system with a backup generator, ensuring year-round energy independence (wood oven). The current owners have lived here full-time since 2018, a true testament to the home's reliability and comfort.
Warmth and craftsmanship: Blending modern comfort with natural materials, the home features a wood stove, heated ceramic floors, and an interior staircase and walls built from trees harvested on the property, creating an authentic and inviting atmosphere.
A space for creativity and projects - The heated two-storey garage/workshop with high ceilings is ideal for mechanics, woodworking, gardening, or any artistic pursuits.
Connected to nature -- and the world - A reliable satellite Internet connection makes remote work easy and enjoyable in this peaceful setting.
A vibrant, inspiring lifestyle - Lac-de-la-Grange is connected to two other oligotrophic lakes (Lac-de-la-Loutre and Grand-Lac-Jetté) with canoe portages linking each -- a paradise for swimming, fishing (walleye and trout), canoeing, and kayaking.
The garden, certified "Garden for Life" in 2023 by Espace pour la vie, reflects a genuine commitment to biodiversity. Every season offers its beauty: birdsong in spring, golden reflections on the lake in autumn, and snowshoe trails in winter.
Expansion opportunity -- just 5 minutes away, an additional 12-acre parcel (wooded, with a driveway and cleared parking area, backing onto Crown land and buildable) may be purchased as an add-on -- Centris #25637739.
A rare and inspiring place, ideal for outdoor enthusiasts, nature lovers, and anyone dreaming of a sustainable lifestyle in perfect harmony with the land. 10 minutes from Vendée (ice rink, convenience store with SAQ, hardware store); 15 minutes from the Papineau-Labelle Wildlife Reserve; 50 minutes from Tremblant/St-Jovite. Library and Pickleball available in the village, with equipment provided by the municipality.
Life Style
Suggested properties
The more it is seen, the faster it is sold!
Activi-T
Views on the internet: 1,263
Visibili-T
Seen by over a million potential buyers every month, your property is displayed FREE of charge on over 100 websites across the country and around the world.
Suggested properties






























































