Bungalow in Repentigny (Repentigny)

579,000 $
Description
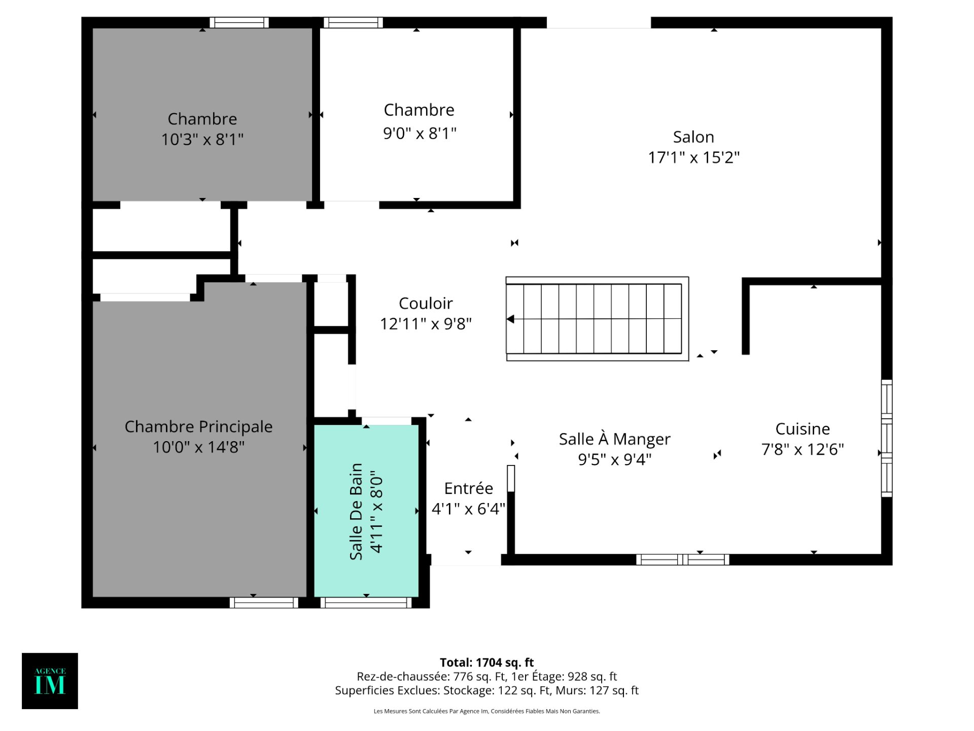
Charming single-family home in Repentigny, very well maintained over the years. From the moment you step inside, you'll be captivated by the natural light and the warm, inviting atmosphere. A bright and welcoming living space that makes you feel at home from the very first visit. The dining room, kitchen, and living room flow seamlessly into a spacious open-concept area, perfect for entertaining and everyday living. The rooms offer a functional and comfortable layout, ideal for family life. The property also features 5 bedrooms, 2 full bathrooms, and a family room in the basement.
Highlights
9.5x9.4 P
Parquetry
7.8x12.6 P
Ceramic tiles
17.1x15.2 P
Parquetry
4.11x8.0 P
Ceramic tiles
10.0x14.8 P
Parquetry
10.3x8.1 P
Parquetry
9.0x8.1 P
Parquetry
11.1x9.0 P
vinyl flooring
20.2x11.7 P
Floating floor
16.2x15.1 P
Floating floor
7.11x9.0 P
Floating floor
13.6x9.0 P
Concrete
The property is located in a peaceful neighborhood with easy access to all services, schools, parks, and major roadways. (10 minutes from the REM, Terrebonne train station) An opportunity not to be missed for those seeking comfort and quality of life.
Life Style
Suggested properties
Open house
Sunday April 12 : 14h to 16h
The more it is seen, the faster it is sold!
Activi-T
Views on the internet: 9,635
Visibili-T
Seen by over a million potential buyers every month, your property is displayed FREE of charge on over 100 websites across the country and around the world.



































