Bungalow in Lanoraie
56


749,900 $
3|
2
Description
Highlights
Year built
1972
Distinctive features
Water front
Equipment available
Central vacuum cleaner system installation, Wall-mounted heat pump
Basement
6 feet and over, Finished basement
Roofing
Asphalt shingles
Zoning
Residential
Heating system
Space heating baseboards, Electric baseboard units
View
Water
Cupboard
Wood
Sewage system
Purification field, Septic tank
Parking (total)
Outdoor
Distinctive features
Water front
Heating energy
Electricity
Windows
PVC
Water supply
Well point
Driveway
Asphalt, Double width or more
Window type
Sliding, Crank handle
Topography
Flat
Foundation
Poured concrete
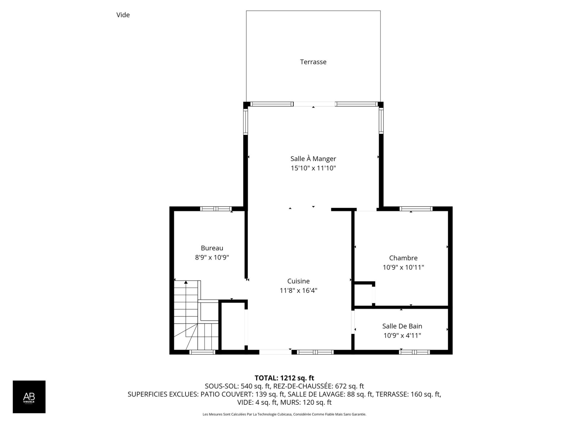
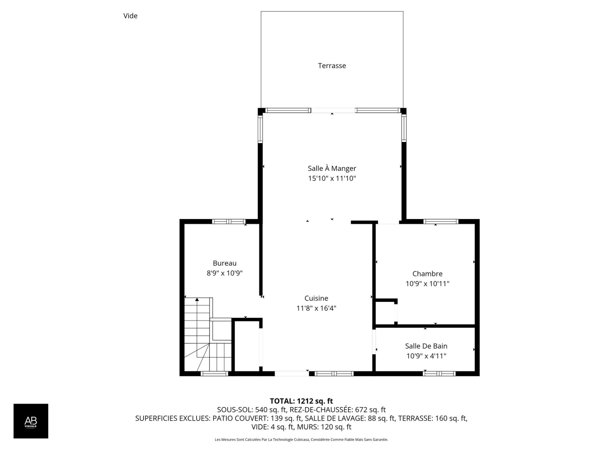
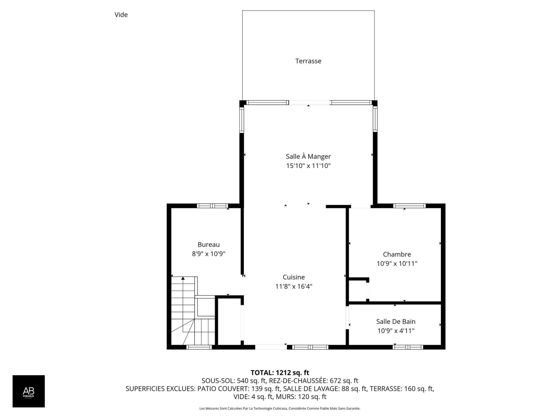
Kitchen
1st level/Ground floor
11.8x16.4 P
Wood
11.8x16.4 P
Wood
Dining room
1st level/Ground floor
15.10x11.10 P
Wood
15.10x11.10 P
Wood
Bedroom
1st level/Ground floor
10.9x10.11 P
Wood
10.9x10.11 P
Wood
Home office
1st level/Ground floor
8.9x10.9 P
Wood
8.9x10.9 P
Wood
Bathroom
1st level/Ground floor
10.9x4.11 P
Wood
10.9x4.11 P
Wood
Primary bedroom
Basement
14.8x13.11 P
Epoxy
14.8x13.11 P
Epoxy
Walk-in
Basement
11.0x4.0 P
Epoxy
11.0x4.0 P
Epoxy
Bedroom
Basement
8.4x7.9 P
Epoxy
8.4x7.9 P
Epoxy
Living room
Basement
18.0x13.0 P
Epoxy
18.0x13.0 P
Epoxy
Bathroom
Basement
9.0x7.5 P
Epoxy
9.0x7.5 P
Epoxy
Laundry room
Basement
11.10x7.2 P
Epoxy
11.10x7.2 P
Epoxy
Taxes
Municipal Taxes (2026)
1 970 $
School taxes (2025)
241 $
Total
2 211 $
Municipal evaluation(2026)
Land
174 900 $
Building
234 000 $
408 900 $
Life Style
Suggested properties
The more it is seen, the faster it is sold!
Activi-T
Views on the internet: 9,753
Visibili-T
Seen by over a million potential buyers every month, your property is displayed FREE of charge on over 100 websites across the country and around the world.























































