Bungalow in Sept-Îles
39


4|
2|
2288.0 mc
Description
Highlights
Year built
1971
Living area
2288.0 mc
Garage
Detached
Siding
Aluminum, Brick, Pressed fibre
Roofing
Asphalt shingles
Zoning
Residential
Heating system
Space heating baseboards, Electric baseboard units
Garage
Detached
Landscaping
Fenced
Cupboard
Melamine
Sewage system
Municipal sewer
Parking (total)
Outdoor, Garage
Heating energy
Electricity
Windows
PVC
Water supply
Municipality
Driveway
Plain paving stone
Window type
Sliding, Crank handle
Foundation
Poured concrete
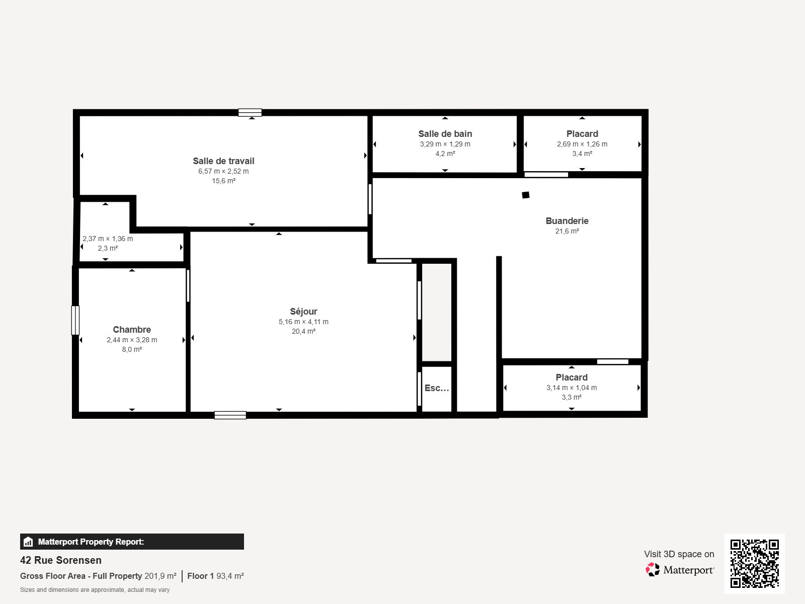
Hallway
1st level/Ground floor
8.10x5.6 P
Ceramic tiles
8.10x5.6 P
Ceramic tiles
Dining room
1st level/Ground floor
13.4x11.3 P
Ceramic tiles
13.4x11.3 P
Ceramic tiles
Kitchen
1st level/Ground floor
9.2x12.6 P
Ceramic tiles
9.2x12.6 P
Ceramic tiles
Living room
1st level/Ground floor
10.3x14.4 P
Wood
10.3x14.4 P
Wood
Primary bedroom
1st level/Ground floor
12.6x9.4 P
Wood
12.6x9.4 P
Wood
Bedroom
1st level/Ground floor
9.2x10.9 P
Wood
9.2x10.9 P
Wood
Bedroom
1st level/Ground floor
10.3x13.4 P
Wood
10.3x13.4 P
Wood
Solarium/Sunroom
1st level/Ground floor
9.11x13.11 P
Ceramic tiles
9.11x13.11 P
Ceramic tiles
Bathroom
1st level/Ground floor
9.1x7.6 P
Ceramic tiles
9.1x7.6 P
Ceramic tiles
Family room
Basement
13.4x16.10 P
Floating floor
13.4x16.10 P
Floating floor
Bedroom
Basement
11.4x7.11 P
Floating floor
11.4x7.11 P
Floating floor
Laundry room
Basement
13.7x10.5 P
Ceramic tiles
13.7x10.5 P
Ceramic tiles
Bathroom
Basement
4.2x9.3 P
Ceramic tiles
4.2x9.3 P
Ceramic tiles
Workshop
Basement
8.3x21.5 P
Concrete
8.3x21.5 P
Concrete
Taxes
Municipal Taxes (2025)
2 886 $
School taxes (2025)
174 $
Total
3 060 $
Municipal evaluation(2025)
Land
41 000 $
Building
224 100 $
265 100 $
Life Style
Suggested properties
414,900 $
583, Rue Principale
Sainte-Hélène-de-Bagot
Bungalow
5|
2|
94.14 mc
№ Centris 28465066
175,000 $
4578, Rue des Pionniers
Port-Cartier (Rivière Pentecôte)
Bungalow
4|
1|
180.2 mc
№ Centris 15877602
169,000 $
6556, Ch. du Lac-Kiamika
Rivière-Rouge (Sainte-Véronique)
Bungalow
2|
1
№ Centris 17947724
850,000 $ +GST/QST
308, Ch. des Bouleaux
Saint-Adolphe-d'Howard
Bungalow
3|
1
№ Centris 28847664
The more it is seen, the faster it is sold!
Activi-T
Views on the internet: 9,415
Visibili-T
Seen by over a million potential buyers every month, your property is displayed FREE of charge on over 100 websites across the country and around the world.
Suggested properties
414,900 $
583, Rue Principale
Sainte-Hélène-de-Bagot
Bungalow
5|
2|
94.14 mc
№ Centris 28465066
175,000 $
4578, Rue des Pionniers
Port-Cartier (Rivière Pentecôte)
Bungalow
4|
1|
180.2 mc
№ Centris 15877602
169,000 $
6556, Ch. du Lac-Kiamika
Rivière-Rouge (Sainte-Véronique)
Bungalow
2|
1
№ Centris 17947724
850,000 $ +GST/QST
308, Ch. des Bouleaux
Saint-Adolphe-d'Howard
Bungalow
3|
1
№ Centris 28847664






































