Duplex in Montréal (Rosemont/La Petite-Patrie)

895,000 $
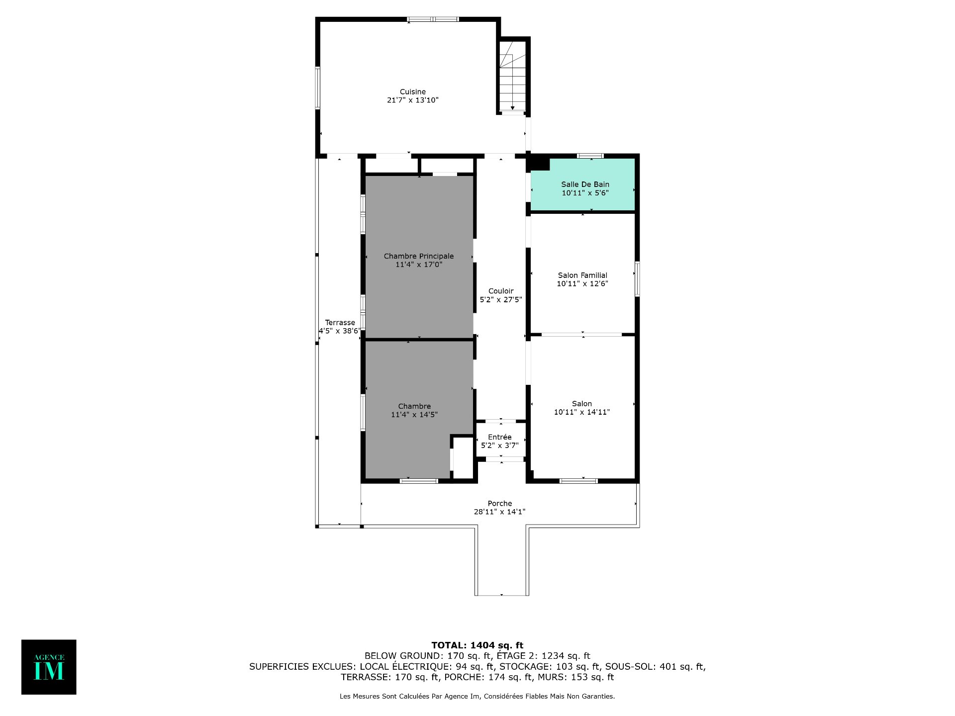
Description
Don't miss this opportunity to discover this superb century-old duplex located on Rosemont Boulevard, near Pie-IX Boulevard, in the Rosemont district and close to all services (public transportation, bike path, schools, parks, daycares, grocery store, Botanical Garden, Olympic Stadium, Maisonneuve Park). Ideal for owner-occupant, with a source of income provided by the 2nd floor apartment. This building has enormous potential. See addendum for details and special features. A must-see!
Highlights
21.7x13.10 P
Bois franc en chêne
11.4x8.6 P
Floating floor
10.11x12.6 P
Bois franc en chêne
11.4x9.8 P
Floating floor
10.11x14.11 P
Bois franc en chêne
11.4x14.3 P
Floating floor
11.4x17.0 P
Bois franc en chêne
11.2x12.5 P
Floating floor
11.4x14.5 P
Bois franc en chêne
11.3x12.5 P
Floating floor
10.11x5.6 P
Ceramic tiles
11.3x5.5 P
Ceramic tiles
6.7x8.8 P
Parquetry
3.11x5.0 P
13.10x28.8 P
Parquetry
8.2x10.6 P
6.3x15.4 P
The ground floor apartment and the basement (currently occupied by the owner and available to the new owner)
The apartment features a large double living room with the possibility of creating a third bedroom.
The basement offers excellent potential for further development and/or storage.
The building also has a private outdoor parking space with an electric vehicle charging station, a private terrace, and a green space.
The second floor apartment offers generously sized rooms, an office space, and a very large terrace.
The second floor apartment is currently rented.
Life Style
Suggested properties
The more it is seen, the faster it is sold!
Activi-T
Views on the internet: 11,219
Visibili-T
Seen by over a million potential buyers every month, your property is displayed FREE of charge on over 100 websites across the country and around the world.









































