Split-level in Châteauguay

549,000 $
Description
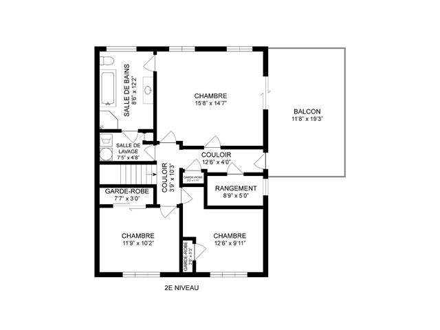
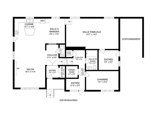
LOCATION! House located at the entrance to Châteauguay, in a sought-after family neighborhood near a park. It offers a garage with storage space and a large covered balcony. The bright and inviting kitchen opens onto the dining area, creating a functional living space. It has 2 bathrooms, 2 bedrooms upstairs and a third in the basement, which is fully finished and features a wood-burning fireplace. With wall-mounted heat pump for your comfort. Large, private backyard with sheds. Quick access to the Mercier Bridge, public transportation, and all services. Welcome!
Highlights
11x15 P
Wood
8.1x10.8 P
Ceramic tiles
8x9.2 P
Ceramic tiles
12x11.9 P
Wood
12x11.4 P
Wood
4.11x8.6 P
Ceramic tiles
14.9x16.3 P
Floating floor
9.11x10.6 P
Floating floor
13x5 P
floating vinyl
The stove(s), fireplace(s), combustion appliance(s) and chimney(s) are sold without any warranty with respect to their compliance with applicable regulations and insurance company requirements.
The seller's broker informs the buyer that he or she cannot represent them or defend their interests. He or she reminds the buyer that they may be represented by another broker of their choice. If the buyer still chooses to communicate directly with the seller's broker, the latter will treat the buyer fairly and provide objective information relevant to the purchase.
Life Style
Suggested properties
The more it is seen, the faster it is sold!
Activi-T
Views on the internet: 236
Visibili-T
Seen by over a million potential buyers every month, your property is displayed FREE of charge on over 100 websites across the country and around the world.
Suggested properties







































