Quintuplex à Montréal (Le Plateau-Mont-Royal)
5245-5251, Av. De Lorimier

1 599 700 $
Description
Excellente opportunité d'investissement ! Superbe 5plex ayant bénéficié de nombreuses améliorations au fil des ans. Les cinq baux sont renouvelés jusqu'en juillet 2026 et génèrent un revenu effectif annuel de 74 748 $. Au rez-de-chaussée, une vaste unité pleine de cachet typique du Plateau, avec un grand sous-sol non aménagé offrant une hauteur variant de 6'3'' à 6'7'', idéal pour créer l'espace de votre choix. Les quatre logements supérieurs sont rénovés ou en excellent état, occupés par des locataires A+ fiables. Emplacement de choix, à proximité du métro, des commerces et de tous les services. Appelez-nous dès aujourd'hui !
Points saillants
10.11x19.7 P
Bois
10.4x15.6 P
Bois
10.4x15.11 P
Bois
10x13.1 P
Bois
10.7x14.2 P
Bois
9.11x9.10 P
Bois
4.5x9.5 P
Céramique
10.10x8.5 P
Céramique
25x50 P
Béton
L'hydro-québec est à la charge des locataires et tous les logements ont les entrées pour laveuse et sécheuse.
Loyers actuels (voir plans aériens) :
5245 - rdc - 6½ - 2 chambres fermées + bureau - loyer effectif de 1765$ jusqu'au 30 juin 2026.
5247 - 2e étage à droite - 4½ - 2 chambres en pièce double
- loyer effectif de 1350$ jusqu'au 30 juin 2026.
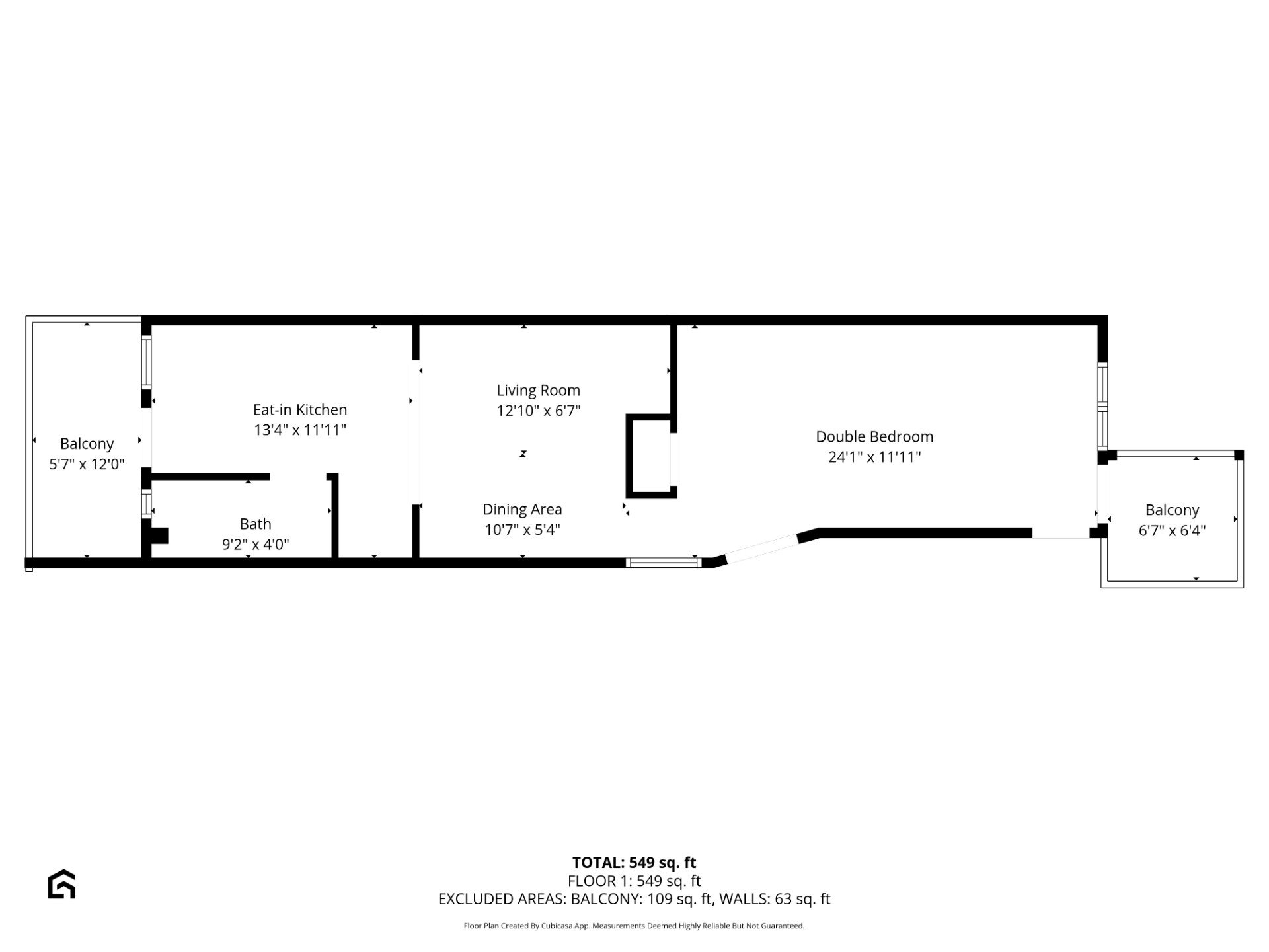
5249 - 3e étage à droite - 3½ - 1 immense chambre - loyer effectif de 980$ jusqu'au 30 juin 2026.
5249A - 3e étage à gauche - 3½ - 1 immense chambre - loyer effectif de 859$ jusqu'au 30 juin 2026.
5251 - 2e étage à gauche - 4½ - 2 chambres en pièce double
- loyer effectif de 1275$ jusqu'au 30 juin 2026.
Style de vie
Propriétés suggérées
Plus c'est vu, plus vite c'est vendu !
Activi-T
Vues sur internet : 10 654
Visibili-T
Vue par plus d'un million d'acheteurs potentiels chaque mois, votre propriété est affichée GRATUITEMENT sur plus de 100 sites nationaux et internationaux.
Propriétés suggérées


























































