Maison à étages à Prévost
1004, Rue des Patriarches

739 000 $
Description
VISITE LIBRE 15 MARS 14H À 16H. Située dans le recherché Domaine des Patriarches à Prévost, cette propriété soigneusement entretenue par son seul et unique propriétaire offre un vaste terrain intime de 22 750 pi² bordé d'arbres. À l'étage, vous avez 3 chambres confortables. Au rez-de-chaussée, vous disposez d'un bureau pouvant servir de 4e chambre. Elle propose aussi 2 salles de bain complètes, 2 foyers au bois pour une ambiance chaleureuse, un grand salon, un patio en béton recouvert pour profiter de moment à l'extérieur, un garage chauffé et un sous-sol à aménager selon vos besoins. Un parfait équilibre entre nature, espace et confort.
Points saillants
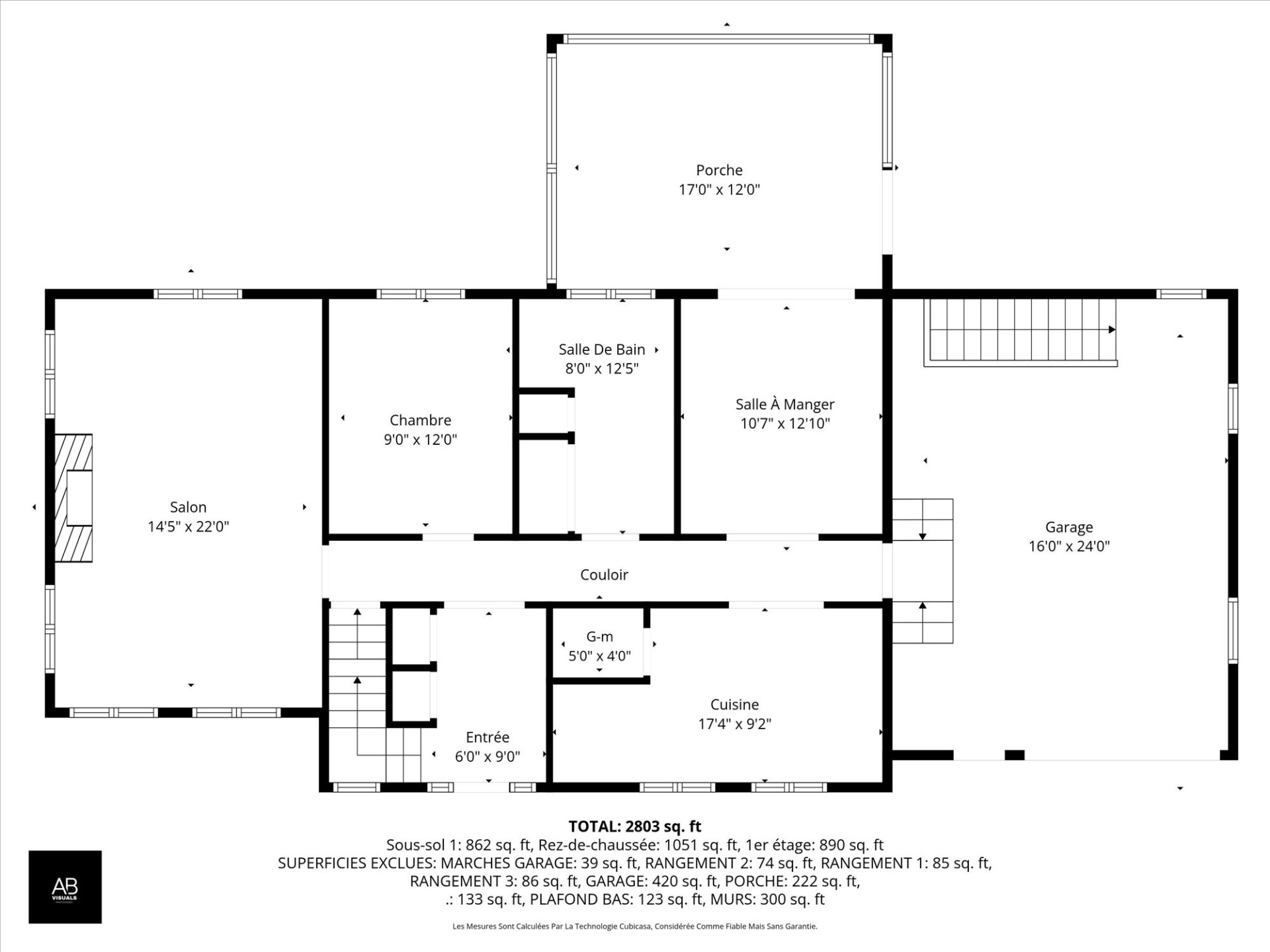
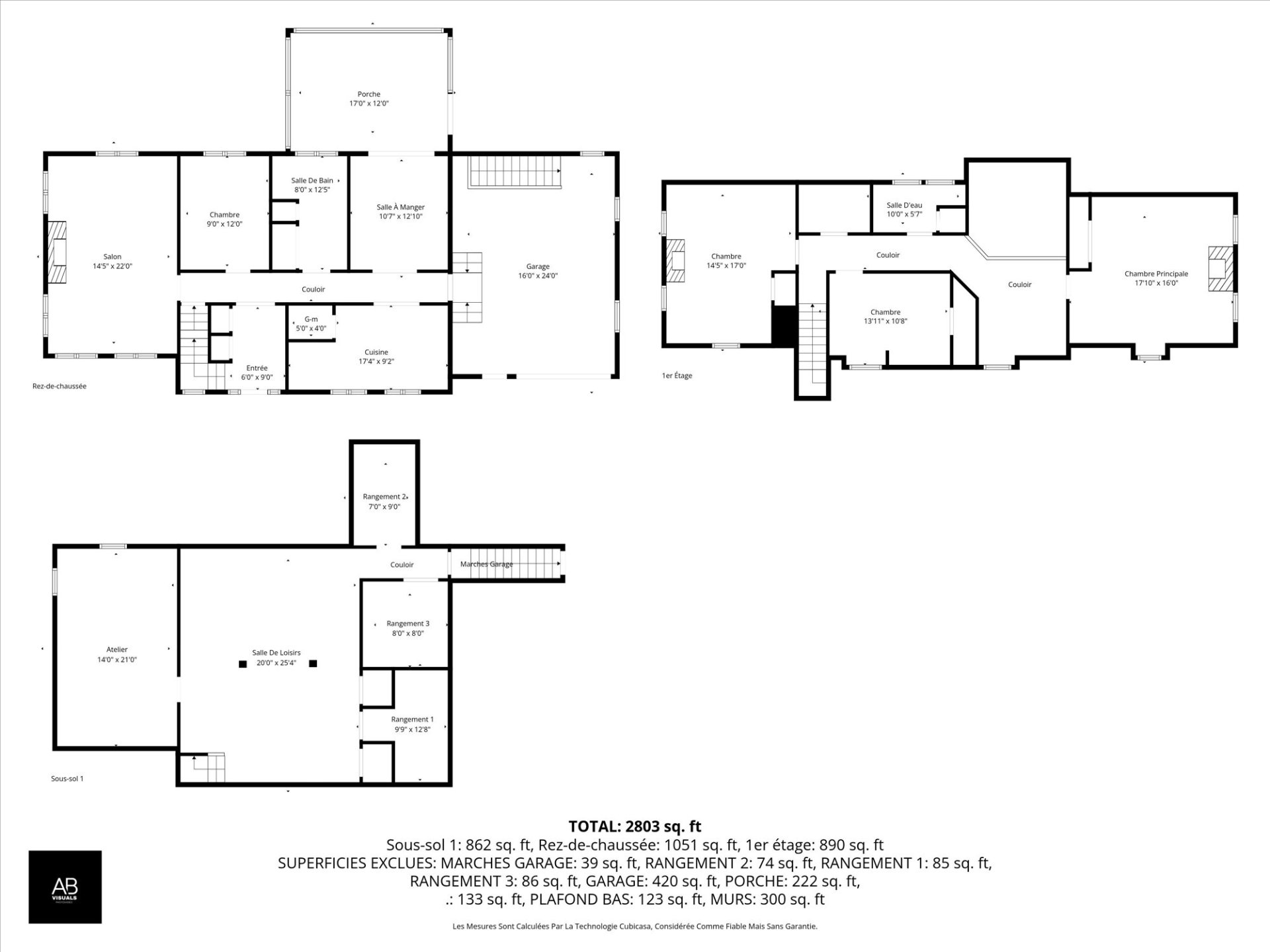
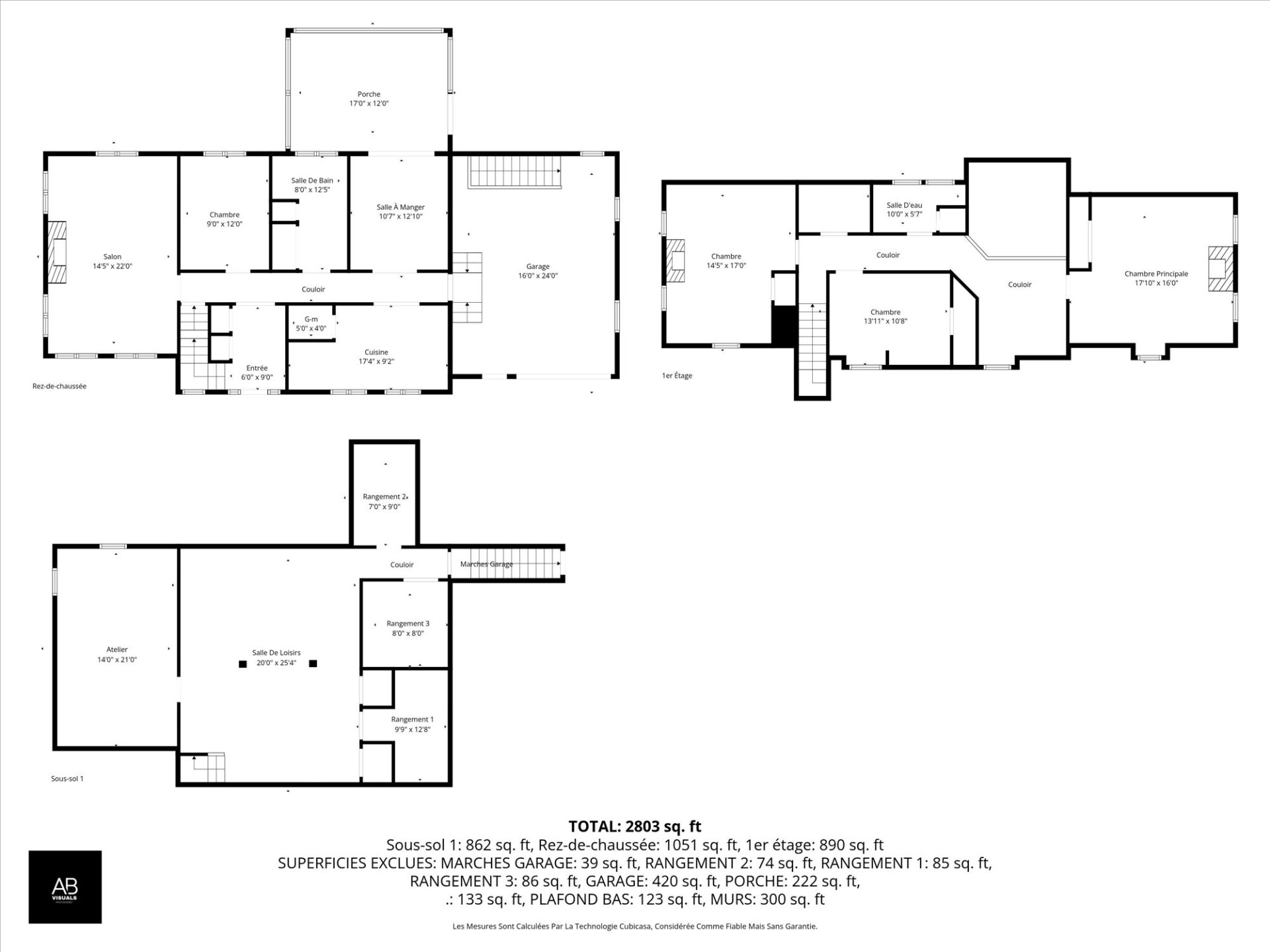
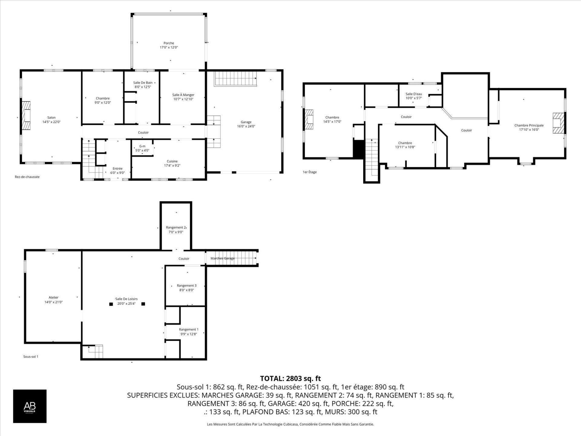
6x9 P
Céramique
17.4x9.2 P
Céramique
5x4 P
Parqueterie
10.7x12.10 P
Bois
8x12.5 P
Céramique
9x12 P
Bois
14.5x22 P
Bois
17.10x16 P
Tapis
13.11x10.8 P
Parqueterie
14.5x17 P
Bois
10x5.7 P
Céramique
20x25.4 P
Béton
14x21 P
Béton
7x9 P
Béton
8x8 P
Béton
9.9x12.8 P
Béton
VISITE LIBRE DIMANCHE LE 15 MARS ENTRE 14 ET 16H. Située dans le prisé Domaine des Patriarches à Prévost, cette chaleureuse propriété au cachet champêtre saura vous séduire dès le premier regard. Soigneusement entretenue par son seul et unique propriétaire, elle témoigne d'un souci constant du détail et d'un entretien impeccable au fil des années.
Érigée sur un vaste terrain intime de 22 750 pi², bordé d'arbres matures, elle offre tranquillité et qualité de vie dans un environnement recherché. De plus, une nouvelle installation septique Ecoflo a été installée en 2025.
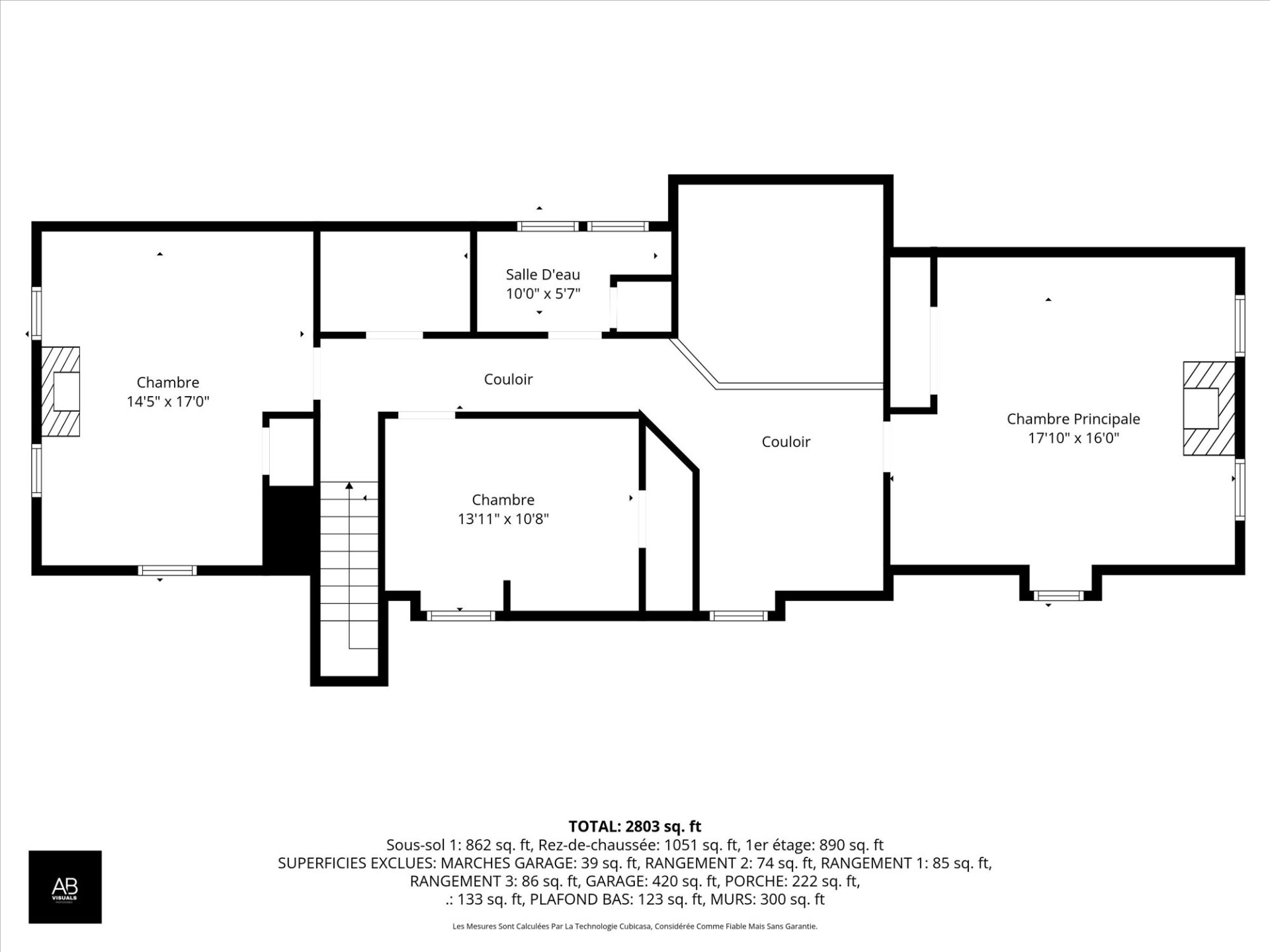
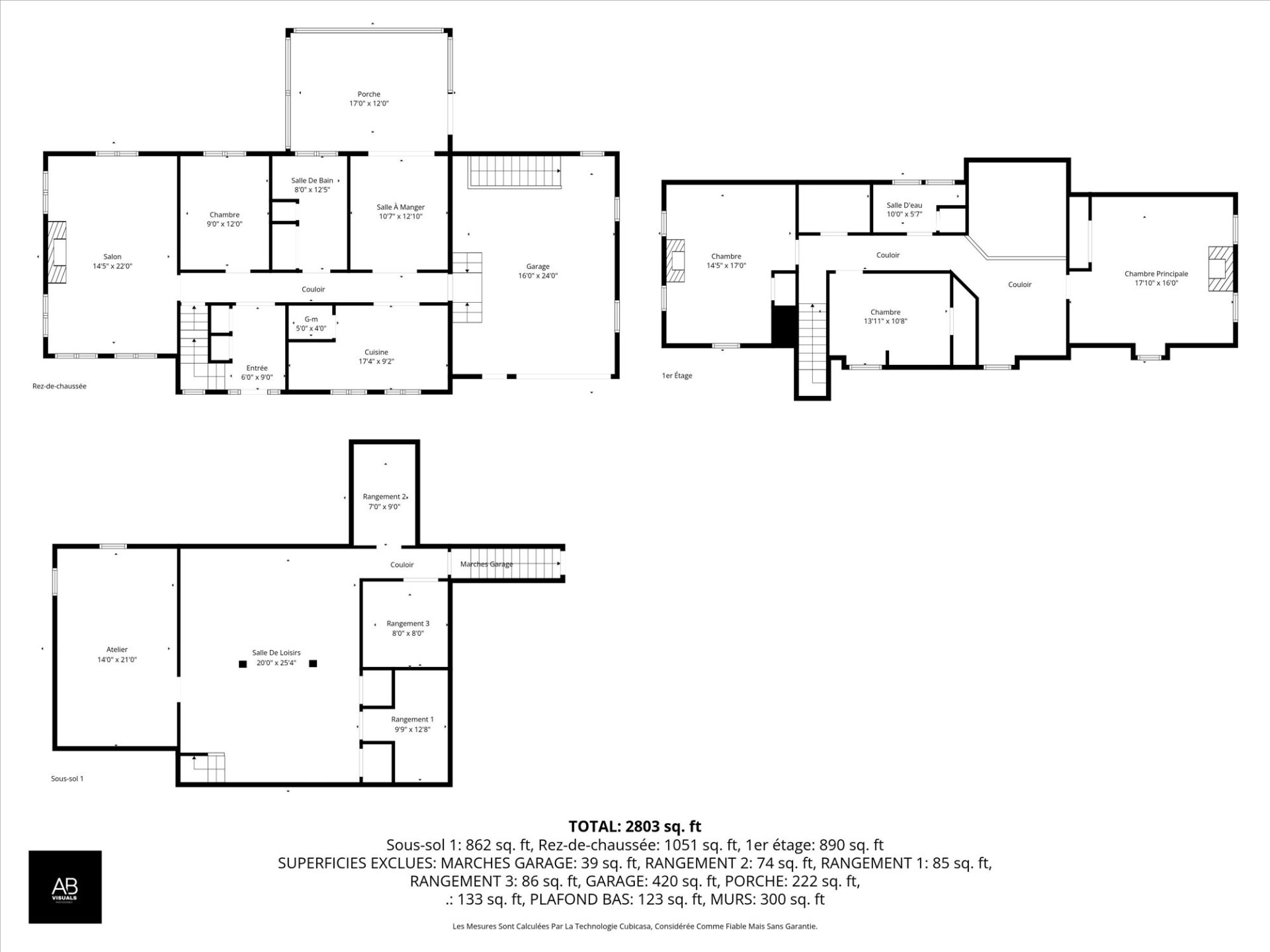
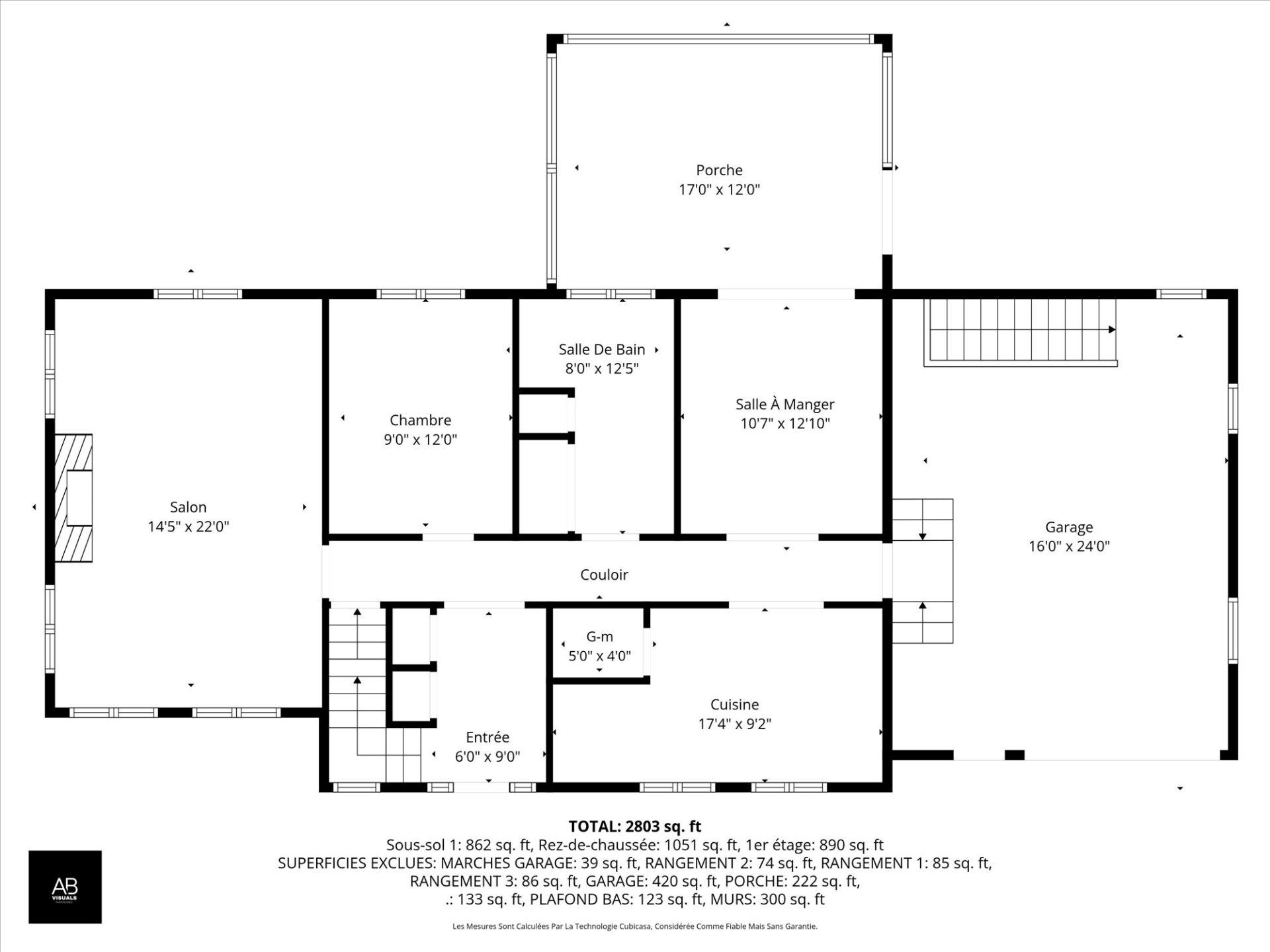
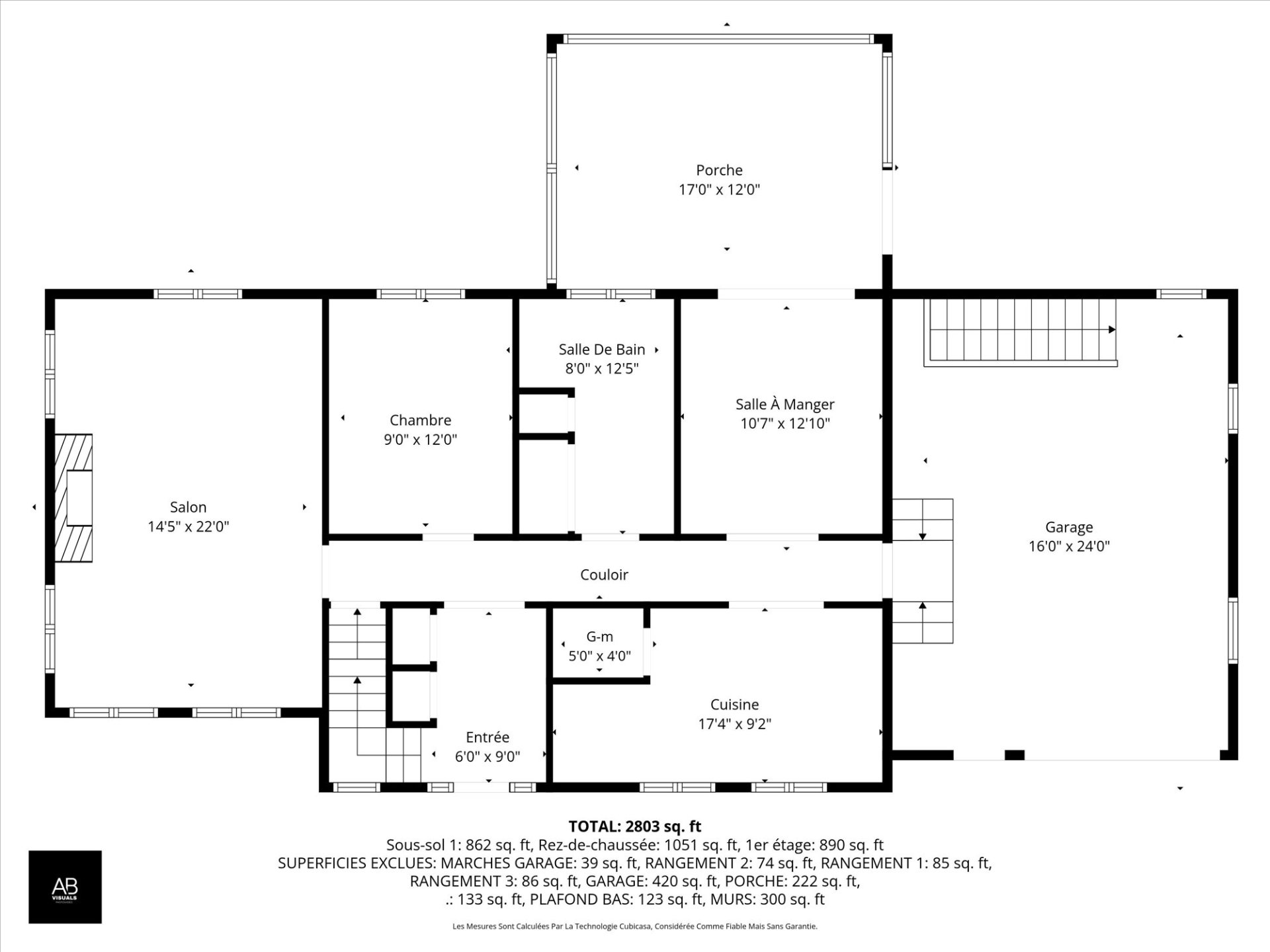
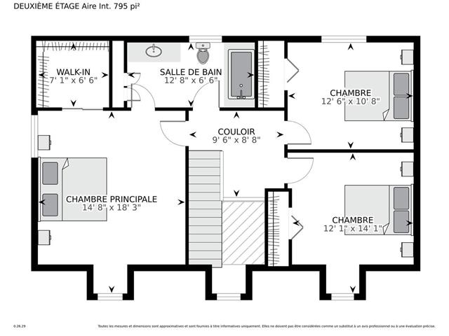
À l'étage, vous trouverez 3 chambres confortables. Le rez-de-chaussée propose un bureau pouvant servir de 4e chambre selon vos besoins -- idéal pour le télétravail ou une famille grandissante, un grand salon pour recevoir amis et famille, ainsi qu'un patio en béton recouvert pour profiter de moment à l'extérieur. La propriété dispose aussi de 2 salles de bain complètes. Deux foyers au bois ajoutent une ambiance conviviale et chaleureuse aux espaces de vie.
Le sous-sol, vaste et polyvalent, peut être aménagé selon vos projets : salle familiale, gym, atelier ou espace de rangement supplémentaire.
Un garage chauffé complète l'ensemble, parfait pour affronter nos hivers québécois en tout confort.
À proximité de tous les services, des axes routiers et du parc linéaire le p'tit train du nord. Une occasion rare dans un secteur recherché de Prévost. Un parfait équilibre entre nature, espace et fonctionnalité.
Style de vie
Propriétés suggérées
Plus c'est vu, plus vite c'est vendu !
Activi-T
Vues sur internet : 1 670
Visibili-T
Vue par plus d'un million d'acheteurs potentiels chaque mois, votre propriété est affichée GRATUITEMENT sur plus de 100 sites nationaux et internationaux.
Propriétés suggérées





















































