Maison à paliers multiples à Terrebonne (Terrebonne)
2363, Av. du Lac

395 000 $
Description
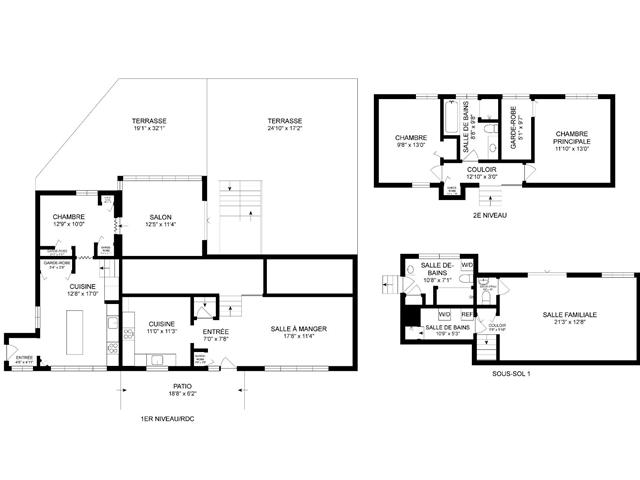
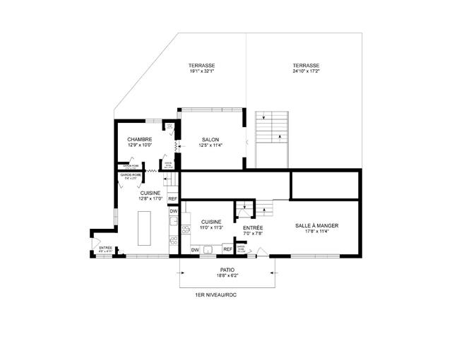
Havre du lac. Propriété chaleureuse près du cegep et de la cité des sports. Cette maison style champêtre avec deux chambres au rdc et walk-in dans la chambre des maîtres. Véranda spacieuse avec 2e porte d'entrée . Sous-sol avec salle familiale et poêle au bois . Atelier et rangement. Système d'irrigation pour la pelouse sur le terrain. Belle haie de cèdre qui garde votre espace privé. Plusieurs rénovations au fil des ans. Venez-nous visiter. Près de la cité du sport. Transport en commun. Maison style vintage. Ouvrir votre promesse d'achat 48h à la demande du vendeur.
Points saillants
27.2x7.2 P
Plywood
11.4x9.2 P
Plancher flottant
7.3x12.8 P
Plancher flottant
19.8x8.3 P
Plancher flottant
7.6x5.11 P
Tapis
11.4x7.10 P
Plancher flottant
15.1x8.11 P
Plancher flottant
16.9x13.5 P
Plywood
14x8.8 P
Béton
Superbe propriété à paliers multiples, offrant un cadre de vie chaleureux et convivial. Située sur un magnifique terrain paysager bordé d'arbres matures, cette maison se distingue par son charme naturel et son aménagement bien pensé. Le stationnement peut accueillir jusqu'à 4 véhicules, idéal pour les petite famille ou couple . Près du lac Pincourt.
À l'intérieur, vous serez séduit par l'aire ouverte regroupant la cuisine et la salle à manger, agrémentée d'un plafond cathédrale qui amplifie la luminosité et l'espace. Le sous-sol propose une ambiance des plus agréables grâce à un poêle à combustion lente, parfait pour les soirées d'hiver.
Localisation de choix : à proximité du sentier TransTerrebonne, des services, et à quelques minutes de l'autoroute 640 pour un accès rapide.
Une visite vous charmera à coup sûr ! Occupation rapide possible.
Le vendeur demande que toute offre d'achat soit accompagnée de la préqualification de l'acheteur. INSTALLATION DU CHAUFFE EAU 2025. Le chauffe-eau est loué avec hydro-solution, contrat transférable au futur propriétaire de 12$ / mois.
Style de vie
Propriétés suggérées
Plus c'est vu, plus vite c'est vendu !
Activi-T
Vues sur internet : 7 774
Visibili-T
Vue par plus d'un million d'acheteurs potentiels chaque mois, votre propriété est affichée GRATUITEMENT sur plus de 100 sites nationaux et internationaux.
Propriétés suggérées



































