Maison à étages à Sept-Îles
154, Av. Franquelin

515 000 $
Description
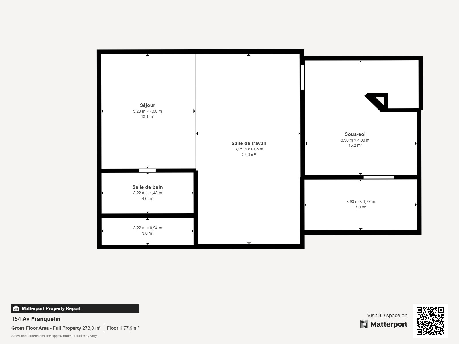
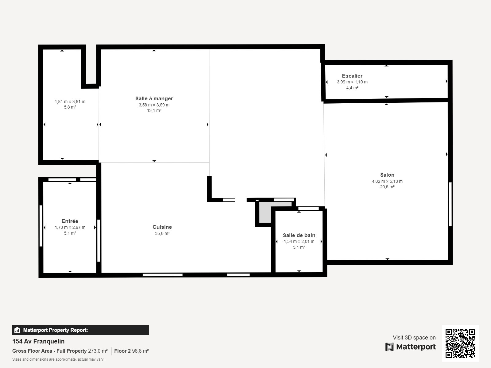
Spacieuse, lumineuse et pleine de possibilités ! Le charme de cette propriété réside dans ses vastes pièces lumineuses, offrant une atmosphère chaleureuse et accueillante. Chaque pièce est une invitation à la détente, tout en laissant libre cours à vos projets. Besoin d'un espace pour vos loisirs ? Le sous-sol se prête parfaitement à un atelier de couture ou de bricolage, tandis que le garage peut aisément devenir un atelier de menuiserie. Vous avez une grande famille ? Nous avons la grande maison idéale pour vous ! Découvrez-la dès maintenant grâce à la visite 3D.
Points saillants
9.7x5.7 P
Céramique
12.0x6.0 P
Bois
10.6x18.1 P
Céramique
17.9x12.10 P
Bois
20.10x12.10 P
Bois
15.11x11.0 P
Bois
7.2x4.10 P
Céramique
17.8x9.0 P
Parqueterie
6x9.0 P
Céramique
9.3x15.8 P
Plancher flottant
9.5x15.10 P
Plancher flottant
20.10x15.7 P
Bois
13.1x12.9 P
Céramique
26.0x12.0 P
Céramique
5.10x12.10 P
Céramique
10.9x13.3 P
Céramique
4.11x10.7 P
Céramique
3.0x10.6 P
Béton
AMÉLIORATIONS: Le gros des travaux ont eu lieu lors de l'agrandissement en 2007-2008: Agrandissement par l'arrière sous-sol (fondation bloc avec membrane) rez-de-chaussée et étage. Les combles ont été enlevés. Deux beams d'acier ont été ajoutés pour la portance entre le salon et la salle à manger; La cuisine a été refaite au complet en 2020; Le hall d'entré et le un boudoir sont sur un vide sanitaire accès par le dessous de la galerie côté stationnement;
Il y a un accès du côté gauche de la propriété pour un stationnement. Le garage de 12 x 24 a été agrandi par l'arrière 16 x 24 en 2002 entièrement isolé et électrifié;
Notez que les fenêtres du sous sol n'ouvre pas.
Le ou les poêles, foyers, appareils à combustion et la ou les cheminées sont vendus sans garantie quant à leur conformité à la réglementation applicable ainsi qu'aux exigences imposées par les compagnies d'assurances.
Style de vie
Propriétés suggérées
Plus c'est vu, plus vite c'est vendu !
Activi-T
Vues sur internet : 12 126
Visibili-T
Vue par plus d'un million d'acheteurs potentiels chaque mois, votre propriété est affichée GRATUITEMENT sur plus de 100 sites nationaux et internationaux.
Propriétés suggérées
























































