Maison à étages à Sainte-Martine
198, Ch. du Grand-Marais

775 000 $
Description
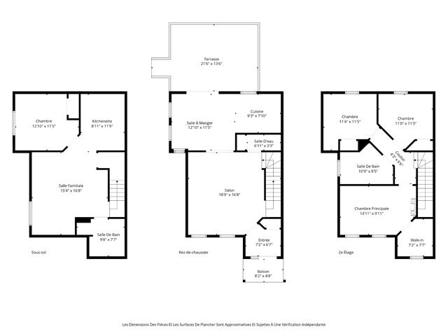
Vaste propriété sise au coeur de la campagne de Ste-Martine. Érigée sur un terrain de plus de 55 000 pc, cette propriété vous offre de multiples possibilités. Vous trouverez dans la maison, une cuisine fonctionnelle et sa salle à manger, un grand salon avec son foyer au bois, une spacieuse salle familiale ainsi que 4 chambres à coucher. Une terrasse complètement couverte vous permettra de passer d'agréables moment durant la saison chaude. En hiver, vous apprécierez le garage chauffé et attaché à la maison. Une génératrice au propane prend automatiquement le relais pour alimenter les circuits électriques en cas de panne de courant.
Points saillants
6.8x5.0 P
Céramique
22.1x24.4 P
Plancher flottant
8.7x6.5 P
Plancher flottant
13.8x14.6 P
Céramique
9.0x14.2 P
Plancher flottant
10.7x9.10 P
Plancher flottant
10.8x4.11 P
Céramique
19.0x23.8 P
Plancher flottant
14.4x22.6 P
Plancher flottant
5.3x10.7 P
Céramique
9.0x11.7 P
Plancher flottant
9.0x13.10 P
Plancher flottant
13.6x20.6 P
Céramique
14.9x24.8 P
Céramique
9.0x24.8 P
Céramique
9.10x6.1 P
Céramique
6.1x8.1 P
Céramique
Commodités de la maison : Système de chauffage / climatisation : Thermo-pompe centrale avec fournaise électrique. La fournaise permet aussi de chauffer aux granules. Système d'échangeur d'air. Garage chauffé au propane. Génératrice au propane : déclenchement automatique lorsque panne de courant. Tous les circuit sont alimentés. Système d'alarme et d'incendie relié à une centrale. Système de caméra autour de la propriété. Bâtiment/entrepôt à l'arrière de la cour de plus de 1 700 pc.
Le ou les poêles, foyers, appareils à combustion et la ou les cheminées sont vendus sans garantie quant à leur conformité à la réglementation applicable ainsi qu'aux exigences imposées par les compagnies d'assurances.
Style de vie
Propriétés suggérées
Plus c'est vu, plus vite c'est vendu !
Activi-T
Vues sur internet : 10 635
Visibili-T
Vue par plus d'un million d'acheteurs potentiels chaque mois, votre propriété est affichée GRATUITEMENT sur plus de 100 sites nationaux et internationaux.
Propriétés suggérées

















































