Location d'espace commercial/Bureau à Saint-Pie
295, Boul. Daniel-Johnson

2 175 $ /M +TPS/TVQ
Description
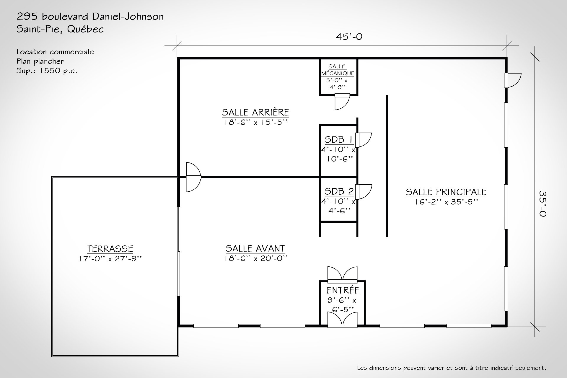
VOTRE COMMERCE ICI! MAINTENANT. Voici une solution idéale pour exploiter votre commerce dans la municipalité de St-Pie! Situé sur le bord de la route 235, ce local commercial de 1550 p.c. est idéal pour les cabinets de professionnels, place d'affaires ou petit commerce de proximité. L'accessibilité pour vos clients est simple avec ses 12 stationnements et ses 2 portes d'accès. Les lieux sont divisés en 3 espaces distincts, avec 2 salles d'eau, il comporte beaucoup de fenestrations et une terrasse privée. Une clause de renouvellement pour les années subséquentes peut être ajoutée. Informez-vous dès maintenant!
Points saillants
Style de vie
Propriétés suggérées
Plus c'est vu, plus vite c'est vendu !
Activi-T
Vues sur internet : 1 696
Visibili-T
Vue par plus d'un million d'acheteurs potentiels chaque mois, votre propriété est affichée GRATUITEMENT sur plus de 100 sites nationaux et internationaux.
Propriétés suggérées

























