Maison à étages à Pincourt
369, Boul. de l'Île

874 900 $
Description
INTERGÉNÉRATION Belle maison à étage avec 4 chambres à coucher, 3 à l'étage dont la principale avec walk-in et accès direct à la SDB, la chambre du logement est au RDC. Grande cuisine avec îlot, chauffage et A/C central, salle d'eau, sous-sol aménagé avec une salle familiale et salle de lavage(chute à linge). Pour le logement le salon, le coin repas et la chambre son au RDC offrant beaucoup de luminosité. Le tout sur un beau terrain de 10466 pc avec piscine creusée, patio en pavé, cabanon et une allée de stationnement en pavés avec borne de recharge. Situé à 5 minutes de l'autoroute 20, du train AMT et de toutes les commodités. VENEZ LA VOIR!
Points saillants
11.11x11.3 P
Bois
6.8x6.3 P
Céramique
11.11x9.8 P
Bois
11x13.10 P
Bois
11.10x11.6 P
Céramique
14.0x10.11 P
Bois
14.3x11.3 P
Plancher flottant
14.5x11.10 P
Céramique
11.10x9.9 P
Céramique
11.1x9.2 P
Céramique
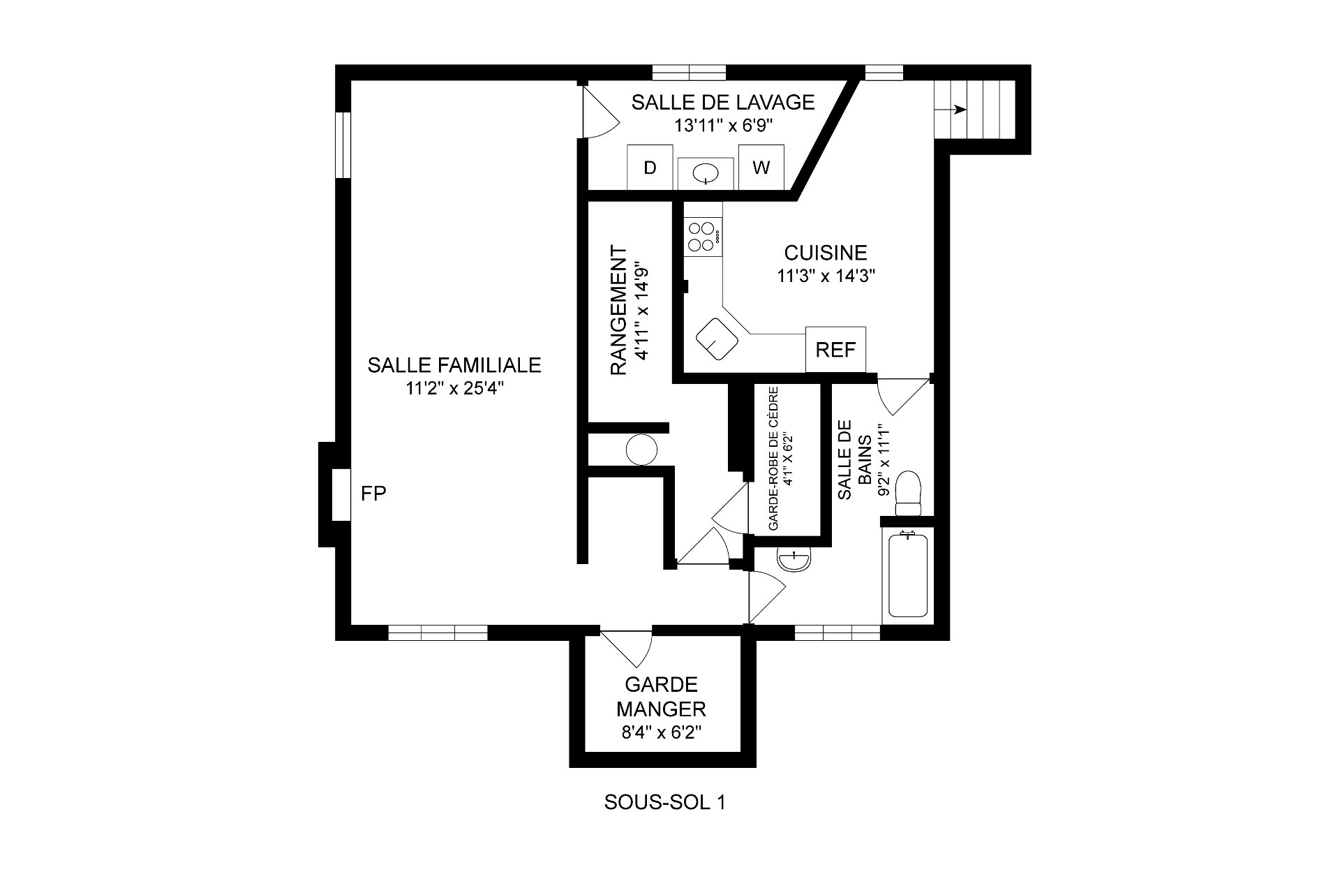
8.4x6.2 P
Béton
5.10x4.9 P
Céramique
14.4x13.4 P
Bois
11.4x5.9 P
Bois
12.8x8.3 P
Céramique
11.3x10.7 P
Bois
11x10.6 P
Bois
25.4x11.2 P
Plancher flottant
13.11x6.9 P
Tuiles
14.9x4.11 P
Tuiles
En 2008 ajout de la piscine creusée et de la clôture En 2017 ajout du chauffe piscine, foyer extérieur en pierre, remplacement et ajout pavé-unis En 2020 réfection de la toiture, installation borne de recharge électrique En 2022 retrait de la fournaise à l'huile et de son réservoir, ajout de la fournaise électrique, thermopompe et échangeur d'air. En 2024 ajout d'isolation cellulose soufflée dans les deux entre-toits.
Style de vie
Propriétés suggérées
Plus c'est vu, plus vite c'est vendu !
Activi-T
Vues sur internet : 7 615
Visibili-T
Vue par plus d'un million d'acheteurs potentiels chaque mois, votre propriété est affichée GRATUITEMENT sur plus de 100 sites nationaux et internationaux.
Propriétés suggérées



















































