Maison à un étage et demi à L'Île-Perrot
280, Mtée Sagala

449 900 $
Description
Jolie maison, située dans un croissant, vous offrant 3 chambres à coucher dont la principale au rez-de-chaussée et les 2 autres à l'étage, thermopompe et fournaise électrique centrale 2024, 2 salles de bain, sous-sol partiellement aménager avec une entrée extérieur. Le tout sur un terrain de 4400 pc avec une cour. Localisée à 3 minutes de l'autoroute 20 et des commodités. VENEZ LA VOIR!
Points saillants
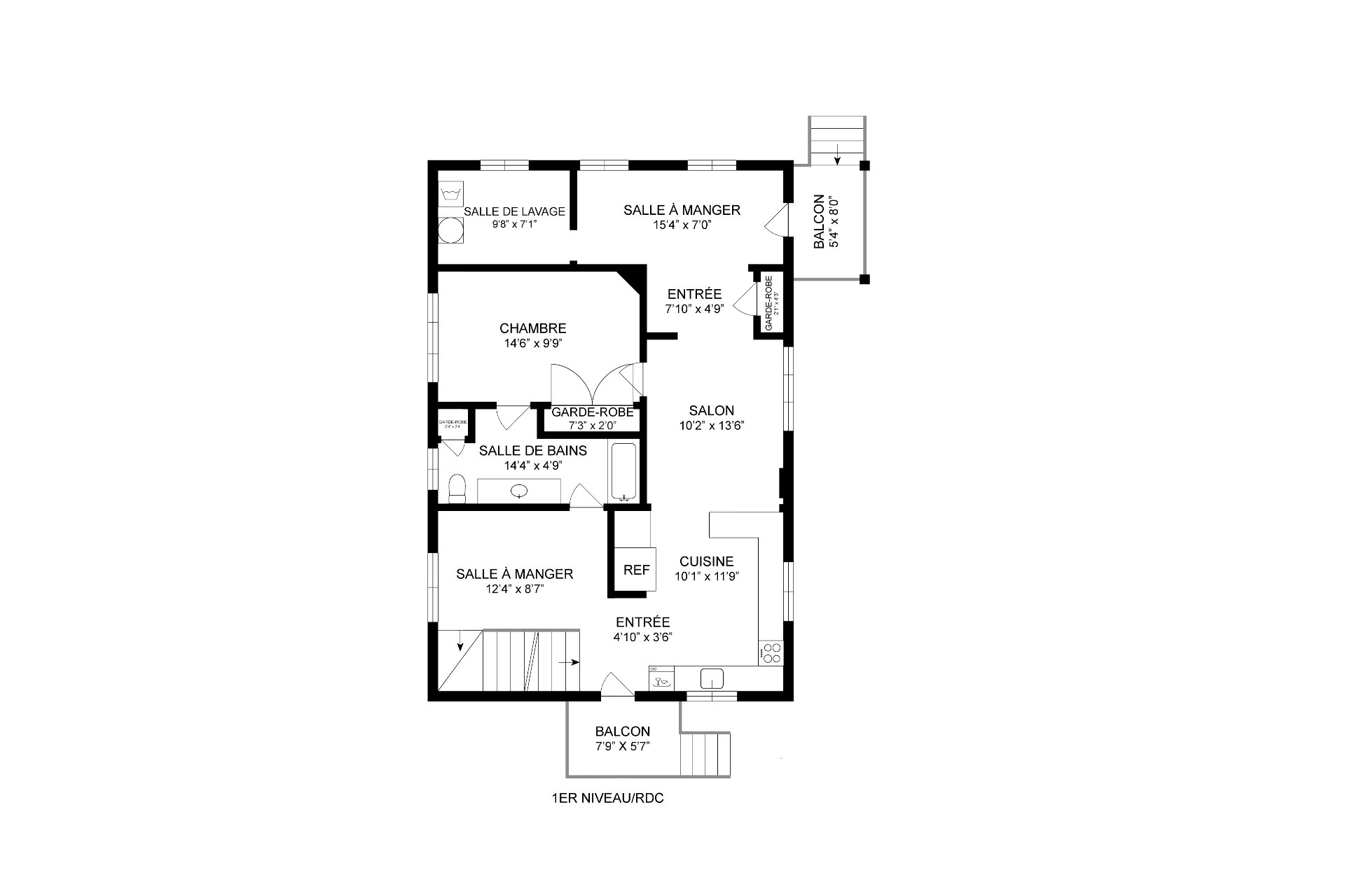
4.10x3.6 P
Céramique
10.1x11.9 P
Céramique
10.2x13.6 P
Céramique
7.10x4.9 P
Céramique
15.4x7.0 P
Céramique
9.8x7.1 P
Céramique
14.6x9.9 P
Bois
14.7x4.9 P
Céramique
12.4x8.7 P
Céramique
9.6x15.1 P
Plancher flottant
16.8x10.9 P
Tuiles
11.0x9.10 P
Béton
24.8x15.7 P
Béton
5.4x3.10 P
Béton
9.11x8.7 P
Céramique
24.9x7.9 P
Béton
En zone inondable 20-100 ans(rien eu durant les inondations de 2017 , 2019 et 2023). Toute promesse d'achat devra être accompagnée d'une préapprobation hypothécaire ou d'une preuve de fonds valide.
Style de vie
Propriétés suggérées
Plus c'est vu, plus vite c'est vendu !
Activi-T
Vues sur internet : 5 341
Visibili-T
Vue par plus d'un million d'acheteurs potentiels chaque mois, votre propriété est affichée GRATUITEMENT sur plus de 100 sites nationaux et internationaux.
Propriétés suggérées









































