Terrain à Sainte-Anne-de-la-Pérade
Rue Rivard

160 000 $ +TPS/TVQ
Description
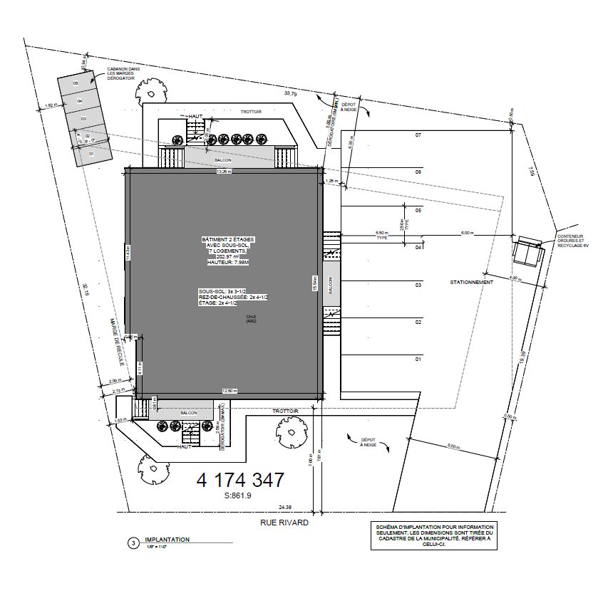
Opportunité rare de développement secteur Sainte-Anne-de-la-Pérade. Terrain offrant un projet multifamilial de (7) logements AVEC services (aqueducs et égouts). Plans préliminaires et résolution pour dérogations mineures approuvés de la municipalité. Le concept propose un immeuble de 2 étages avec sous-sol, comprenant 3 logements de type 3½ au sous-sol (environ 634 à 652 pi²) et 4 logements de type 4½ au rez-de-chaussée et à l'étage (environ 941 à 1 029 pi²). Secteur résidentiel calme, à proximité des services et avec accès rapide à Trois-Rivières et aux municipalités environnantes. Idéal pour développeur ou entrepreneur.
Points saillants
Le plan d'architecture péliminaire privilégie une volumétrie sobre et efficace, avec une trame répétitive facilitant la construction, le contrôle des coûts et l'exécution du chantier. Les plans démontrent une disposition fonctionnelle des espaces, incluant aires ouvertes, cuisines avec îlot, rangements, balcons pour les unités hors-sol et une implantation réfléchie sur le terrain.
Situé dans un secteur résidentiel calme, le site bénéficie de la proximité des services essentiels de Sainte-Anne-de-la-Pérade (écoles, commerces, services municipaux, installations sportives) ainsi que d'un accès rapide aux axes routiers. La localisation permet de rejoindre facilement Trois-Rivières, principal pôle économique de la région, ainsi que les municipalités voisines telles que Batiscan, Champlain et Saint-Prosper-de-Champlain, offrant un bassin élargi d'emplois et de services.
Il s'agit d'un produit rare dans le marché local, particulièrement bien adapté à un projet de construction neuve, détention à long terme ou revente clé en main.
*L'ACHETEUR s'engage à retenir les services de Me Julie Boucher, notaire pour la transaction de vente. Au cas contraire, l'ACHETEUR s'engage à payer les frais relatifs aux recherches pour vérifications de paiements de taxes et autres vérifications de titre ainsi que tous frais lui pouvant être chargé pour la gestion des fonds en fidéicommis si applicable.
Style de vie
Propriétés suggérées
Plus c'est vu, plus vite c'est vendu !
Activi-T
Vues sur internet : 6 489
Visibili-T
Vue par plus d'un million d'acheteurs potentiels chaque mois, votre propriété est affichée GRATUITEMENT sur plus de 100 sites nationaux et internationaux.












