Bâtisse commerciale/Bureau à Saint-Jérôme
340-342, Rue Ouimet

374 900 $
Description
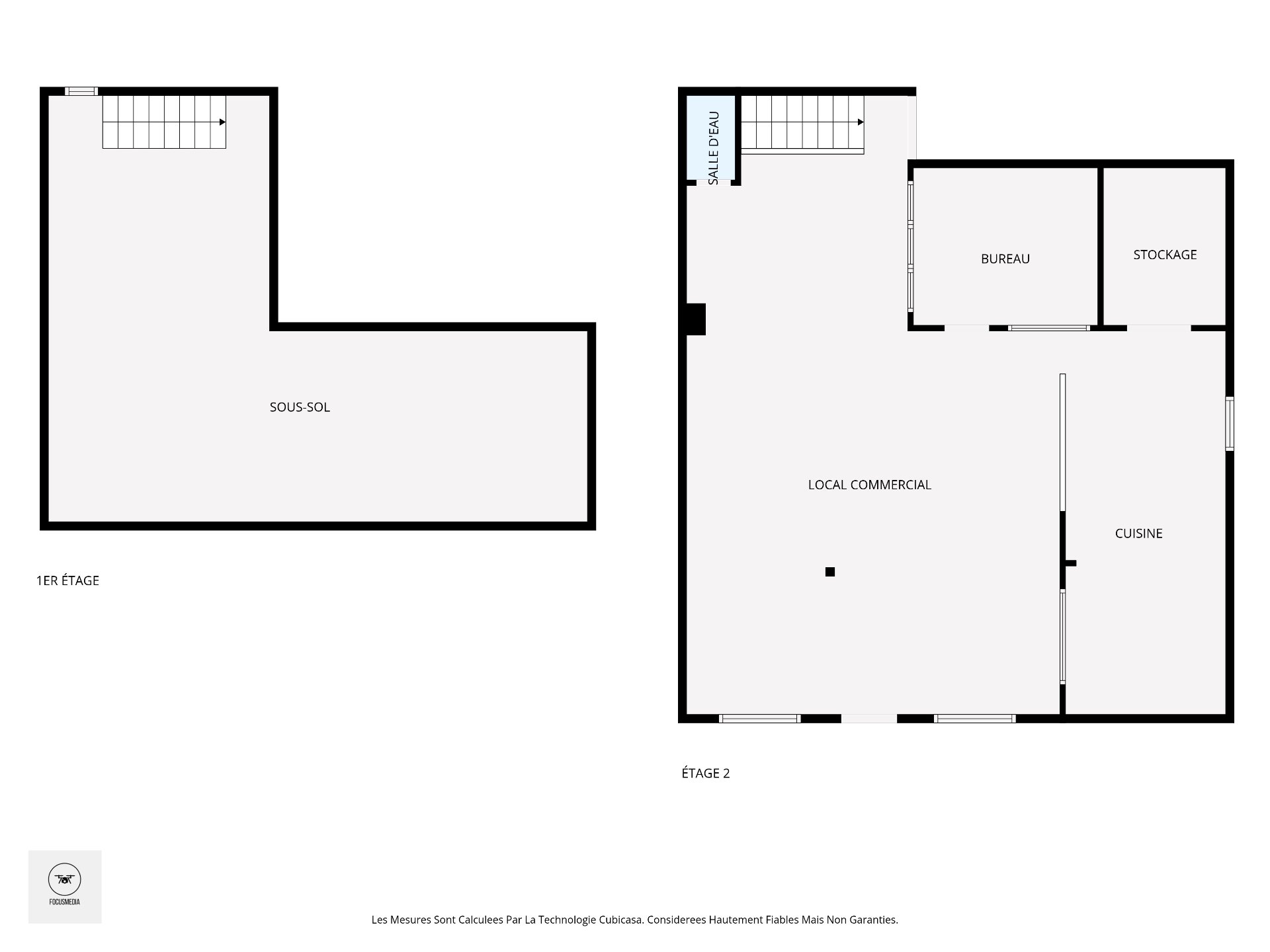
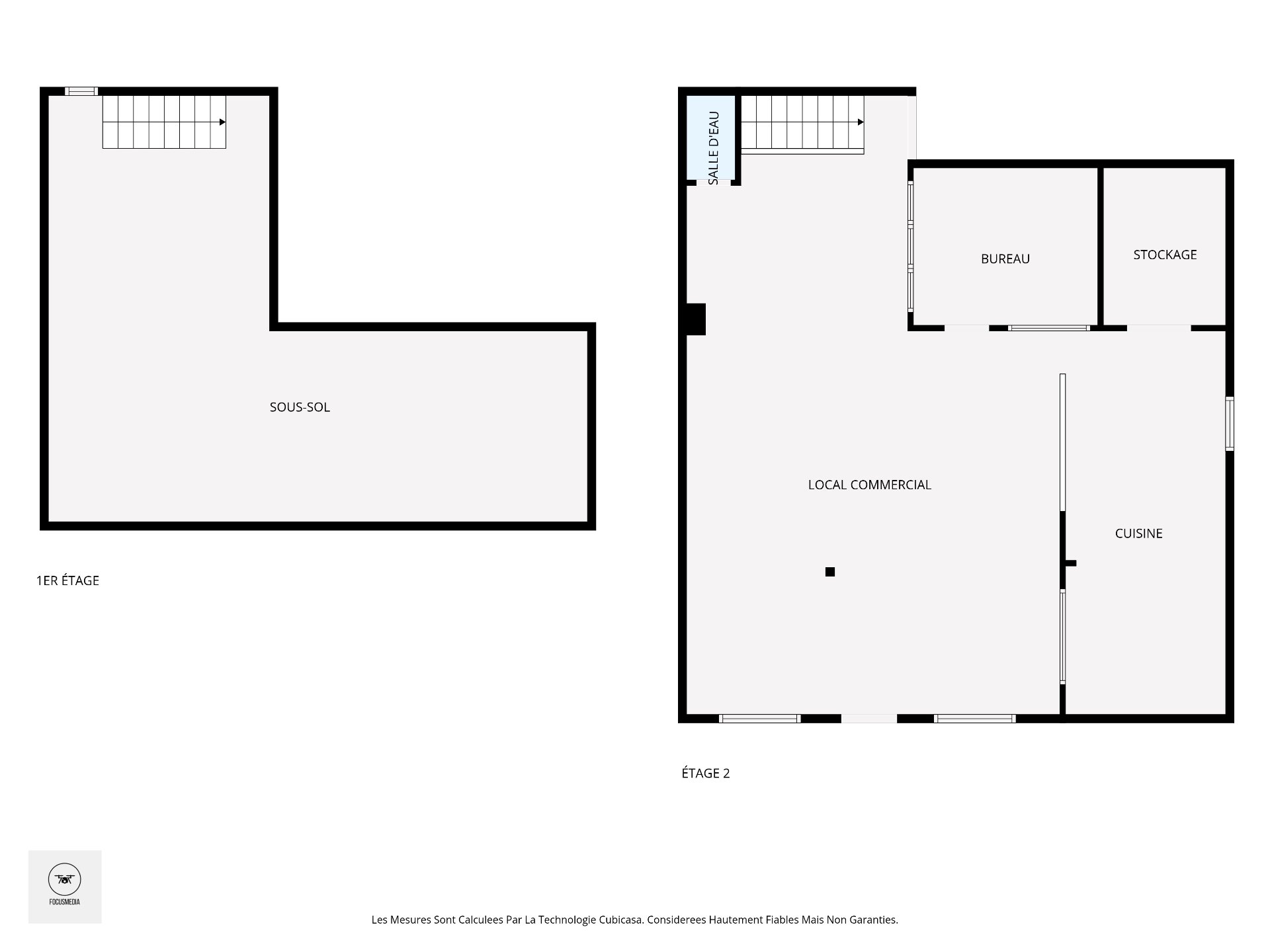
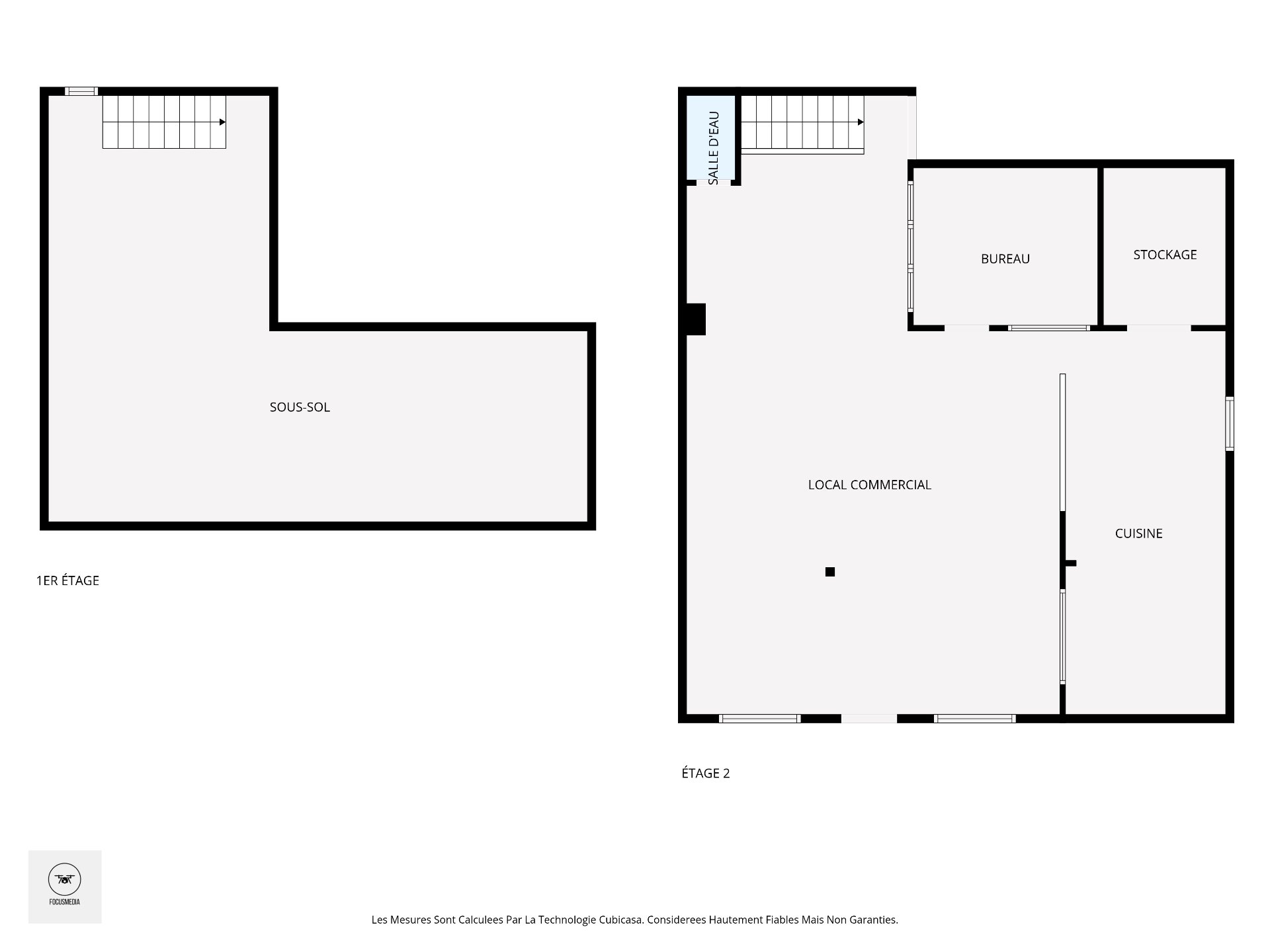
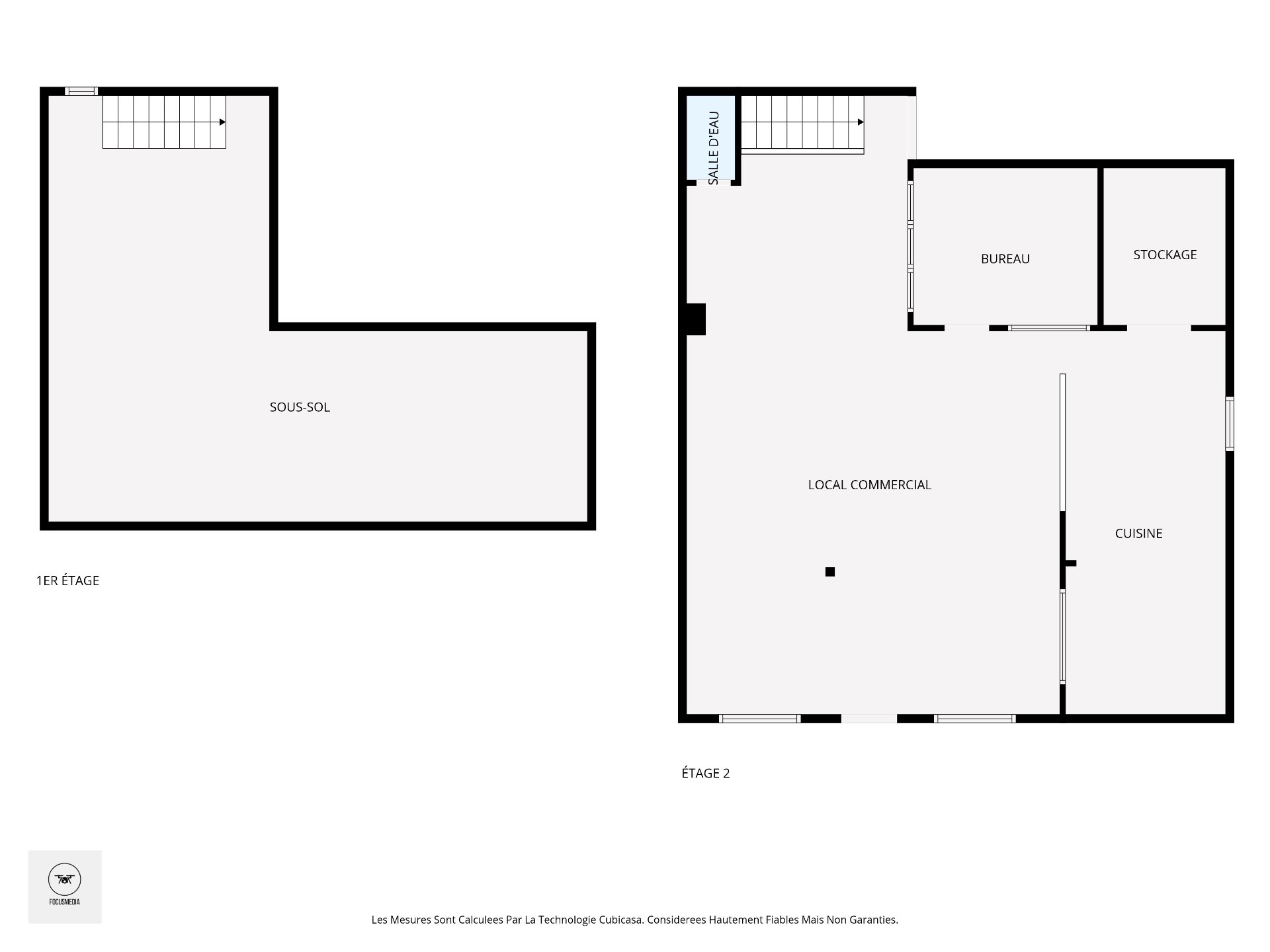
À vendre à Saint-Jérôme : Immeuble isolé semi-commercial de deux logements comprenant un local commercial et un logement résidentiel. Le local commercial, avec pignon sur rue et stationnement privé, bénéficie d'un emplacement stratégique au coeur de la ville. Il comprend une salle principale lumineuse, une salle d'eau, une chambre froide et un espace bureau. Le vaste sous-sol offre un excellent potentiel de rangement. Le logement à l'étage est présentement loué. Une belle occasion d'investissement à ne pas manquer.
Points saillants
À vendre à Saint-Jérôme : immeuble isolé semi-commercial comprenant deux unités distinctes soit un local commercial au rez-de-chaussée et un logement résidentiel à l'étage. Situé au coeur de la ville, cet immeuble bénéficie d'un emplacement stratégique avec pignon sur rue, assurant une bonne visibilité pour les activités commerciales. Un stationnement privé est également disponible, ce qui facilite l'accès pour la clientèle ou les occupants. Le local commercial est composé d'une salle principale de bonne dimension, lumineuse grâce à sa façade vitrée, offrant plusieurs possibilités d'aménagement selon les besoins. On y trouve aussi une salle d'eau fonctionnelle, une possibilité de chambre froide, ainsi qu'un espace bureau pouvant être fermé ou intégré à l'espace principal. Le sous-sol, accessible depuis le local, est vaste et offre un excellent potentiel pour le rangement, l'entreposage ou même l'aménagement d'un espace de travail complémentaire. Il est brut mais solide, avec une hauteur convenable et un accès pratique. À l'étage, le logement résidentiel est actuellement loué, ce qui représente un revenu locatif immédiat pour l'acheteur. L'immeuble dans son ensemble présente une structure solide, avec un potentiel intéressant pour un investisseur ou un commerçant souhaitant combiner lieu de travail et revenu locatif. Il convient à plusieurs types de commerces de proximité : voir grille d'usage. Des améliorations peuvent être envisagées, mais la base est saine et l'emplacement est un atout majeur. Que ce soit pour y établir votre entreprise ou pour bonifier votre portefeuille immobilier, cette propriété offre une belle opportunité dans un secteur actif de Saint-Jérôme.
Style de vie
Propriétés suggérées
Plus c'est vu, plus vite c'est vendu !
Activi-T
Vues sur internet : 4 011
Visibili-T
Vue par plus d'un million d'acheteurs potentiels chaque mois, votre propriété est affichée GRATUITEMENT sur plus de 100 sites nationaux et internationaux.
Propriétés suggérées


















