Maison à un étage et demi à Morin-Heights
139, Rue Beaulieu

449 000 $
Description
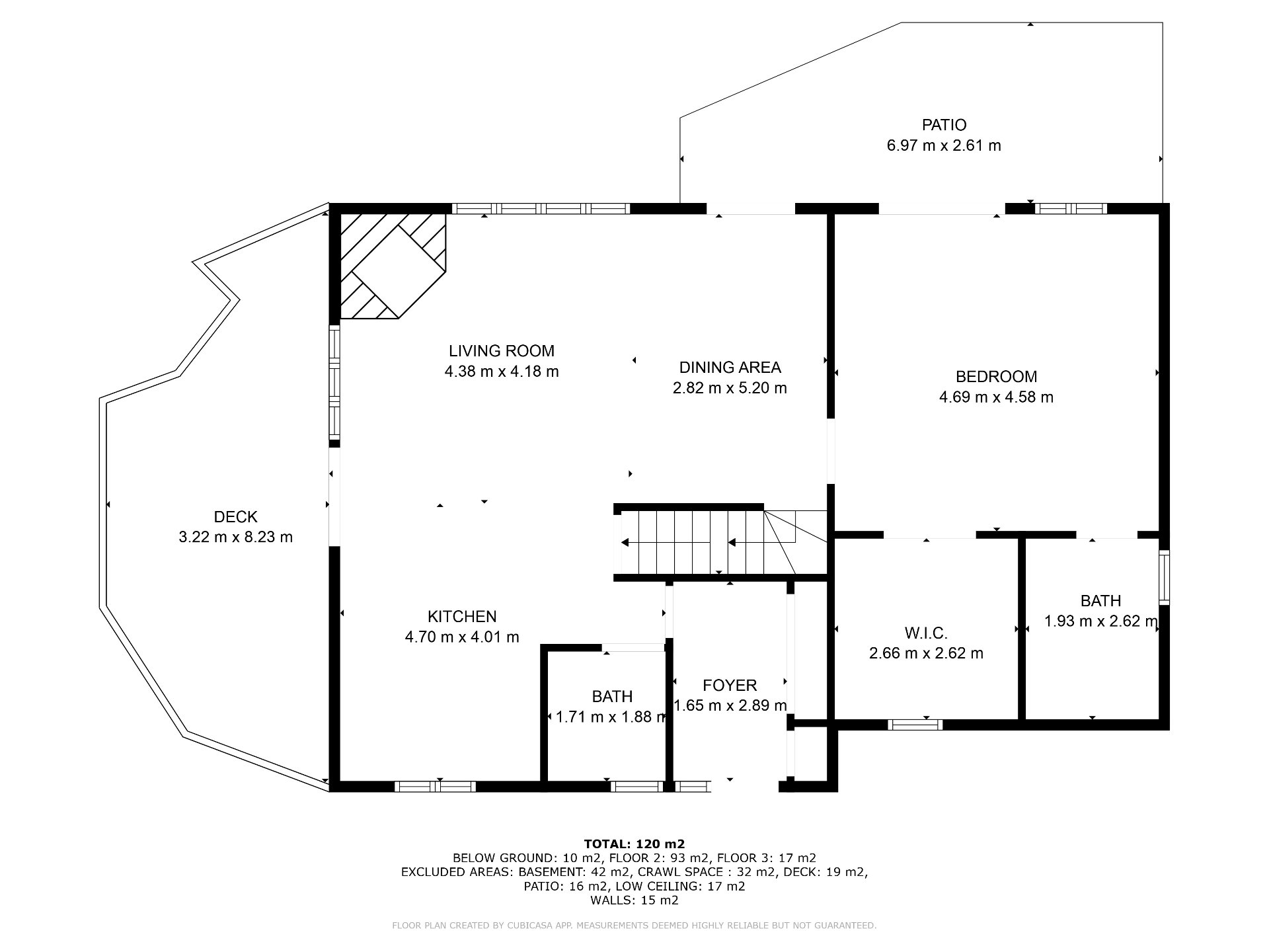
Charmante maison à Morin-Heights située à 5min du centre-ville de Saint-Sauveur et 10min des pentes de ski. Immense chambre des maîtres avec plafond cathédrale, salle de bain attenante et walk-in. Une mezzanine dortoir idéale pour les enfants ou les invités. Rangement au sous-sol. Foyer de bois parfait pour des soirées d'après-ski inoubliables. Le terrain à l'arrière est vaste et verdoyant. Toit en tôle assurant une durabilité optimale. Nouvelle clôture avec porte qui ouvre sur l'entrée et la cour. Libre dès maintenant, cette propriété vous fera profiter de la vie en montagne tout en étant à deux pas de tous les services. Faites vite!
Points saillants
9.4x5.4 P
6x5.6 P
13.2x11.4 P
15.10x13.9 P
14x9.10 P
15x15 P
8x8.5 P
8.3x6 P
22.5x15.6 P
23x15 P
26x21.10 P
8x8 P
Style de vie
Propriétés suggérées
Plus c'est vu, plus vite c'est vendu !
Activi-T
Vues sur internet : 10 570
Visibili-T
Vue par plus d'un million d'acheteurs potentiels chaque mois, votre propriété est affichée GRATUITEMENT sur plus de 100 sites nationaux et internationaux.
Propriétés suggérées



















































