Appartement à Mont-Tremblant
260, Rue du Mont-Plaisant, 6

275 000 $ +TPS/TVQ
Description
Mont-Tremblant! Ville par excellence pour pratiquer plusieurs activités en toutes saisons; escalade, vélo, vélo de montagne, golf, activités nautiques, ski de fond, ski alpin, moto-neige etc.
Points saillants
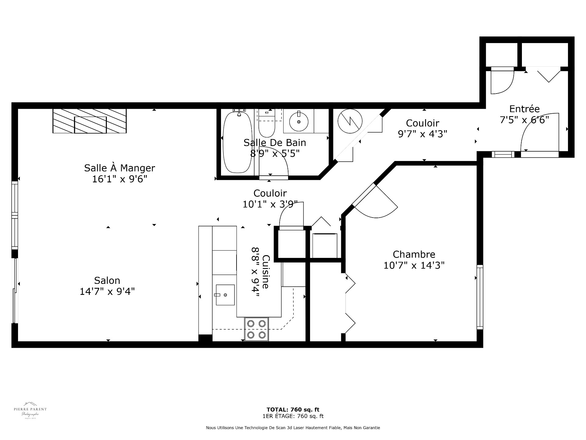
7.5x6.6 P
Céramique
10.7x14.3 P
Tapis
8.8x9.4 P
Céramique
16.1x9.6 P
Tapis
14.7x9.4 P
Tapis
8.9x5.5 P
Céramique
Cap Tremblant
Condo une chambre avec sofa-lit au salon.
Terrasse complètement aménagée avec une vue splendide sur Mont-Tremblant.
Secteur de villégiature très intéressant. Plusieurs espaces communs avec piscines, spa, sauna, tennis disponibles en saison estivale.
Possibilité d'habiter les lieux ou de faire partie du programme de location avec Cap Tremblant, vous procurant ainsi un revenu.
Le prix total inclut la TPS, la TVQ et les remboursements si l'acheteur se qualifie. Le remboursement de taxes pour les habitations neuves ou ayant fait l'objet de rénovations majeures n'est accessible qu'au particulier, à certaines conditions.
Style de vie
Propriétés suggérées
Plus c'est vu, plus vite c'est vendu !
Activi-T
Vues sur internet : 12 369
Visibili-T
Vue par plus d'un million d'acheteurs potentiels chaque mois, votre propriété est affichée GRATUITEMENT sur plus de 100 sites nationaux et internationaux.
Propriétés suggérées




















