Maison à étages à Deux-Montagnes
1294, Rue Ovila-Forget
49


539 000 $
4|
1
Description
Maison lumineuse avec plafonds de 9, planchers de bois franc . Cour arrière intime sans voisins avec accès à un ruisseau ou on peu apercevoir des canard, piscine et aménagement paysager soigné. Située dans une rue calme, à 5 minutes à pied du REM la station de Deux-Montagnes
Points saillants
Année de construction
1994
Piscine
Chauffée, Hors-terre
Équipement disponible
Climatiseur mural
Sous-sol
6 pieds et plus
Toiture
Bardeaux d'asphalte
Zonage
Résidentiel
Mode de chauffage
Plinthes électriques
Foyers-poêles
Foyer au bois
Piscine
Chauffée, Hors-terre
Système d'égouts
Municipal
Salle de bains/salle d'eau
Douche indépendante
Stationnement (total)
Extérieur
Énergie pour le chauffage
Électricité
Fenêtres
PVC
Particularités
Aucun voisin à l'arrière, Boisé
Approvisionnement en eau
Municipalité
Fondation
Béton coulé
Inclus
Rideaux, stores, miroirs Lave-vaisselle Petit bureau, tablette d'enfant en coin Luminaires Armoire blanche de la salle d'eau Classeur noir dans l'atelier
Exclu
Laveuse,Sécheuse, Cellier Armoires pax dans les chambres Haut-Parleurs extérieures Four et réfrigérateur Petit réfrigérateur dans le sous-sol
Salon
1er niveau/RDC
11.5x13 P
Bois
11.5x13 P
Bois
Salle à manger
1er niveau/RDC
10.5x10.7 P
Bois
10.5x10.7 P
Bois
Cuisine
1er niveau/RDC
11.9x8.7 P
Bois
11.9x8.7 P
Bois
Salle d'eau
1er niveau/RDC
6.8x9 P
Céramique
6.8x9 P
Céramique
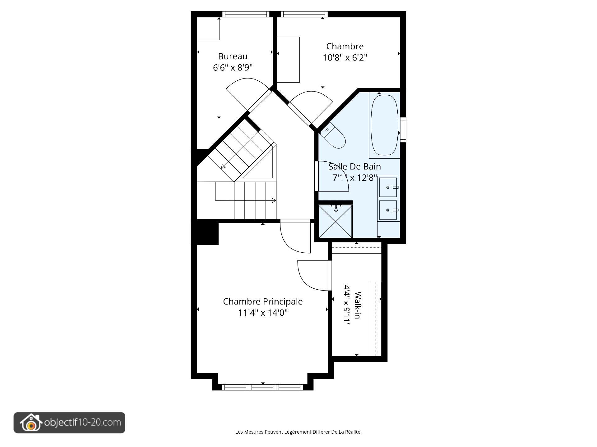
Chambre à coucher principale
2ième étage
11.4x14 P
Plancher flottant
11.4x14 P
Plancher flottant
Penderie (Walk-in)
2ième étage
4.4x9.11 P
Plancher flottant
4.4x9.11 P
Plancher flottant
Bureau à domicile
2ième étage
6.6x8.9 P
Plancher flottant
6.6x8.9 P
Plancher flottant
Chambre à coucher
2ième étage
10.8x6.2 P
Plancher flottant
10.8x6.2 P
Plancher flottant
Salle de bains
2ième étage
7.1x12.8 P
Céramique
7.1x12.8 P
Céramique
Atelier
Sous-sol
9.8x12.5 P
Plancher flottant
9.8x12.5 P
Plancher flottant
Salle familiale
Sous-sol
16.6x16.1 P
Plancher flottant
16.6x16.1 P
Plancher flottant
Rangement
Sous-sol
6.6x12.6 P
Plancher flottant
6.6x12.6 P
Plancher flottant
Taxes
Taxes municipales (2026)
2,873 $
Taxes scolaires (2025)
251 $
Total
3,124 $
Évaluation municipale(2024)
Terrain
87,500 $
Bâtiment
213,500 $
Total
301,000 $
Style de vie
Propriétés suggérées
619 900 $
701, Rue René-Lecavalier
Terrebonne (Côte Terrebonne)
Maison à étages
3|
1|
233.0 mc
№ Centris 20900133
824 900 $
1589, Rue Antoine-Daniel
Boisbriand (Centre)
Maison à étages
4|
2
№ Centris 26604972
689 900 $
26, Rue de Bernay
Blainville (Nord)
Maison à étages
4|
2|
171.1 mc
№ Centris 27875384
Plus c'est vu, plus vite c'est vendu !
Activi-T
Vues sur internet : 3 225
Visibili-T
Vue par plus d'un million d'acheteurs potentiels chaque mois, votre propriété est affichée GRATUITEMENT sur plus de 100 sites nationaux et internationaux.
Propriétés suggérées
619 900 $
701, Rue René-Lecavalier
Terrebonne (Côte Terrebonne)
Maison à étages
3|
1|
233.0 mc
№ Centris 20900133
824 900 $
1589, Rue Antoine-Daniel
Boisbriand (Centre)
Maison à étages
4|
2
№ Centris 26604972
689 900 $
26, Rue de Bernay
Blainville (Nord)
Maison à étages
4|
2|
171.1 mc
№ Centris 27875384
















































