Appartement à Saint-Félix-de-Valois
1008, Rue Bissonnette

519 900 $
Description
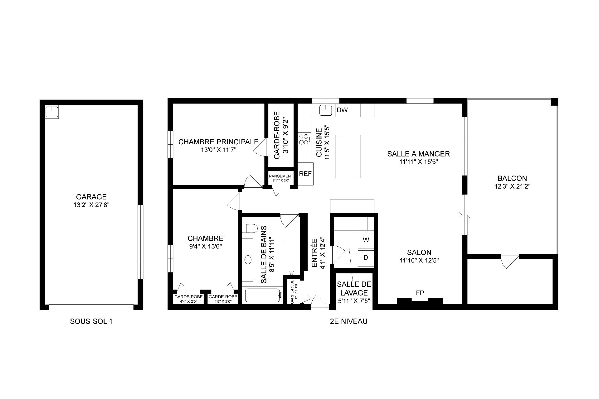
Copropriété de luxe,située au 3e étage d'un immeuble haut de gamme, elle offre, une des plus grande terrasse de l'immeuble,plusieurs options supplémentaires de rangement,le plus grand garage chauffé. Vous allez être séduit par sa vue imprenable et son emplacement dans l'un des secteurs les plus prisés de Saint-Félix. La vaste terrasse privée de 22 x 13 pieds constitue un véritable havre de paix. Équipée de toiles solaires, elle vous permet de profiter pleinement de l'extérieur en toute intimité. Un rangement privé et chauffé (5,6 x 13 pieds) y est intégré pour un maximum de commodité .Premier garage, premier stationnement facilite l'accès .
Points saillants
12.4x4.1 P
Céramique
13.0x11.7 P
Bois
9.2x3.10 P
Bois
13.6x9.4 P
Bois
15.5x11.5 P
Céramique
15.5x11.11 P
Bois
12.5x11.10 P
Bois
7.5x5.11 P
Céramique
11.11x8.5 P
Céramique
3.11x2.0 P
Bois
Copropriété de luxe à Saint-Félix-de-Valois
Située au 3e étage d'un immeuble haut de gamme offrant plusieurs options supplémentaires, cette somptueuse copropriété vous séduira par sa vue imprenable et son emplacement dans l'un des secteurs les plus prisés de Saint-Félix-de-Valois.
La vaste terrasse privée de 22 x 13 pieds constitue un véritable havre de paix. Équipée de toiles solaires, elle vous permet de profiter pleinement de l'extérieur en toute intimité. Un rangement privé et chauffé (5,6 x 13 pieds) y est intégré pour un maximum de commodité.
Vous bénéficiez également d'un garage privé chauffé (28 x 14 pieds) avec plancher en époxy chauffant et espace de rangement. Un ascenseur avec accès direct depuis le garage mène à votre unité, assurant confort, sécurité et accessibilité.
Dès l'entrée, vous serez charmé par l'aire ouverte lumineuse, mise en valeur par une fenestration abondante. L'unité offre :
2 chambres à coucher Une salle de bains spacieuse avec une multitude de rangements Une cuisine fonctionnelle de qualité supérieure, elle aussi dotée de nombreux espaces de rangement Un plancher de bois d'ingénierie chauffant, optimisant le confort et le rendement énergétique L'immeuble se distingue par ses deux entrées communes, chacune dotée d'un portique privé à chaque étage, procurant un niveau d'intimité et de tranquillité rarement égalé.
Idéalement située à seulement 5 minutes de tous les services, ainsi que de plusieurs parcs et sentiers pédestres, cette copropriété allie luxe, confort et qualité de vie.
Points forts :
-Construction supérieure -Grande terrasse privée avec toiles solaires -Rangement privé chauffé sur la terrasse -Garage chauffé avec plancher en époxy -Ascenseur avec accès direct depuis le garage -2 chambres spacieuses -Salle de bains avec abondant rangement -Gestion de copropriété bien établie -Secteur paisible et recherché
Une visite s'impose !
Style de vie
Propriétés suggérées
Plus c'est vu, plus vite c'est vendu !
Activi-T
Vues sur internet : 3 121
Visibili-T
Vue par plus d'un million d'acheteurs potentiels chaque mois, votre propriété est affichée GRATUITEMENT sur plus de 100 sites nationaux et internationaux.
Propriétés suggérées
































