Maison à paliers multiples à Repentigny (Repentigny)
559, Rue de la Traverse

895 000 $
Description
Un emplacement privilégié offrant des couchers de soleil inoubliables. Propriété au bord de l'eau offrant un cadre de vie exceptionnel dans un environnement boisé, paisible et à proximité des services. Cuisine entièrement rénovée, bureau à domicile et nombreuses possibilités d'aménagement : intergénération, bachelor au sous-sol, pièces au-dessus et en dessous du garage. Possibilité d'aménager jusqu'à 3 chambres à l'étage. Cour de rêve avec accès à l'eau. Espace de rangement au sous-sol, situé sous le garage. Propriété polyvalente avec fort potentiel, idéale pour un acheteur ayant de nombreux projets en tête! Occupation rapide possible.
Points saillants
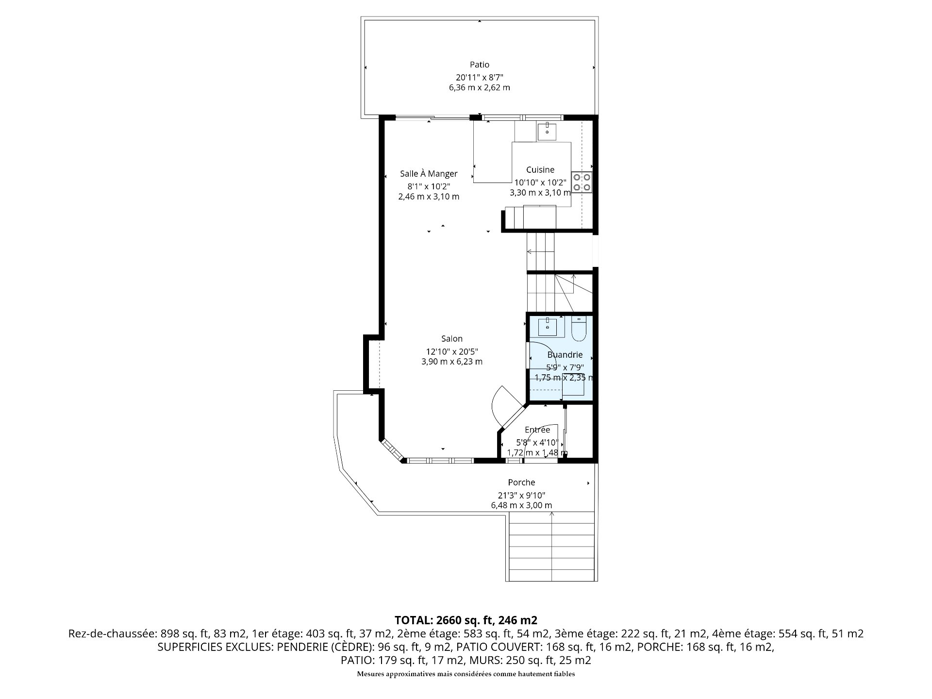
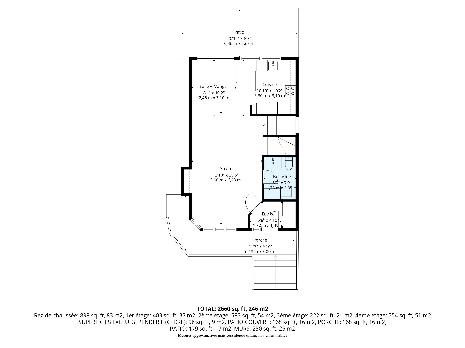
5.8x4.10 P
Céramique
12.10x20.5 P
Bois
8.1x10.2 P
Bois
10.10x10.2 P
5.9x7.9 P
Céramique
15.7x12.2 P
Bois
11.8x13.7 P
Plancher flottant
11.8x16.8 P
Plancher flottant
5.6x5.11 P
Céramique
18.11x18.3 P
Bois
11.1x9.10 P
Bois
7.6x12 P
Céramique
18.11x30.7 P
Bois
14.6x22.2 P
Béton
11.10x8.2 P
4.11x7 P
5.9x6.11 P
Béton
Propriété en bord de l'eau offrant un emplacement stratégique et un potentiel d'aménagement remarquable. Actuellement, le garage a été converti en bureau professionnel avec salle d'eau, offrant une excellente opportunité pour le télétravail ou l'exploitation d'un espace à domicile.
Le sous-sol, aménagé en rez-de-jardin, bénéficie d'un accès direct à l'extérieur et d'une belle luminosité. Sa configuration permet facilement l'ajout d'une cuisine, ouvrant la porte à la création d'un bachelor ou d'un logement intergénération. Ce niveau présente un fort potentiel d'optimisation selon les besoins de l'acheteur.
À l'étage, il est possible d'aménager jusqu'à trois chambres, offrant une grande flexibilité pour une famille. Une pièce de rangement supplémentaire est également accessible sous le garage, ajoutant un espace pratique et fonctionnel.
La cuisine principale a été entièrement rénovée, apportant une valeur ajoutée significative à la propriété.
Située dans un environnement paisible en bord de l'eau, cette propriété se distingue par sa polyvalence, son emplacement recherché et ses nombreuses possibilités d'aménagement. Idéale pour un acheteur ayant plusieurs projets en tête, souhaitant maximiser le potentiel de l'immeuble.
Style de vie
Propriétés suggérées
Visites libres à venir
dimanche 29 mars : 14h à 16h
Plus c'est vu, plus vite c'est vendu !
Activi-T
Vues sur internet : 155
Visibili-T
Vue par plus d'un million d'acheteurs potentiels chaque mois, votre propriété est affichée GRATUITEMENT sur plus de 100 sites nationaux et internationaux.
Propriétés suggérées







































































