Duplex à Cowansville
673-675, Rue de la Rivière

359 900 $
Description
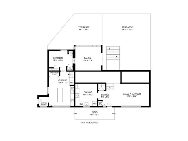
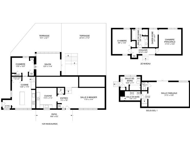
Duplex dont 1 grand logement de 5 1/2; 3 chambres 2 salles de bain complètes et une grande terrasse. Local commercial au rez-de-chaussée(+-de 1000pi2), 1 salle de bain, grand stationnement au devant. Idéal pour commerce ou professionnel. Très bien situé. Prendre note concernant la visite du logement 675; celle-ci sera possible avec une offre d achat acceptée seulement. Demandez une visite!
Points saillants
Duplex résidentiel et commercial Local commercial vacant. Les acheteurs devront faire leurs démarches auprès de la municipalité pour tous projets commerciaux. Prendre note que les installations septique sont communes avec le commerce à coté. Facture taxe municipale ; il y a une portion commerciale et il y a la vidange de la fosse septique qui est incluse. Prendre note concernant la visite du logement 675 celle-ci sera possible avec une offre d achat acceptée seulement
Style de vie
Propriétés suggérées
Plus c'est vu, plus vite c'est vendu !
Activi-T
Vues sur internet : 11 156
Visibili-T
Vue par plus d'un million d'acheteurs potentiels chaque mois, votre propriété est affichée GRATUITEMENT sur plus de 100 sites nationaux et internationaux.
Propriétés suggérées








































