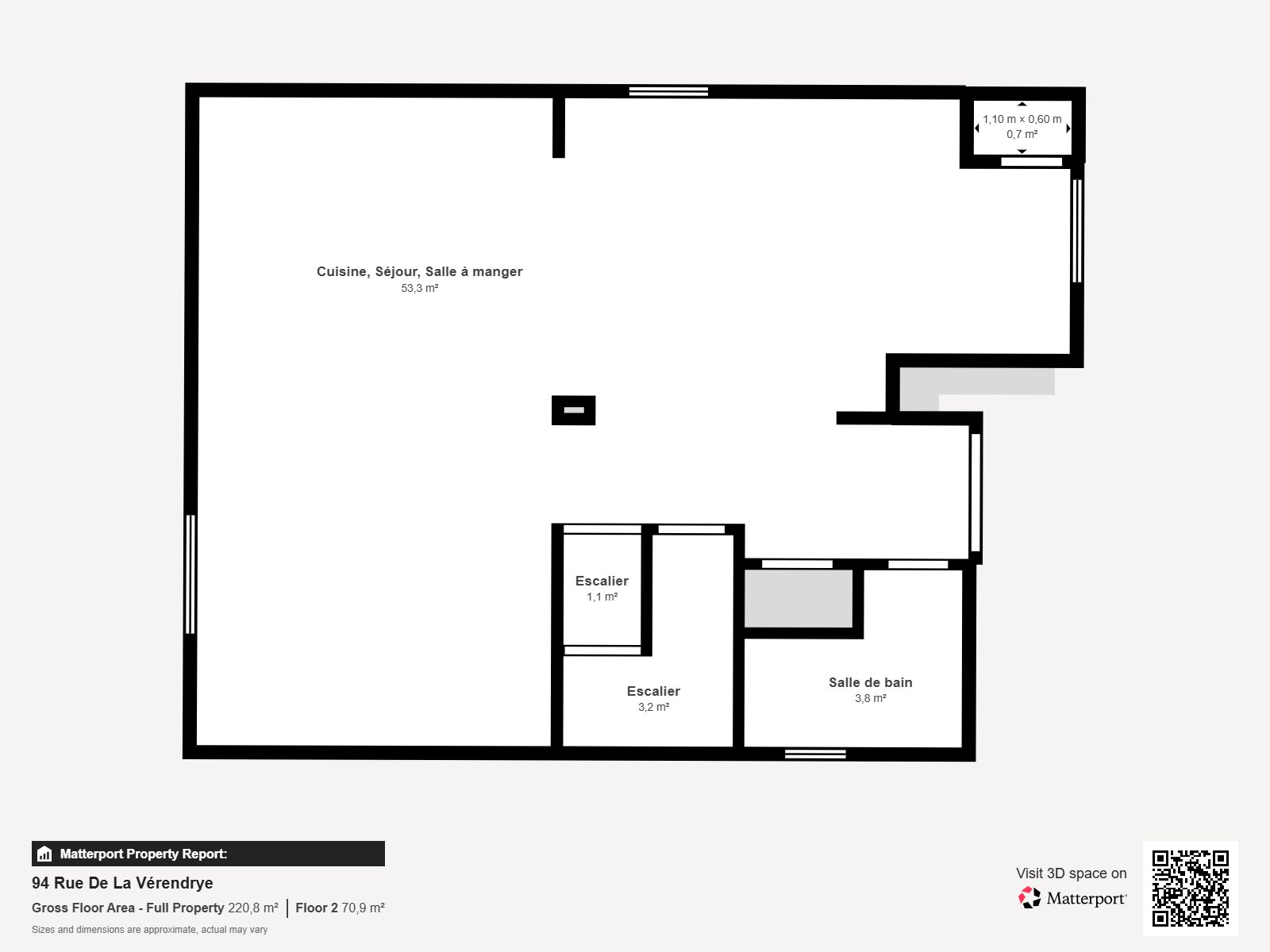
Maison à étages à Sept-Îles
94, Rue De La Vérendrye

559 000 $
Description
Propriété charmante dans le secteur Ste-Famille à Sept-Iles près des écoles de tous les niveaux. Le rez-de-chaussée a été repensé et propose une superbe cuisine à aire ouverte avec la salle à manger et le salon, idéal pour recevoir les amis. Vous ne vous ennuyerez pas en famille avec l'aménagement d'un grand patio et d'une piscine de 21 pieds au sel. Et pour toi qui a besoin d'un garage tu seras gâté. Ou pour toi qui rêves d'un "man's cave" au sous-sol avec un bar, te voilà servi... À quand la visite ?
Points saillants
4.11x4.1 P
Céramique
15.7x18.2 P
Céramique
11.4x13.0 P
Céramique
11.9x13.0 P
Céramique
6.6x7.11 P
Céramique
3.5x6.2 P
Céramique
12.4x13.6 P
Bois
13.11x12.5 P
Bois
9.10x13.6 P
Bois
6.5x9.2 P
Céramique
9.2x9.4 P
Céramique
15.3x18.0 P
Céramique
5.5x3.10 P
Céramique
7.11x7.8 P
Céramique
10.11x12.5 P
Céramique
11.9x8.10 P
Céramique
3.11x5.10 P
Céramique
Lors du changement du bardeau, un plywood a été ajouté et une membrane au complet;
2012 La fenestration a été remplacée; construction du garage; grand patio de 10x17p et 10x15p;
2014 Une piscine au sel,hors terre, chauffée, de 21 pieds a été installée. La toile a été changée en 2024;
2017 Réfection du sous-sol avec salle d'eau, un bar, une salle familiale, une grande chambre à coucher avec walk-in et salle de douche attenants. Tous les planchers du sous-sol sont chauffants;
2018 La cuisine a été entièrement refaite incluant les armoires et les comptoirs en quartz.
Une prise pour une laveuse et une cuisinière a été installée lors de la réfection du sous-sol au cas où on voudrait faire un petit logement ou intimité pour un membre de la famille ou ami.
L'eau et les égoûts ont été refaits jusqu'à la ville en 2023
Style de vie
Propriétés suggérées
Plus c'est vu, plus vite c'est vendu !
Activi-T
Vues sur internet : 1
Visibili-T
Vue par plus d'un million d'acheteurs potentiels chaque mois, votre propriété est affichée GRATUITEMENT sur plus de 100 sites nationaux et internationaux.
Propriétés suggérées




































