Jacques-Olivier Thibeault

Residential Real Estate Broker

Broker : (450) 274-1125

No centris® 9113289

property image

724,900 $

34, Ch. Kates

RegionEstrie

Neighborhood

CityBolton-Est


34, Ch. Kates, Bolton-Est

Municipal evaluation

Year 2025
Land 143 600 $
Building 318 200 $

Taxes annual

Municipal Taxes (2026) 2 165 $
School taxes (2025) 314 $
Total461 800 $
Total2 479 $
Year built 2015
Equipment available Central vacuum cleaner system installation, Water softener,
Ventilation system
Basement 6 feet and over, Finished basement
Siding Vinyl
Roofing Asphalt shingles
Zoning Residential
Heating system Electric baseboard units
Hearth stove Wood burning stove
Cupboard Thermoplastic
Sewage system BIONEST system
Bathroom / Washroom Separate shower
Parking (total) Outdoor
Distinctive features Water access, Private street
Heating energy Electricity
Water supply Artesian well
Driveway Not Paved

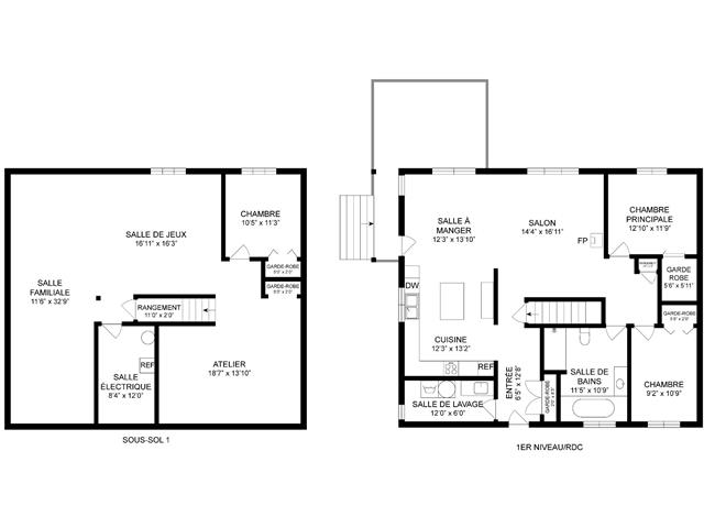
3 Rooms
1 Bedrooms
Room Floor Dimension Floor covering
Hallway 1st level/Ground floor 6.5x12.8 P Ceramic tiles
Living room 1st level/Ground floor 14.4x16.11 P Wood
Dining room 1st level/Ground floor 12.3x13.10 P Wood
Kitchen 1st level/Ground floor 12.3x13.2 P Wood
Primary bedroom 1st level/Ground floor 12.10x11.9 P Wood
Bedroom 1st level/Ground floor 9.2x10.9 P Wood
Bathroom 1st level/Ground floor 11.5x10.9 P Ceramic tiles
Laundry room 1st level/Ground floor 12.0x6.0 P Ceramic tiles
Family room Basement 11.6x32.9 P Floating floor
Bedroom Basement 10.5x11.3 P Floating floor
Playroom Basement 16.11x16.3 P Floating floor
Workshop Basement 18.7x13.10 P Floating floor
Salle électrique Basement 8.4x12.0 P Concrete

Remarks

Salon
Salon
Salon
Salon
Salon
Salon
Salon
Salon
Salon
Salon
Salon
Salon
Salon
Salon
Salon
Salon
Salon
Salon
Salon
Salon
Salon
Salon
Salon
Salon
Salon
Salon
Salon
Salon
Salon
Salon
Salon
Salon
Salon
Salon
Salon
Salon
Salon
Salon
Salon